Casa boiereasca renovata Unirii | Curte 70mp | D+P+Pod

350.000 €

Mitropolie, Bucureşti

Nr. camere:
5
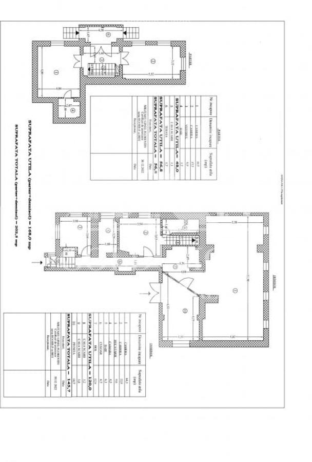
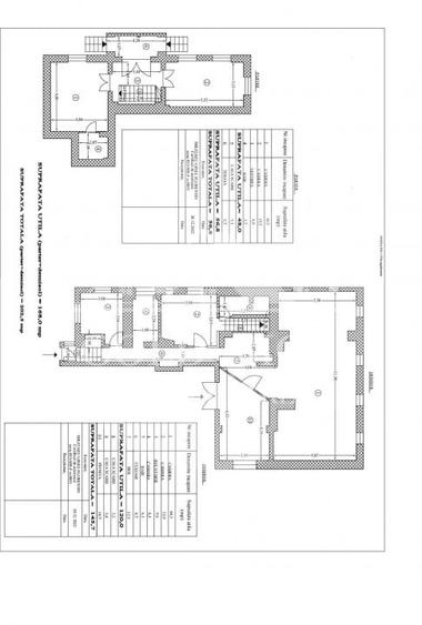
Suprafață utilă:
168 mp
Suprafață teren:
155 mp

Descriere casă

Vila Interbelica cu Caracter – Zona Unirii (Str. George Georgescu) Va prezentam o oportunitate rara de achizitie in inima Capitalei: o proprietate interbelica distinsa, situata pe Strada George Georgescu, intr-o zona care imbina farmecul istoric cu utilitatea urbana moderna. Construita in anul 1930 si renovata integral, aceasta vila reprezinta echilibrul perfect intre eleganta clasica si confortul actual. Detalii Cheie: • Spatiu Generos: 5 camere luminoase, cu o suprafata utila de 168 mp. • Configuratie: Regim de inaltime D+P+Pod, ideal pentru o compartimentare versatila. • Teren & Deschidere: Suprafata teren 155 mp, 70mp liberi, cu un front stradal generos de 16 m si acces pe 2 fronturi, oferind vizibilitate si acces facil. • Renovare Completa: Instalatii electrice si sanitare noi, centrala termica proprie, finisaje de calitate (parchet, gresie, tamplarie PVC cu termopan). Localizare si Puncte de Reper Proprietatea beneficiaza de o pozitie strategica, fiind situata la doar cateva minute de mers pe jos de principalele noduri ale orasului: • Transport: Metrou Piata Unirii (acces rapid catre magistralele M1, M2, M3). • Shopping & Leisure: Unirea Shopping Center, zona comerciala a Bulevardului Unirii si restaurantele cochete din zona Pietei Constitutiei. • Cultura si Institutii: Palatul Parlamentului, Piata Cosbuc si Liceul „Mihai Eminescu”. • Utilitate: Acces imediat catre numeroase centre bancare, clinici medicale si puncte de interes public. Potential Utilizare Datorita locatiei centrale si a compartimentarii, imobilul este pretabil pentru: 1. Rezidential: O casa de familie primitoare, cu curte proprie, intr-o zona linistita dar centrala. 2. Business: Sediu de firma, cabinet notarial, clinica estetica/stomatologica sau birou de arhitectura. ( Proprietatea este in prezent inchiriata catre o firma pentru suma de 1900€/ luna) Specificatii Tehnice • Utilitati: Apa, Gaz, Canalizare, Curent electric, Aer conditionat. • Dotari suplimentare: Pivnita pentru depozitare, curte privata, contorizare separata. • Stare: Gata de mutare (nemobilata). Pentru a simti cu adevarat atmosfera acestei proprietati deosebite, va invitam la o vizionare. Contactati-ne pentru detalii suplimentare!
Citește mai mult Citește mai puțin
Nemobilat Curte Aer condiționat Calorifere Centrală proprie Beci

Detalii casă

ID anunț: 2790811 Actualizat în: 01 Aprilie 2026
Nr. camere: 5
Suprafață utilă: 168 mp
Suprafață utilă totală: 168 mp
Nr. băi: 2
Suprafață teren: 155 mp
Front stradal: 16 m
An construcție: 1930

Istoric preț

Facilități

Pereți
Vopsea lavabilă Faianță
Podele
Parchet Gresie
Ușă intrare
Parchet Metal Lemn PVC
Uși interior
Lemn PVC
Ferestre cu geam termopan
Lemn PVC
Utilități
Curent Apă Canalizare Gaze
Sistem încălzire
Centrală proprie Calorifere
Climatizare
Aer condiționat
Mobilat
Nemobilat
Alte spații utile
Pivniță
Facilități imobil
Curte
Amenajare străzi
Asfaltate

Puncte de interes

Mijloace transport
transport
Patriarhia Romana
Mijloace transport aprox. 108 m
transport
11 Iunie
Mijloace transport aprox. 128 m
transport
Gramont
Mijloace transport aprox. 303 m
transport
Statia Calea 13 Septembrie, linia 136, N121
Mijloace transport aprox. 310 m
Școală
education
Gradinita nr.224, "Vestitorii Primaverii"
Învățământ aprox. 259 m
education
Gradinita nr. 192 (Pisicile aristocrate)
Învățământ aprox. 268 m
education
Gradinita nr. 224
Învățământ aprox. 270 m
education
Gradinita nr.192, "Pisicile Aristocrate"
Învățământ aprox. 281 m
Recreere
restaurants
eggsmania
Restaurante aprox. 128 m
parks
Parc
Recreere aprox. 147 m
shopping
Mega Image
Supermarket/Mall aprox. 319 m
shopping
Profi Non-Stop
Supermarket/Mall aprox. 424 m

Proprietăți similare

Casă individuală cu 4 camere cu Teren 110 Mp în Mitropolie
340.000 €
București, Mitropolie
4 camere
145 mp
110 mp teren
Casă individuală cu 6 camere cu Teren 115 Mp în Mitropolie
339.700 €
București, Mitropolie
6 camere
125 mp
115 mp teren
Casă individuală cu 2 camere cu Teren 80 Mp în Universitate
320.000 €
București, Universitate
2 camere
80 mp
80 mp teren
Casă individuală cu 4 camere cu Canalizare în Matei Voievod
345.000 €
București, Matei Voievod
4 camere
110,55 mp
247,61 mp teren
Casă individuală cu 5 camere cu Teren 137 Mp în Ultracentral
365.000 €
București, Ultracentral
5 camere
143 mp
137 mp teren
Casă individuală cu 3 camere cu Canalizare în Romană
375.500 €
București, Romană
3 camere
92,77 mp
237 mp teren
Casă individuală cu 4 camere cu Canalizare în Victoriei
340.000 €
București, Victoriei
4 camere
95 mp
232 mp teren
Casă individuală cu 7 camere cu Garaj în P-ța Victoriei
350.000 €
București, P-ța Victoriei
7 camere
230 mp
100 mp teren
Casă individuală cu 5 camere cu Teren 670 Mp în Calea Plevnei
385.000 €
București, Calea Plevnei
5 camere
300 mp
670 mp teren

Abonează-te la newsletter să fii primul care primește cele mai noi recomandări de proprietăți și sfaturi de la experți.