Zona Unirii - Imobil generos cu 30 camere si teren de 1750mp.

1.500.000 €

Unirii, Bucureşti

Nr. camere:
30
Suprafață utilă:
900 mp
Suprafață teren:
1.750 mp

Descriere casă

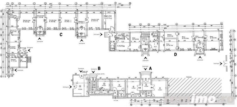
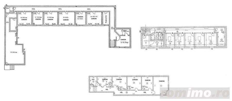
ID Proprietate: CP693905 --------------------------------------------------------------------------------- - In centrul Mun. Bucuresti, zona Unirii - Matei Basarab, curte de 1.750 mp cu doua cladiri, in total 1.000 mp construiti si o suprafata utila de 900 mp; - Exista 6 ntrari pentru acces la parter si mansarda, cu destinatie pretabila pentru hostel, pensiune, birouri, cazare personal, camin si orice alt domeniu unde este util un numar mare de camere. Imobilul se compune din 30 camere si 20 bai amenajate , 90% mobilate plus holuri si anexe rezultand un total de 70 incaperi. - Utilitati existente in spatiu: Apa; Canalizare; Curent electric; Gaze naturale; - Dotari existente in spatiu: Contorizare separata (apa, electricitate, gaze naturale); Centrala termica proprie; Grupuri sanitare; Bucatarii; Pivnite la subsol etc.; - Exista 10 locuri de parcare; - Primul imobil este alcatuit din doua corpuri de cladire, A si B, avand S+P+M, avand o suprafata utila de 325 mp si o suprafata utila de 300 mp. Acest corp de cladire dispune de urmatoarele: 9 camere, 1 bucatarie, 5 dusuri, 1 grup sanitar, 1 camera la subsol (pivnita). Finizajele interioare sunt la un nivel standard, obisnuit; - Al doilea imobil este alcatuit din doua corpuri de cladire, C si D, avand S+P+M, avand o suprafata construita de 675 mp si o suprafata utila de 600 mp. Acest corp de cladire dispune de urmatoarele: 26 camere, 2 bucatarii, 6 dusuri, 7 bai, 2 magazii, 3 pivnite totalizand 75 mp si 3 scari de acces la mansarda. Corpul D dispune de finisaje bune .Odata cu acest imobil imobil se cesioneaza o asociatie care detine spatiul prin contract, fiind luat in inchiriere de la Primaria Capitalei, incepand cu anul 2001; - Exista toate actele si avizele necesare; - Proprietatea dispune de cadastru si este intabulata; - Terenul este cu Legea nr. 112 dar foloseste curtea in comun cu cel de-al doilea imobil. ID anun? : 1773234585
Citește mai mult Citește mai puțin
10 Parcări

Detalii casă

ID anunț: 96622 Actualizat în: 11 Martie 2026
Nr. camere: 30
Suprafață utilă: 900 mp
Suprafață utilă totală: 900 mp
Suprafață construită: 1.000 mp
Nr. băi: 23
Suprafață teren: 1.750 mp
An construcție: 1950 (Finalizată)
Nr. locuri parcare: 10

Istoric preț

Facilități

Utilități
Apă Gaze Climă

Proprietăți similare

Casă cu 20 camere cu Canalizare în Unirii
1.400.000 €
București, Unirii
20 camere
1.000 mp
556 mp teren
Casă cu 18 camere cu Canalizare în Unirii
1.399.000 €
București, Unirii
18 camere
875 mp
633 mp teren
Casă cu 16 camere cu Canalizare în Calea Călărașilor
1.350.000 €
București, Calea Călărașilor
16 camere
1.180 mp
551 mp teren
Casă cu 15 camere cu Canalizare în P-ța Universității
1.350.000 €
București, P-ța Universității
15 camere
600 mp
100 mp teren
Casă cu 5 camere cu Canalizare în Pipera
1.500.000 € + TVA
București, Pipera
5 camere
400 mp
400 mp teren
Casă cu 11 camere cu Teren 764 Mp în Ultracentral
1.650.000 €
București, Ultracentral
11 camere
440 mp
764 mp teren
Casă cu 10 camere cu Canalizare în Aviatorilor
1.400.000 €
București, Aviatorilor
10 camere
480 mp
230 mp teren
Casă cu 4 camere cu Piscina în Bucureștii Noi
1.350.000 €
București, Bucureștii Noi
4 camere
275 mp
383 mp teren
Casă cu 5 camere cu Canalizare în Iancu Nicolae
1.590.000 € + TVA
București, Iancu Nicolae
5 camere
392 mp
724 mp teren

Abonează-te la newsletter să fii primul care primește cele mai noi recomandări de proprietăți și sfaturi de la experți.