În acest moment, nu se primesc cereri pentru această proprietate. Vă sugerăm să verificați alte oferte similare disponibile.
Vezi anunțuri
1 lună în urmă
Vila Premium DUPLEX , Titan-Pallady, 4 Camere, P+1, FINALIZATA
271.547 €
Titan, Bucureşti
Descriere casă
Sesizează o problemă
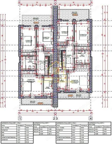
? Vila Duplex Premium, 4 Camere Titan-Pallady, Direct Dezvoltator Concept ?i compartimentare Duplex P+1, decomandat Suprafa?a utila 183 mp An construc?ie: 2025 Curte individuala cu gradina - Living ~ 40 mp - Bucatarie inchisa ~ 12 mp - 3 bai complete - 3 dormitoare foarte mari - 2 balcoane (cu iesire din fiecare camera) - terasa mare de 25 mp (cu posibilitate de inchidere) - curte - posibilitate de 2-3 locuri de parcare Localizare Zona Cartier Titan-Pallady, lini?tita ?i verde Parcul Teilor si IOR Acces facil catre zona comerciala Pallady (IKEA, Metro, Auchan, Kaufland, Jumbo, Decathlon, Lidl, Dedeman, Leroy Merlin, A3) Aproape de scoli (nr.149, 116, 82, 20, 200, 112), gradinite ( 196, 68, 160, Miniclub Condor, Ana Lugojan) Acces la metrou: 1 Decembrie, Nicolae Teclu Linii de autobuz: 330, 253 Tramvai: 27, 19, 40 ? Dotari ?i beneficii Aer condi?ionat in living si bonus in fiecare camera Centrala proprie pe gaze (Wiesmann) ?i incalzire prin pardoseala - Tamplarie Salamander cu profil de 82mm - Gemuri tripan Scara interioara cu iluminare led pe toata lungimea - Balustrade interior/exterior de sticla - inaltime usi interior - 220 cm - u?a metalica (antiefrac?ie) de 120 cm latime fibra optica si cablu TV preinstalat Bideu, iluminare cu spoturi, luminatoare - vas de WC suspendat (Roca), Baterii Grohe - inaltime tavan interior - 270-300 cm Structura ?i materiale Beton, caramida, cadre Pere?i exteriori din caramida Porotherm, izola?i cu polistiren expandat Pere?i interiori din caramida Porotherm Plan?ee din beton armat, acoperi? terasa circulabila Fa?ada cu tencuiala decorativa si piatra Finisaje interioare Parchet laminat, gresie, faian?a Vopsea lavabila ?i glet Geamuri termoizolante PVC, tripan Parcare Parcare exterioara ?i in curte Posibilitate parcare pe strada Pre? PROMO 271.547 + TVA=328.571 euro (avans 50%) 285.124 + TVA=345.000 euro (avans 15-25%) Manager proiect: Emanuel
Detalii alte incaperi: Hol parter: 10.63 Hol + Scara: 14.34 ID anun? : 1773847788
Citește mai mult
Citește mai puțin
2 Parcări
Detalii casă
ID anunț: 3884991
Actualizat în: 21 Aprilie 2026
Nr. camere:
4
Suprafață utilă:
183 mp
Suprafață utilă totală:
183 mp
Suprafață construită:
225 mp
Nr. băi:
3
Suprafață teren:
125 mp
An construcție:
2025
Regim înălțime:
P+1E
Nr. locuri parcare:
2
Istoric preț
Facilități
Utilități
Apă
Gaze
Climă
Internet
Abonează-te la newsletter să fii primul care primește cele mai noi recomandări de proprietăți și sfaturi de la experți.
Căutări similare
- Case de vânzare în Titan
- Case de vânzare în Sector 3
- Case de vânzare în Unirii
- Case de vânzare în Theodor Pallady
- Case de vânzare în Splaiul Unirii
- Case de vânzare în 23 August (Cațelul)
- Case de vânzare în Vitan
- Case de vânzare în 1 Decembrie 1918
- Case de vânzare în Decebal
- Case de vânzare în Calea Călărașilor
- Case de vânzare în Dristor
- Case de vânzare în Industriilor