Calea Calarasilor colt Popa Nan, vanzare vila

960.000 €

Calea Călăraşilor, Bucureşti

Nr. camere:
9
Suprafață utilă:
300 mp
Suprafață teren:
200 mp

Descriere casă

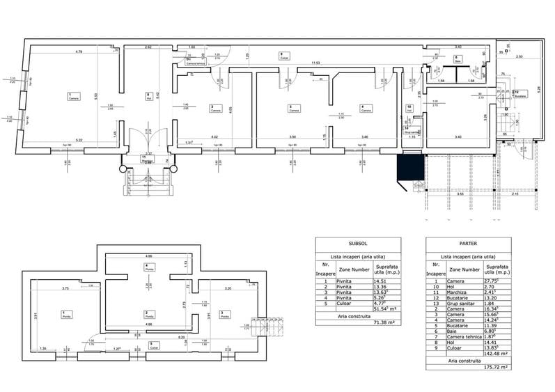
Cladirea se afla la intersectia Calea Calarasilor cu strada Popa Nan. Este construita in ani 1920, are o arhitectura deosebita, camere inalte, circulatii functionale. Beneficiaza de un corp separat cu 3 camere, 2 holuri si 2 grupuri sanitare plus o terasa imprejmuita de gard verde. Cu o suprafat totala utila de aproximativ 300mp, 9 camere si 3 grupuri sanitare se pot creea functiuni pentru onumeroase activitati comerciale, educationale . in domeniul medical s.a. Este ideala pentru restaurant, cafenea, birou de avocatura/ notariat, birouri, cabinete medicale individuale, afterschool, gradinita, centru recuperare, birouri Parterul are cumulat in ambele case aproximativ 250mp utili avand cumulat 9 camere spatioase si inalte, 4 holuri, 3 grupuri sanitare, bucatarie din doua camere, beneficiind de 4 intrari- una principala si una de serviciu la fiecare corp, curent electric 220/380V cu putere instalata mare. Demisolul format din 3 spatii cu o suprafata de 50mp poate fi utilizat ca arhiva, depozitare sau bucatarie iar podul ce ofera un spatiu de peste 120mp poate fi un spatiu deschispentru multiple destinatii. Conditii inchiriere: 2 luni avans si 2 luni garantie. Contract minim 3 ani. Cautam si partener/a pentru asociere. in acesta locatie, cu experienta in domeniu.
Citește mai mult Citește mai puțin

Detalii casă

ID anunț: 3794695 Actualizat în: 15 Martie 2026
Nr. camere: 9
Suprafață utilă: 300 mp
Suprafață utilă totală: 300 mp
Suprafață teren: 200 mp
An construcție: 1920

Istoric preț

Facilități

Facilități
Terasă

Proprietăți similare

Casă cu 8 camere cu Teren 260 Mp în P-ța Unirii
999.000 €
București, P-ța Unirii
8 camere
300 mp
260 mp teren
Casă cu 13 camere cu Canalizare în Vitan
888.000 €
București, Vitan
13 camere
290 mp
250 mp teren
Casă cu 12 camere cu Teren 295 Mp în Unirii
975.000 €
București, Unirii
12 camere
418 mp
295 mp teren
Casă cu 15 camere cu Canalizare în Polonă
1.000.000 €
București, Polonă
15 camere
400 mp
269 mp teren
Casă cu 7 camere cu Canalizare în Dorobanți
950.000 €
București, Dorobanți
7 camere
322 mp
150 mp teren
Casă cu 5 camere cu Canalizare în Pipera
870.000 €
București, Pipera
5 camere
360 mp
670 mp teren
Casă cu 9 camere cu Teren 160 Mp în P-ța Dorobanți
1.050.000 €
București, P-ța Dorobanți
9 camere
365 mp
160 mp teren
Casă cu 7 camere cu Canalizare în Dorobanți
980.000 €
București, Dorobanți
7 camere
400 mp
460 mp teren
Casă cu 13 camere cu Teren 251.10000610352 Mp în Aviatorilor
920.000 € + TVA
București, Aviatorilor
13 camere
772,95 mp
251,1 mp teren

Abonează-te la newsletter să fii primul care primește cele mai noi recomandări de proprietăți și sfaturi de la experți.