Townhouse Avalon 4 camere | 2 Locuri Parcare |

640.000 €

Pipera, Bucureşti

Nr. camere:
4
Suprafață utilă:
132 mp
Suprafață teren:
102 mp
Nr. niveluri:
2

Descriere casă

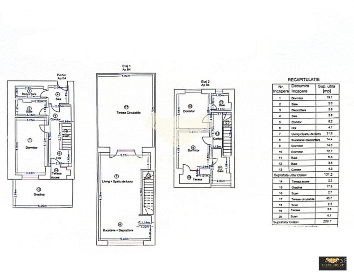
Vila de vanzare in Avalon Residence – Pipera Descopera confortul si linistea unui complex rezidential exclusivist, situat pe Bulevardul Pipera, in apropierea rondului OMV. Avalon Residence este un ansamblu modern, format din townhouse-uri si blocuri cu regim mic de inaltime, inconjurat de spatii verzi generoase si facilitati premium pentru intreaga familie: -gradina si promenada pe malul lacului -loc de joaca pentru copii -teren de baschet -piscina exterioara -sala de yoga Compartimentare vila: -Parter: un dormitor/birou, baie cu dus, camera tehnica cu masina de spalat si uscator, acces direct catre parcarea acoperita prin iesirea secundara din casa. -Etaj 1: living spatios in regim open space cu bucatarie moderna (dotata inclusiv cu bar ascuns), plus un WC de serviciu pentru oaspeti. -Etaj 2: doua dormitoare, fiecare cu baie proprie; unul dintre ele dispune de terasa/balcon deschis de 4 mp. In fata casei, chiar la intrarea principala, se afla o gradina intima de 18 mp, ideala pentru amenajari florale sau o zona verde de relaxare. In spate, in continuarea livingului de la etajul 1, se deschide o terasa generoasa de 48 mp, perfecta pentru seri in aer liber, cina cu prietenii sau spatiu de joaca pentru cei mici. Parcarea este acoperita si pozitionata chiar langa iesirea din casa, pentru un plus de comoditate. Aceasta vila imbina perfect functionalitatea, designul modern si facilitatile de lifestyle din cadrul complexului, fiind alegerea ideala pentru o familie care cauta confort si siguranta. La pretul afisat se adauga TVA. Fiecare loc de parcare are un cost aditional de 25.000€ +TVA
Citește mai mult Citește mai puțin
Mobilat Grădină Piscină Curte comună Aer condiționat Centrală proprie

Detalii casă

ID anunț: 2044459 Actualizat în: 12 Martie 2026
Nr. camere: 4
Suprafață utilă: 132 mp
Suprafață utilă totală: 132 mp
Nr. băi: 4
Suprafață teren: 102 mp
An construcție: 2023
Regim înălțime: P+2E

Istoric preț

Facilități

Pereți
Vopsea lavabilă Faianță
Podele
Parchet Gresie
Ușă intrare
Parchet Metal Lemn
Uși interior
Lemn
Izolații termice
Exterior
Utilități
Curent Apă Canalizare Gaze
Sistem încălzire
Centrală proprie
Climatizare
Aer condiționat
Bucătărie
Mobilată Utilată
Mobilat
Mobilat
Alte spații utile
Spațiu depozitare WC Serviciu
Facilități imobil
Videointerfon Curte comună Grădină Piscină exterioară
Amenajare străzi
Asfaltate Iluminat stradal Mijloace de transport în comun

Puncte de interes

Mijloace transport
transport
Pipera Drumul Bisericii
Mijloace transport aprox. 687 m
transport
Statia Gelcap, linia 16, 36
Mijloace transport aprox. 1349 m
transport
Gelcap
Mijloace transport aprox. 1391 m
transport
Capat C.F.R Constanta linii : 112,135,445
Mijloace transport aprox. 1466 m
Școală
education
Scoala Nr.3 Voluntari
Învățământ aprox. 658 m
education
Gradinita Zece
Învățământ aprox. 782 m
education
Gradinita Happy Univers
Învățământ aprox. 909 m
education
Echilibria 1
Învățământ aprox. 1081 m
Recreere
restaurants
Shanghai Garden (en)
Restaurante aprox. 194 m
shopping
Mega Image Pipera
Supermarket/Mall aprox. 249 m
shopping
Pipera Plaza
Supermarket/Mall aprox. 417 m
parks
spatiu verde
Recreere aprox. 482 m

Proprietăți similare

Casă cu 5 camere cu Canalizare în Pipera
630.000 € + TVA
București, Pipera
5 camere
215 mp
500 mp teren
Casă cu 4 camere cu Canalizare în Pipera
700.000 €
București, Pipera
4 camere
146 mp
472 mp teren
Casă cu 3 camere cu Canalizare în Pipera
639.000 €
București, Pipera
3 camere
210 mp
625 mp teren
Casă cu 5 camere cu Piscina în Pipera
615.000 € + TVA
București, Pipera
5 camere
280 mp
207 mp teren
Casă cu 7 camere cu Canalizare în Pipera
700.000 €
București, Pipera
7 camere
370 mp
240 mp teren
Casă cu 8 camere cu Teren 552 Mp în Pipera
650.000 €
București, Pipera
8 camere
325 mp
552 mp teren
Casă cu 4 camere cu Garaj în Pipera
590.000 €
București, Pipera
4 camere
210 mp
220 mp teren
Casă cu 4 camere cu Canalizare în Pipera
670.000 €
București, Pipera
4 camere
185 mp
600 mp teren
Casă cu 5 camere cu Canalizare în Pipera
615.000 € + TVA
București, Pipera
5 camere
260 mp
207 mp teren

Abonează-te la newsletter să fii primul care primește cele mai noi recomandări de proprietăți și sfaturi de la experți.