Casa si teren cota parte 1/4, Schela, ID: R2749475

€ 67.183

Schela, Judeţul Galaţi

Nr. camere:
4
Suprafață utilă:
140 mp
Suprafață teren:
908 mp

Descriere

Raportează anunț

Casa si teren cota parte 1/4, Schela, ID: R2749475

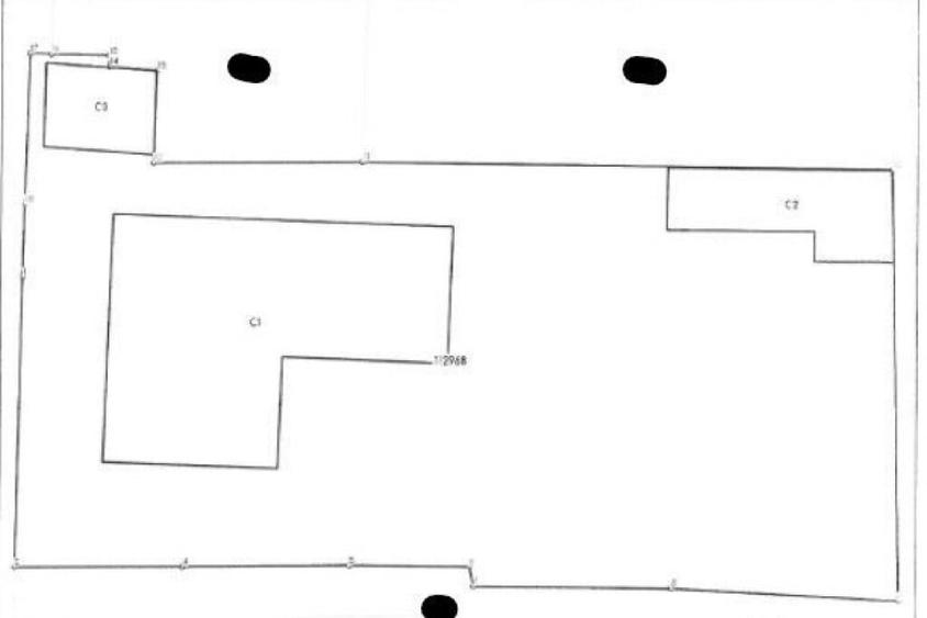
Se vinde prin licitatie publica cota parte de 1/4 din dreptul de proprietate Strada Lascar Catargiu, loc. Schela, jud. Galati Proprietatea este situata pe strada Lascar Catargiu, in arealul format din strada Orhideei, strada Panselutei si strada Lozovei Proprietatea beneficiaza de un teren in suprafata de 908 mp. Conform documentatiei cadastrale suprafata de 295 mp este incadrata in teren arabil si suprafata de 613 mp este incadrata in curti constructii. Proprietatea are un front public de cca. 25 metri patrati la strada Lascar Catargiu. Relieful proprietatii este plat, iar forma este relativ dreptunghiulara. Proprietatea este imprejmuita de locuinte tip case si terenuri libere. Proprietatea este imprejmuita partial cu gard din fier pe soclu din beton. Consideram ca proprietatea a fost edificat in jurul anilor 80. Constructia este locuinta, cu regim de inaltime parter si pod. Aspectul imobilului, cel exterior se prezinta intr-o stare medie. Solutia constructiva aferenta consideram ca este din caramida. Acoperisul este sarpanta din lemn invelit cu tabla. Tamplaria exterioara este realizata din profile PVC si geamuri termoizolante. Usa de acces este din metal. Imobilul beneficiaza de utilitatile prezente in zona. Suprafata construita desfasurat locuinta: 159 metri patrati Suprafata construita desfasurat anexa C2: 40 metri patrati Suprafata construita desfasurat anexa C3: 23 metri patrati Numar niveluri imobil: 2 Numar Bai: mai mult de 3 Posibilitate parcare: Nu Curent Apa Canalizare Gaz Publicat prin HomeZZ.ro, vezi anuntul complet aici.
Citește mai mult Citește mai puțin
ID anunț: 2127320 Actualizat în: 29 Decembrie 2025
Nr. camere: 4
Suprafață utilă: 140 mp
Suprafață utilă totală: 140 mp
Suprafață teren: 908 mp
An construcție: 1980

Istoric preț

Proprietăți similare

Casă cu 3 camere în Schela
€ 65.000
Județul Galați, Schela
3 camere
110 mp
Casă cu 3 camere cu Teren 2114 Mp în Munteni
€ 70.000
Județul Galați, Munteni
3 camere
153 mp
2.114 mp teren
Casă cu 5 camere cu Teren 700 Mp în Smârdan
€ 69.000
Județul Galați, Smârdan
5 camere
170 mp
700 mp teren
Casă cu 5 camere în Tecuci
€ 71.000
Județul Galați, Tecuci
5 camere
150 mp
Casă cu 4 camere în Tulucești
€ 70.000
Județul Galați, Tulucești
4 camere
100 mp
Casă cu 5 camere în Matca
€ 67.000
Județul Galați, Matca
5 camere
1.243 mp
Casă în Central
€ 63.000
Galați, Central
63 mp
Casă cu 4 camere cu Teren 690 Mp în Tecuci
€ 72.900
Județul Galați, Tecuci
4 camere
792 mp
690 mp teren
Casă cu 4 camere în Sud
€ 70.000
Județul Galați, Tecuci
4 camere
117 mp

Abonează-te la newsletter să fii primul care primește cele mai noi recomandări de proprietăți și sfaturi de la experți.