Duplex de vanzare in Sanandrei, 3 camere P+E 73mp utili 310m

€ 113.000

Sânandrei, Judeţul Timiş

Nr. camere:
3
Suprafață utilă:
73 mp
Suprafață teren:
620 mp

Descriere

Raportează anunț

Duplex de vanzare in Sanandrei, 3 camere P+E 73mp utili 310m

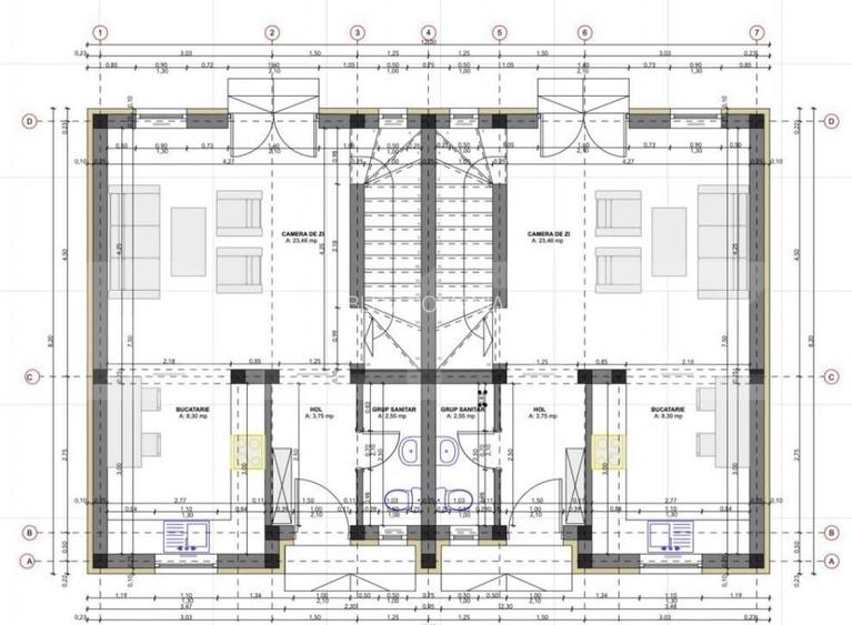
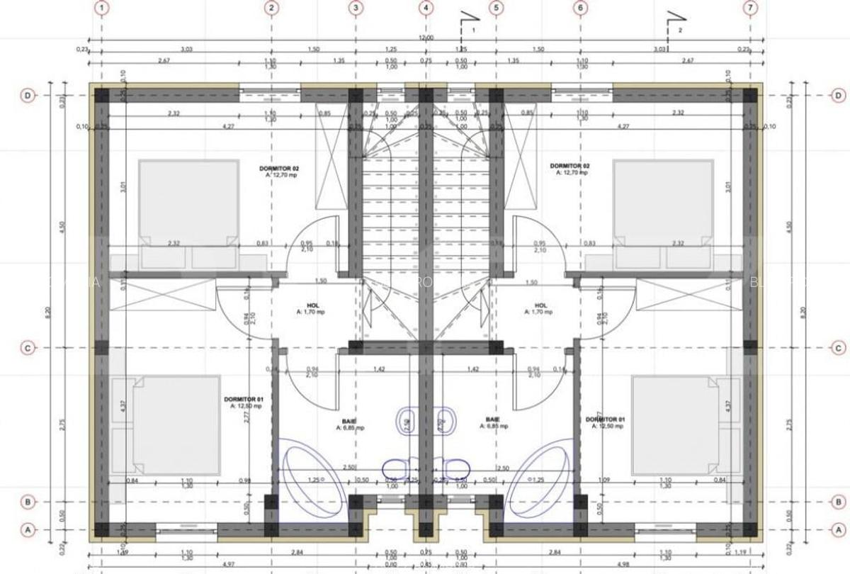
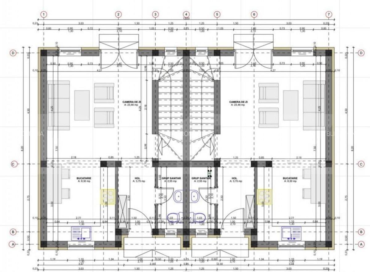
Blitz ofera spre vanzare un duplex modern, aflat in curs de executie, cu termen de predare estimat pentru februarie 2026. Locuintele sunt proiectate eficient, cu o suprafata utila de 73 mp fiecare si un teren aferent generos de 310 mp pentru fiecare jumatate. Fiecare unitate este structurata pe parter si etaj (P+E), avand 3 camere bine compartimentate: living, bucatarie, doua dormitoare si doua bai, ideale pentru familii sau pentru cei care isi doresc un spatiu bine organizat. Accesul catre proprietate se face pe un drum de servitute privat, ceea ce asigura liniste si intimitate. Zona este in plina dezvoltare si ofera un echilibru perfect intre confortul urban si linistea unui cartier rezidential. Desi constructia acestui duplex este inca in desfasurare, avem un alt imobil identic, finalizat recent, construit de catre aceeasi echipa, pe care il puteti vizita. Acesta va ofera o imagine fidela asupra calitatii lucrarilor, a designului si a finisajelor care vor fi replicate in proiectul actual. Astfel, puteti avea o viziune clara asupra viitoarei dumneavoastra locuinte. Este o oportunitate excelenta de a achizitiona o casa noua, intr-o etapa in care inca se pot personaliza unele detalii. Pentru mai multe informatii sau programarea unei vizionari, nu ezitati sa ne contactati! Cod oferta / ID BLITZ: P147370 Id intern: P147370 Numar niveluri imobil: 1 Numar Bai: 2 Curent Apa Gaz Clima Publicat prin HomeZZ.ro, vezi anuntul complet aici.
Citește mai mult Citește mai puțin
ID anunț: 611611 Actualizat în: 16 Decembrie 2025
Nr. camere: 3
Suprafață utilă: 73 mp
Suprafață utilă totală: 73 mp
Suprafață teren: 620 mp

Istoric preț

Proprietăți similare

Casă cu 3 camere în Sânandrei
€ 112.000
Județul Timiș, Sânandrei
3 camere
80 mp
Casă cu 3 camere cu Teren 260 Mp în Sânandrei
€ 119.000
Județul Timiș, Sânandrei
3 camere
69 mp
260 mp teren
Casă cu 3 camere în Sânandrei
€ 112.000
Județul Timiș, Sânandrei
3 camere
75 mp
Casă cu 2 camere cu Teren 350 Mp în Sânandrei
€ 114.500
Județul Timiș, Sânandrei
2 camere
72 mp
Casă cu 4 camere cu Teren 180 Mp în Sânandrei
€ 109.990
Județul Timiș, Sânandrei
4 camere
150 mp
180 mp teren
Casă cu 3 camere în Sânandrei
€ 120.000
Județul Timiș, Sânandrei
3 camere
74 mp
Casă cu 4 camere în Sânandrei
€ 120.000
Județul Timiș, Sânandrei
4 camere
80 mp
Casă cu 3 camere cu Teren 300 Mp în Sânandrei
€ 119.500
Județul Timiș, Sânandrei
3 camere
65 mp
Casă cu 4 camere cu Teren 280 Mp în Sânandrei
€ 119.990
Județul Timiș, Sânandrei
4 camere
150 mp
280 mp teren

Abonează-te la newsletter să fii primul care primește cele mai noi recomandări de proprietăți și sfaturi de la experți.