1 lună în urmă
5
- Proprietar
- Comision 0%
Duplex modern de vanzare
155.000 €
Șag, Județul Timiș
Descriere
Raportează anunț
Sesizează o problemă
Duplex modern de vanzare
Duplex modern de vanzare
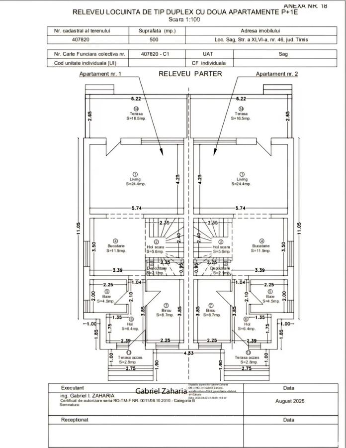
# De vanzare #Duplex nou ?i spa?ios in comuna ?ag (zona Manastirii), jude?ul Timi? Casa este despar?ita cu pere?i Dubli cu polistiren de 10 cm Oferim spre vanzare un duplex modern, construit in 2025, ideal pentru o familie care cauta lini?te, spa?iu ?i acces rapid catre ora?. Loca?ie: comuna ?ag, zona Manastirii un cartier reziden?ial in plina dezvoltare, situat la doar 10 km de Shopping City Timi?oara. #Suprafa?a utila: 119,9 mp Teren total: 500 mp curte generoasa, perfecta pentru relaxare, gradinarit sau amenajari exterioare Compartimentare: Parter + Etaj 3 dormitoare 2 bai Birou (ideal pentru work from home) Living spa?ios cu bucatarie open space Incalzire in Pardoseala Construc?ie noua finalizata in 2025 Finisaje moderne, compartimentare practica ?i toate condi?iile pentru un camin confortabil Pentru mai multe detalii sau pentru a programa o vizionare, nu ezita?i sa ma contacta?i in privat! Pret: 155000 uro Negociabil Pre? la Gri Interior : 145000 uro Negociabil Pret la rosu Interior 135000 uro Interior Direct De la Proprietar Comision 0% ID anun?
Citește mai mult
Citește mai puțin
ID anunț: 9236464
Actualizat în: 20 Noiembrie 2025
Nr. camere:
5
Suprafață utilă:
120 mp
Suprafață utilă totală:
120 mp
Suprafață construită:
142 mp
Nr. băi:
2
Suprafață teren:
250 mp
An construcție:
2025 (Finalizată)
Regim înălțime:
P+1E
Nr. locuri parcare:
1
Utilități
Utilități
Gaze
Internet
Proprietăți similare
Abonează-te la newsletter să fii primul care primește cele mai noi recomandări de proprietăți și sfaturi de la experți.
Căutări similare
- Case de vânzare în Șag
- Apartamente de vânzare în Cluj-Napoca
- Apartamente de vânzare în Timișoara
- Apartamente de închiriat în Timișoara
- Apartamente de vânzare în Cluj-Napoca
- Apartamente de vânzare în Timișoara
- Garsoniere de închiriat în Timișoara
- Apartamente de închiriat în Cluj-Napoca
- Apartamente de vânzare în Iași
- Apartamente de vânzare în Brașov
- Apartamente de vânzare în Florești
- Garsoniere de vânzare în Timișoara