Duplex modern cu pozitie excelenta-Sacalaz

129.900 €

Săcălaz, Judeţul Timiş

Nr. camere:
3
Suprafață utilă:
78 mp
Suprafață teren:
300 mp

Descriere casă

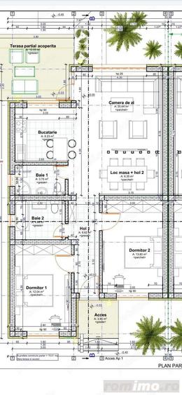
REX Imobiliare va propune spre vanzare un duplex modern pe parter cu 3 camere si teren generos, pozitie excelenta in Sacalaz. Imobilul in suprafata utila de 78 mp utili amplasat pe un teren de 300 mp este compartimentat astfel: hol acces, living generos cu bucatarie openspace cu posibiliatate de inchidere, 2 bai, 2 dormitoare generoase, terasa. Utilitati: apa, gaz, curent, fosa septica Termen finalizare: Iulie 2025 Pozele au caracter informativ. Pret: 129 900 euro la cheie Descopera locul unde visele tale devin realitate! O casa primitoare, plina de caldura ?i iubire, a?teapta sa devina noul tau camin. Suna acum la numarul: pentru mai multe detalii ?i pentru a programa o vizionare! ID anun? : 1768970347
Citește mai mult Citește mai puțin
Curte Centrală proprie 3 Parcări

Detalii casă

ID anunț: 47493 Actualizat în: 13 Februarie 2026
Nr. camere: 3
Suprafață utilă: 78 mp
Suprafață utilă totală: 78 mp
Suprafață construită: 98 mp
Nr. băi: 2
Suprafață teren: 300 mp
An construcție: 2024 (Finalizată)
Nr. locuri parcare: 3

Istoric preț

Facilități

Pereți
Vopsea lavabilă
Podele
Gresie Parchet
Ușă intrare
Parchet PVC
Izolații termice
Exterior
Contorizare
Apometre Contor căldură Contor gaz
Facilități imobil
Curte
Utilități
Apă Gaze
Sistem încălzire
Centrală proprie
Amenajare străzi
Iluminat stradal Mijloace de transport în comun Asfaltate Pietruite

Proprietăți similare

Casă cu 2 camere cu Teren 275 Mp în Săcălaz
125.000 €
Județul Timiș, Săcălaz
2 camere
62 mp
275 mp teren
Casă cu 4 camere cu Teren 610 Mp în Săcălaz
134.900 €
Județul Timiș, Săcălaz
4 camere
180 mp
610 mp teren
Casă cu 3 camere în Săcălaz
129.900 €
Județul Timiș, Săcălaz
3 camere
84 mp
Casă cu 4 camere cu Teren 200 Mp în Săcălaz
130.000 €
Județul Timiș, Săcălaz
4 camere
105 mp
Casă cu 5 camere în Săcălaz
125.000 €
Județul Timiș, Săcălaz
5 camere
176 mp
Casă cu 3 camere în Săcălaz
138.000 €
Județul Timiș, Săcălaz
3 camere
104 mp
Casă cu 3 camere cu Teren 629 Mp în Săcălaz
141.500 €
Județul Timiș, Săcălaz
3 camere
234 mp
629 mp teren
Casă cu 3 camere cu Teren 200 Mp în Săcălaz
122.000 €
Județul Timiș, Săcălaz
3 camere
80 mp
200 mp teren
Casă cu 4 camere cu Teren 180 Mp în Săcălaz
121.999 €
Județul Timiș, Săcălaz
4 camere
80 mp
180 mp teren

Abonează-te la newsletter să fii primul care primește cele mai noi recomandări de proprietăți și sfaturi de la experți.