COMISION 0 Casa 206 mp utili, 1341 mp teren, 3 cam, Valea Voievozilor

287.000 €

Răzvad, Judeţul Dâmboviţa

Nr. camere:
3
Suprafață utilă:
175 mp
Suprafață teren:
1.341 mp

Descriere casă

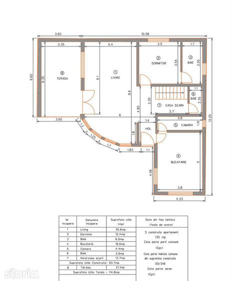
Celest Imob va prezinta in exclusivitate spre vanzare o vila moderna, finalizata in anul 2016, intr-o zona linistita din Valea Voievozilor, cu acces rapid catre centrul orasului, proprietate ce imbina armonios soliditatea constructiei cu confortul modern si eficienta o suprafata utila de 206 mp si o compartimentare echilibrata, aceasta vila este gandita pentru o familie care isi doreste spatiu generos, intimitate si costuri reduse de intretinere.Construita pentru durabilitateFinalizata in anul 2016, casa este realizata pe structura mixta din lemn si fier, cu grinzi masive de 17x7 cm, OSB de 1,8 cm si izolatie din vata bazaltica de 17 cm, oferind un nivel ridicat de siguranta si eficienta termica. Exteriorul este placat cu polistiren de 10 cm, iar tamplaria PVC gri antracit cu geam tripan completeaza foarte bine izolarea.Detaliile fac diferenta: glafuri din granit la exterior, MDF la interior, marmura in living si holuri, parchet de calitate in dormitoare, usi si mobilier din lemn masiv toate contribuie la un ambient cald si rafinat.Un mare plus al proprietatii il reprezinta panourile fotovoltaice, casa avand statut de prosumator, ceea ce inseamna independenta energetica si costuri optimizate pe termen lung.Spatiu bine organizat, lumina si functionalitateParter 87 mp utiliLa intrare va intampina un hol generos, care distribuie eficient accesul catre toate incaperile. Zona de zi este compusa dintr-un living spatios, luminos, ideal pentru momentele petrecute in familie. Parterul mai include un dormitor cu baie proprie, WC de serviciu, bucatarie mare si camara incapatoare. Din living se face accesul catre terasa exterioara, perfecta pentru relaxare.Etaj 87 mp utiliEtajul ofera un dormitor matrimonial foarte mare, un dressing generos (care poate deveni cu usurinta un al treilea dormitor), o baie si un spatiu suplimentar pentru depozitare. In plus, exista balcon, un loc intim pentru momentele de liniste.Confort pe tot parcursul anuluiProprietatea beneficiaza de incalzire in pardoseala pe curent, centrala pe gaze montata si instalatie pentru calorifere deja pozitionata in pereti, oferind flexibilitate si control asupra costurilor.Pentru o siguranta sporita au fost montate camere de supraveghere si vinde utilata si partial mobilata.Este racordata la apa, curent si gaze, dispune de fosa septica de capacitate mare si put propriu.Exterior complet si bine ganditCurtea este imprejmuita cu gard estetic, porti automatizate, beneficiaza de sistem de aspersie ingropat, ceea ce mentine spatiul verde usor de intretinut. Proprietatea dispune de garaj spatios cu usi automatizate pentru doua masini si de o constructie separata destinata camerei tehnice, unde este amplasata statia de purificare si dedurizare a apei.Aceasta vila nu este doar o locuinta, ci un spatiu construit cu grija, unde confortul, eficienta si linistea se intalnesc intr-un echilibru perfect. Ideala pentru o familie care cauta o proprietate solida, bine realizata si pregatita pentru accepta variante, apartament plus diferenta.Daca v-am starnit curiozitatea va asteptam la vizionare avand comision 0 la cumparator!
Citește mai mult Citește mai puțin

Detalii casă

Actualizat în: 23 Aprilie 2026 ID anunț: 1396390
Nr. camere: 3
Suprafață utilă: 175 mp
Suprafață utilă totală: 175 mp
Suprafață teren: 1.341 mp
An construcție: 2016

Istoric preț

Puncte de interes

Recreere
restaurants
Mec Dealu
Restaurante aprox. 1425 m

Proprietăți similare

Casă cu 5 camere cu Teren 7.1399998664856 Mp în Răzvad
290.193 €
Județul Dâmbovița, Răzvad
5 camere
230 mp
7,14 mp teren
Casă cu 4 camere în Ulmi
265.000 €
Județul Dâmbovița, Ulmi
4 camere
120 mp
Casă cu Teren 527 Mp în Mânăstirea
275.000 €
Județul Dâmbovița, Mânăstirea
153 mp
527 mp teren
Casă cu 4 camere în Exterior Vest
300.000 €
Târgoviște, Exterior Vest
4 camere
320 mp
Casă cu 3 camere cu Teren 464 Mp în Răzvad
315.000 €
Județul Dâmbovița, Răzvad
3 camere
464 mp
464 mp teren
Casă cu 6 camere cu Teren 1654 Mp în Aninoasa
259.900 €
Județul Dâmbovița, Aninoasa
6 camere
278 mp
1.654 mp teren
Casă cu 5 camere cu Teren 604 Mp în Răzvad
290.000 €
Județul Dâmbovița, Răzvad
5 camere
604 mp
604 mp teren
Casă cu 4 camere cu Canalizare în Micro 4
269.000 €
Târgoviște, Micro 4
4 camere
320 mp
346 mp teren
Casă cu 4 camere cu Teren 5423 Mp în Petrești
270.000 €
Județul Dâmbovița, Petrești
4 camere
5.423 mp
5.423 mp teren

Abonează-te la newsletter să fii primul care primește cele mai noi recomandări de proprietăți și sfaturi de la experți.