Vilă la munte / Proprietate investițională – Predeal

249.900 €

Predeal, Judeţul Braşov

Nr. camere:
6
Suprafață utilă:
207,2 mp
Suprafață teren:
400,72 mp

Descriere casă

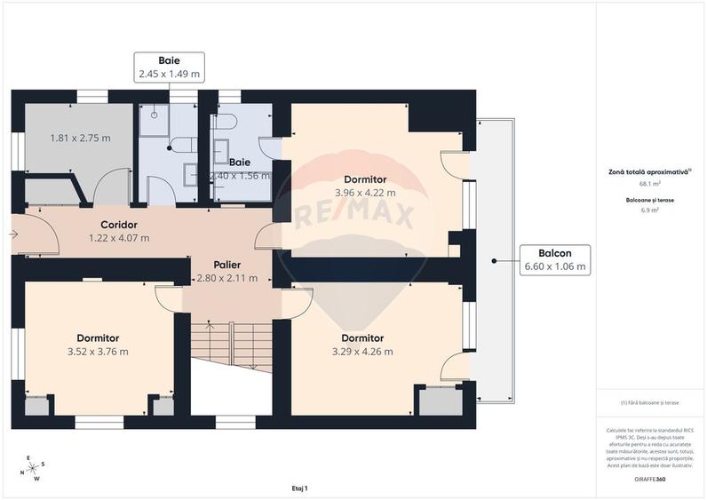
Casă investițională de vânzare – Predeal, Poiana Narciselor nr. 25 Vă propunem spre vânzare o vilă situată într-un cartier de case din Predeal, în imediata apropiere a pădurii, ideală atât ca locuință de vacanță, cât și ca proprietate investițională pentru închiriere în regim turistic. Imobilul beneficiază de acces din două străzi, oferind flexibilitate excelentă pentru utilizare și exploatare. Construcția este realizată în anul 2005, pe structură de beton și BCA, cu placă de beton între etaje. Mansarda este termoizolată, iar acoperișul este din tablă Lindab. Proprietatea se vinde mobilată și utilată și dispune de șemineu funcțional. În curte există spațiu de parcare, iar exteriorul este completat de o terasă generoasă cu grătar, cu acces direct către curte. Suprafața terenului este de 400,72 mp, din care curtea liberă reprezintă 299,42 mp. Amprenta la sol este de 101 mp. Casa are o suprafață utilă de 207,2 mp și o suprafață construită desfășurată de 304 mp. Imobilul este dispus pe demisol locuibil, parter și mansardă și cuprinde 6 camere, dintre care 5 dormitoare și un living, precum și 5 băi. Întreaga proprietate beneficiază de centrală termică proprie și calorifere, asigurând confort și control eficient al încălzirii. Demisolul are o suprafață utilă de 68,7 mp și include o terasă de 35,8 mp cu grătar. Compartimentarea cuprinde bucătărie complet echipată, living, baie, cameră tehnică și spații de depozitare. Parterul are 68,1 mp utili și un balcon de 6,9 mp. Aici regăsim 3 dormitoare, dintre care unul cu baie proprie, două dormitoare cu acces la balcon, o baie pe hol și o cameră de depozitare. Mansarda dispune de 70,4 mp utili, la care se adaugă balcoane în suprafață de 9 mp. Compartimentarea include două camere mari, fiecare cu balcon și baie proprie, plus spații de depozitare. Datorită compartimentării eficiente, numărului mare de băi, curții libere și accesului facil, proprietatea se pretează foarte bine atât pentru utilizare personală ca vilă de vacanță, cât și pentru exploatare în regim turistic. Preț: 249.900 euro. Vă așteptăm la vizionare.
Citește mai mult Citește mai puțin
Mobilat Mobilat Calorifere Centrală proprie Zonă de deal / munte

Detalii casă

ID anunț: 3568229 Actualizat în: 18 Februarie 2026
Nr. camere: 6
Suprafață utilă: 207,2 mp
Suprafață utilă totală: 207,2 mp
Nr. băi: 5
Suprafață teren: 400,72 mp
An construcție: 2005

Istoric preț

Facilități

Pereți
Faianță Vopsea lavabilă
Podele
Gresie Parchet
Ușă intrare
Parchet Lemn Metal PVC
Uși interior
Lemn PVC
Izolații termice
Exterior
Ferestre cu geam termopan
Lemn PVC
Contorizare
Apometre Contor căldură Contor gaz
Bucătărie
Mobilată Utilată
Mobilat
Mobilat
Electrocasnice
Hotă
Sistem încălzire
Calorifere Centrală proprie
Amenajare străzi
Iluminat stradal

Puncte de interes

Mijloace transport
transport
Statia CFR Predeal
Mijloace transport aprox. 418 m
transport
Gara Predeal
Mijloace transport aprox. 420 m
Școală
education
Gradinita nr. 1
Învățământ aprox. 168 m
education
Liceul Mihail Saulescu
Învățământ aprox. 635 m
education
Liceul Teoretic Mihail Săulescu
Învățământ aprox. 637 m
education
Gradinita 1A
Învățământ aprox. 732 m
Recreere
restaurants
Restaurant Vatra Regala ***
Restaurante aprox. 241 m
parks
Parc
Recreere aprox. 246 m
shopping
Supermarket
Supermarket/Mall aprox. 333 m
shopping
Carrefour Market
Supermarket/Mall aprox. 396 m

Proprietăți similare

Casă cu 6 camere cu Canalizare în Cioplea
260.000 €
Județul Brașov, Predeal
6 camere
160 mp
544 mp teren
Casă cu 6 camere cu Canalizare în Cioplea
230.000 €
Județul Brașov, Predeal
6 camere
246 mp
246 mp teren
Casă cu 8 camere cu Teren 1346 Mp în Bran
239.000 €
Județul Brașov, Bran
8 camere
180 mp
1.346 mp teren
Casă cu 7 camere cu Teren 500 Mp în Central
264.900 €
Județul Brașov, Codlea
7 camere
292 mp
500 mp teren
Casă cu Canalizare în Central
230.000 €
Județul Brașov, Codlea
320 mp
1.345 mp teren
Casă cu 3 camere cu Canalizare în Sânpetru
260.000 €
Județul Brașov, Sânpetru
3 camere
100 mp
Casă cu 4 camere cu Piscina în Cristian
250.000 € + TVA
Județul Brașov, Cristian
4 camere
109 mp
500 mp teren
Casă cu 4 camere cu Teren 753 Mp în Prejmer
249.990 €
Județul Brașov, Prejmer
4 camere
130 mp
753 mp teren
Casă cu 5 camere cu Teren 250 Mp în Central
250.000 €
Brașov, Central
5 camere
140 mp
250 mp teren

Abonează-te la newsletter să fii primul care primește cele mai noi recomandări de proprietăți și sfaturi de la experți.