 
            
                            
                    
            
                7 luni în urmă            
        
                    
                
                                    
                
                    18
                
            
            - Agenție
Carol Szekeres
                
                    145.000 €
                    
                                    
            
        
            Actualizat pe: 23 Oct 2025
    
Carol Szekeres
                
                    145.000 €
                    
                                    
            
        
            Actualizat pe: 30 Oct 2025
    
Casa generoasa in Periam jude? Timi?
                
                    145.000 €
                    
                                    
            
        
            Periam, Județul Timiș
Descriere
        
        Raportează anunț
    
    
    
    
        
        
            
            
            
                
            
                                    
                            
        
        
    
                                        Sesizează o problemă
Casa generoasa in Periam jude? Timi?
Casa generoasa in Periam jude? Timi?
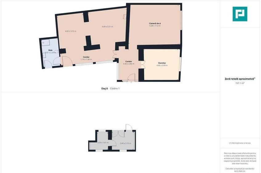
                                            Oferim spre vanzare o casa excelenta situata in centrul comunei Periam, intr-o zona linistita si foarte accesibila, chiar langa Scoala Gimnaziala si Primaria din Periam, perfecta pentru o familie care isi doreste confort si apropiere de facilitati. Detalii proprietate: Suprafata constructie: 200mp Teren: 784mp Front stradal: 14 metri Compartimentare: 4 camere spatioase si luminoase, ideale pentru un trai confortabil Hol generos la intrare, care iti ofera un prim impact placut Bucatarie open space cu sufragerie, creand un spatiu perfect pentru petrecerea timpului in familie Baie generoasa si luminoasa, cu finisaje de calitate superioara Extensie cu camera tehnica si terasa neamenajata, care poate fi personalizata conform nevoilor noilor proprietari La exterior: Constructie suplimentara destinata pentru bucatarie de vara, ideala pentru relaxare si momentele de vara Incalzirea se prin centrala proprie pe gaz si calorifere dar exista si posibilitatea incalzirii cu soba pe lemne. Aceasta casa, construita in 1988, a fost complet renovata in 2020, folosindu-se materiale premium, in special in ceea ce priveste tamplaria de inalta calitate. De asemenea, usile interioare originale au fost reconditionate cu maiestrie, pastrandu-se astfel farmecul si caracterul casei. Proprietatea se vinde partial mobilata, oferind noilor proprietari libertatea de a adauga propriile idei si stiluri in amenajarea spatiilor. Aceasta oportunitatea este ideala pentru cei care cauta un imobil deosebit, renovat cu gust, intr-o locatie centrala si accesibila. Nu ratati ocazia de a deveni proprietarul unei astfel de case! Contactati-ne pentru detalii suplimentare si pentru a programa o vizionare! Edith Berezovski -     
                                        
        07466****phone_0
        Vezi tot numărul
    
 [email protected] CP2363103 Numar niveluri imobil: 1 Numar Bai: 1 Posibilitate parcare: Nu Curent Apa Canalizare Gaz Incalzire Publicat prin HomeZZ.ro, vezi anuntul complet aici.
                                        
                                            
                                                Citește mai mult
                                                Citește mai puțin
                                            
                                        
                                    
            
                ID anunț: 1178477
            
                            
                    Actualizat în: 30 Octombrie 2025
                
                    
        
                            
                                Nr. camere:
                            
                            
                                3
                            
                        
                                                                                
                            
                                Suprafață utilă:
                            
                            
                                170 mp
                            
                        
                                                                                
                            
                                Suprafață utilă totală:
                            
                            
                                170 mp
                            
                        
                                                                                
                            
                                Nr. băi:
                            
                            
                                1
                            
                        
                                                                                
                            
                                Suprafață teren:
                            
                            
                                784 mp
                            
                        
                                                                                
                            
                                Front stradal:
                            
                            
                                20 m
                            
                        
                                                                                
                            
                                An construcție:
                            
                            
                                1988
                            
                        
                                                                                
                            
                                Regim înălțime:
                            
                            
                                P+1E
                            
                        
                                    
                            Utilități
                                        
                                        
                                            Utilități
                                        
                                        
                                        
                                                                    
                                    
                                    
                                                                                            
                                                    Apă
                                                
                                                                                            
                                                    Gaze
                                                
                                                                                            
                                                    Canalizare
                                                
                                                                                    
                                    
                                        
                                        
                                            Facilități
                                        
                                        
                                        
                                                            
                                                                                            
                                                    Curte
                                                
                                                                                            
                                                    Garaj
                                                
                                                                                    
                                    Proprietăți similare
                    Listă vânzători
                
                Carol Szekeres
                
                    145.000 €
                    
                                    
            
        
            Actualizat pe: 23 Oct 2025
    
Carol Szekeres
                
                    145.000 €
                    
                                    
            
        
            Actualizat pe: 30 Oct 2025
    
Abonează-te la newsletter să fii primul care primește cele mai noi recomandări de proprietăți și sfaturi de la experți.
Căutări similare
- Case de vânzare în Periam
- Case de vânzare în Timișoara
- Case de vânzare în Moșnița Nouă
- Case de vânzare în Dumbrăvița
- Case de vânzare în Giroc
- Case de vânzare în Lugoj
- Case de vânzare în Sânandrei
- Case de vânzare în Moșnița Veche
- Case de vânzare în Giarmata
- Case de vânzare în Săcălaz
- Case de vânzare în Bucovăț (Remetea Mare)
- Case de vânzare în Sânmihaiu Român
 
                            
                         
                            
                         
                            
                         
                            
                         
                            
                         
                            
                         
                            
                         
                            
                         
                            
                         
                            
                         
                            
                         
                            
                         
                            
                         
                            
                         
                            
                         
                            
                         
                            
                         
                            
                         
                            
                            
                                             
                            
                            
                                             
                            
                            
                                             
                            
                            
                                             
                            
                            
                                             
                            
                            
                                             
                            
                            
                                             
                            
                            
                                             
                            
                            
                                             
                            
                            
                                             
                            
                            
                                             
                            
                            
                                             
                            
                            
                                             
                            
                            
                                             
                            
                            
                                             
                            
                            
                                             
                            
                            
                                             
                            
                            
                                             
             
             
             
             
             
             
             
            