Clinceni-Ordoreanu, Casa 126 Mp, Teren 443 Mp!

115.000 €

Ordoreanu, Judeţul Ilfov

Nr. camere:
4
Suprafață utilă:
112 mp

Descriere casă

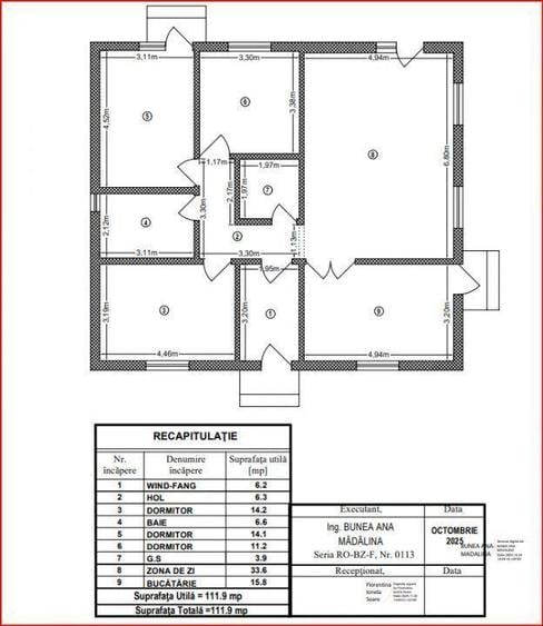
OFERTA CU 0% COMISION PENTRU CUMPARATOR !! In Clinceni, sat Ordoreanu, str. Pescarusului nr. 11A, va propun o casa situata langa padure ideala pentru confort, intimitate si aer curat. Construita in 2025 pe structura metalica zincata (Light Steel Frame), un sistem modern si eficient energetic, casa beneficiaza de izolatie din vata minerala bazaltica, placare OSB pentru rigidizare si sistem termoizolant exterior, asigurand un confort termic ridicat si costuri reduse de intretinere. Compartimentare: 4 camere decomandate, bucatarie si 2 bai, cu o suprafata utila de 112 mp si amprenta la sol de 126 mp. Terenul are o suprafata de 443 mp si o deschidere stradala generoasa de 20 ml. Proprietatea se vinde la stadiul actual, necesitand lucrari de finalizare, oferindu-va posibilitatea de a o personaliza dupa propriul gust.
Citește mai mult Citește mai puțin

Detalii casă

ID anunț: 3653812 Actualizat în: 26 Martie 2026
Nr. camere: 4
Suprafață utilă: 112 mp
Suprafață utilă totală: 112 mp

Istoric preț

Proprietăți similare

Casă cu 3 camere în Ordoreanu
105.000 €
Județul Ilfov, Ordoreanu
3 camere
150 mp
Casă cu 4 camere cu Teren 130 Mp în Central
105.000 €
Județul Ilfov, Măgurele
4 camere
130 mp
130 mp teren
Casă cu 3 camere cu Canalizare în Vidra
111.500 € + TVA
Județul Ilfov, Vidra
3 camere
79 mp
343 mp teren
Casă cu 4 camere în Est
125.000 €
Județul Ilfov, Bragadiru
4 camere
142 mp
Casă cu 4 camere cu Teren 157 Mp în Vârteju
110.000 €
Județul Ilfov, Vârteju
4 camere
110,6 mp
157 mp teren
Casă cu 3 camere decomandat în Olteni
120.000 €
Județul Ilfov, Olteni
3 camere
70 mp
Casă cu 4 camere în Pasărea
122.000 €
Județul Ilfov, Pasărea
4 camere
174 mp
Casă cu 4 camere cu Teren 250 Mp în Berceni
120.000 €
Județul Ilfov, Berceni
4 camere
110 mp
250 mp teren
Casă cu 3 camere în Glina
105.000 €
Județul Ilfov, Glina
3 camere
58 mp

Abonează-te la newsletter să fii primul care primește cele mai noi recomandări de proprietăți și sfaturi de la experți.