De vanzare casa 5 camere in zona Dealuri Oradea

360.000 €

Dealuri Oradea, Oradea

Nr. camere:
4
Suprafață utilă:
244 mp

Descriere casă

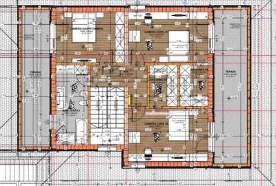
Va propunem spre vanzare o casa superba , cu regim de inaltime P+E, situata in cadrul Ansamblului Rezidential SpringHill, ideala pentru familiile care isi doresc confort urban intr-un cadru verde, linistit si aerisit, dar cu o buna conectivitate la drumul expres care se afla la 5 min. cu masina. Locuinta are o suprafata utila de 245 mp, fiind compartimentata eficient pe doua niveluri: Parter: hol de intrare, birou, dressing, bucatarie, spatiu de depozitare, living cu zona de dining, baie si doua terase, dintre care una acoperita. Etaj: hol, 3 dormitoare, 3 dressing-uri, 2 bai si 3 terase. Constructia este realizata din materiale de calitate superioara, cu accent pe eficienta energetica: -zidarie exterioara stratificata (caramida + termoizolatie 20/15 cm) -zidarie interioara din caramida -tamplarie PVC cu geam triplu low-e cu argon -acoperis tip terasa, termoizolat -incalzire prin pardoseala in toata casa Exteriorul beneficiaza de finisaje moderne: tencuiala decorativa, placaje din piatra si elemente decorative cu aspect de lemn. Casa este cu bransamentele facute la reteaua de apa, canal, curent iar gazul este in fata casei. Totodata exista gard, trotuar perimetral complet in jurul casei si un carport. Casa este eligibila pentru creditare si se poate vinde si prin credit bancar. Cartierul este locuit si a fost vandut in pondere de 90%, aceasta casa fiind printre ultimele unitati disponibile spre vanzare Pentru vizionari si informatii suplimentare va rog sa ma contactati.
Citește mai mult Citește mai puțin

Detalii casă

ID anunț: 3444081 Actualizat în: 10 Aprilie 2026
Nr. camere: 4
Suprafață utilă: 244 mp
Suprafață utilă totală: 244 mp

Istoric preț

Puncte de interes

Recreere
shopping
Billa
Supermarket/Mall aprox. 1860 m
shopping
Novaeuro
Supermarket/Mall aprox. 1875 m

Proprietăți similare

Casă cu Teren 1146 Mp în Dealuri Oradea
327.000 €
Oradea, Dealuri Oradea
342 mp
1.146 mp teren
Casă cu 4 camere cu Teren 631 Mp în Dealuri Oradea
369.800 €
Oradea, Dealuri Oradea
4 camere
380 mp
Casă cu 4 camere decomandat în Ultracentral
360.000 €
Oradea, Ultracentral
4 camere
113 mp
Casă cu 5 camere cu Teren 600 Mp în Oncea
377.000 €
Oradea, Oncea
5 camere
286 mp
600 mp teren
Casă cu 4 camere cu Teren 322 Mp în Cantemir
360.000 €
Oradea, Cantemir
4 camere
341 mp
Casă cu 5 camere cu Teren 1880 Mp în Iorga
384.900 €
Oradea, Iorga
5 camere
195,5 mp
1.880 mp teren
Casă cu 4 camere în Oncea
377.000 €
Oradea, Oncea
4 camere
286 mp
Casă cu 4 camere în Iosia
350.000 €
Oradea, Iosia
4 camere
1.003 mp
Casă cu Teren 688 Mp în Spitalul Județean
390.000 €
Oradea, Spitalul Județean
348 mp
688 mp teren

Abonează-te la newsletter să fii primul care primește cele mai noi recomandări de proprietăți și sfaturi de la experți.