Se vinde Casa P+M Prahova-Breaza-OcinaSe vinde Casa P+M Prahova-Breaza-Ocina

€ 168.500

Ocina de Jos, Judeţul Prahova

Nr. camere:
1
Suprafață utilă:
236 mp

Descriere

Raportează anunț

Se vinde Casa P+M Prahova-Breaza-OcinaSe vinde Casa P+M Prahova-Breaza-Ocina

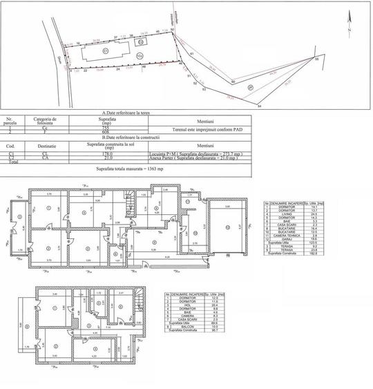
Descriere generala Proprietatea consta intr-o casa amplasata pe un teren de 1363 mp, perfect imprejmuit conform planului cadastral recent (2025). Casa dispune de doua niveluri (parter + mansarda), cu suprafata construita totala de 278,5 mp si utila de 236 mp. Imobilul se afla intr-o zona linistita, cu acces facil si priveliste frumoasa. Compartimentare parter Living generos: 24,5 mp. 3 dormitoare: 14,1 mp, 13,7 mp, 14,3 mp. 2 bucatarii: 16,4 mp + 12,5 mp. Baie: 3,3 mp. Camera tehnica: 2,8 mp. Garaj interior: 19,6 mp. Terase: 9,2 mp + 23,8 mp. Holuri, spatiu pentru depozitare si casa scarii. Compartimentare mansarda 3 dormitoare: 12,9 mp, 11,6 mp, 9,8 mp. 1 camera multifunctionala: 8,3 mp. Baie: 4,6 mp. Hol: 20,4 mp. Balcon: 10 mp. Detalii teren Suprafata totala teren: 1363 mp, cu 755 mp intravilan si 608 mp extravilan. Teren imprejmuit, delimitat, cu acces din drum. Dotari & facilitati Garaj interior, camera tehnica, spatii generoase de depozitare. Terase acoperite si balcon la mansarda. Proiect cadastral, carte funciara si masuratori actualizate. Potrivita pentru familie, rezidenta permanenta sau casa de vacanta. Locatie Sat Ocina de Jos, comuna Adunati, judetul Prahova. Zona pitoreasca, linistita, cu acces rapid la principalele drumuri. Pentru detalii suplimentare si vizionari, va rugam sa ne contactati! ID anun? : 1768228568
Citește mai mult Citește mai puțin
ID anunț: 3248778 Actualizat în: 22 Ianuarie 2026
Nr. camere: 1
Suprafață utilă: 236 mp
Suprafață utilă totală: 236 mp
An construcție: 2000

Istoric preț

Proprietăți similare

Casă cu 4 camere cu Teren 132 Mp în Mihai Bravu
€ 170.000
Ploiești, Mihai Bravu
4 camere
85,08 mp
132 mp teren
Casă cu 5 camere cu Canalizare în Blejoi
€ 180.000
Județul Prahova, Blejoi
5 camere
160 mp
1.223 mp teren
Casă cu 4 camere cu Canalizare în Transilvaniei
€ 160.000
Ploiești, Transilvaniei
4 camere
147,28 mp
206 mp teren
Casă cu 4 camere cu Canalizare în Central
€ 159.900
Ploiești, Central
4 camere
90 mp
140 mp teren
Casă cu 5 camere cu Teren 600 Mp în Strejnicu
€ 180.000
Județul Prahova, Strejnicu
5 camere
150 mp
600 mp teren
Casă cu Teren 750 Mp în Lipănești
€ 175.000
Județul Prahova, Lipănești
230 mp
750 mp teren
Casă cu 3 camere cu Canalizare în Central
€ 160.000
Județul Prahova, Băicoi
3 camere
115,6 mp
300 mp teren
Casă cu 5 camere în Central
€ 170.000
Județul Prahova, Azuga
5 camere
199 mp
Casă cu 2 camere cu Canalizare în Central
€ 159.999
Județul Prahova, Sinaia
2 camere
50 mp
115 mp teren

Abonează-te la newsletter să fii primul care primește cele mai noi recomandări de proprietăți și sfaturi de la experți.