Casa si teren Loc. Slobozia, com. Popesti, jud. Arges

22.438 €

Oarja, Judeţul Argeş

Nr. camere:
2
Suprafață utilă:
50 mp
Suprafață teren:
550 mp

Descriere casă

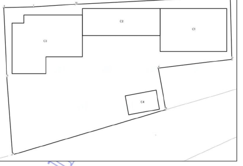
Se vinde la licitatie! Casa si teren Loc. Slobozia, com. Popesti, jud. Arges. Suprafata construita desfasurat: C1 64 mp, C2 anexa 47 mp, C 3 anexa 76 mp. Accesul se realizeaza pe strada Farmaciei, strada asfaltata, cu dublu sens, ce se conecteaza la DJ504. Proprietatea are acces la caile de transport in comun - linii de autobuz. Proprietatea beneficiaza de un teren in suprafata de 550 metri patrati. Proprietatea are front public de 23,9 metri la strada Farmaciei. Conform informatiilor obtinute, proprietatea a fost edificata in jurul anilor 1960. Constructia este locuinta cu regim de inaltime parter. Aspectul imobilului, cel exterior se prezinta intr-o stare medie. Solutia constructiva aferenta imobilului ca este din caramida. Cladirea este prevazuta cu acoperis tip sarpanta din lemn, invelita cu tabla. Finisajele interioare ale constructiei sunt considerate intr-o stare medie. Tamplaria exterioara este realizata din tocuri din lemn si geamuri simple. Imobilul beneficiaza de utilitatile prezente in zona. Consideram ca imobilul beneficiaza de sistem de incalzire cu soba de teracota.
Citește mai mult Citește mai puțin
Zonă rurală

Detalii casă

Actualizat în: 06 Mai 2026 ID anunț: 1387497
Nr. camere: 2
Suprafață utilă: 50 mp
Suprafață utilă totală: 50 mp
Suprafață teren: 550 mp
An construcție: 1960

Istoric preț

Puncte de interes

Școală
education
Scoala Generala Dumitru Radulescu
Învățământ aprox. 173 m

Proprietăți similare

Casă cu 4 camere în Central
22.000 €
Pitești, Central
4 camere
110 mp
Casă cu 2 camere cu Teren 1200 Mp în Corbeni
23.900 €
Județul Argeș, Corbeni
2 camere
69 mp
1.200 mp teren
Casă cu 3 camere în Livezeni
23.500 €
Județul Argeș, Livezeni
3 camere
80 mp
Casă cu 2 camere cu Canalizare în Căpățânenii Pământeni
23.900 €
Județul Argeș, Căpățânenii Pământeni
2 camere
69 mp
1.200 mp teren
Casă cu 2 camere în Ștefănești
21.000 €
Județul Argeș, Ștefănești
2 camere
70 mp
Casă cu 2 camere cu Teren 685 Mp în Mălureni
24.000 €
Județul Argeș, Mălureni
2 camere
45 mp
685 mp teren
Casă cu 1 camere cu Teren 1000 Mp în Băbana
22.500 €
Județul Argeș, Băbana
1 camere
25 mp
1.000 mp teren
Casă cu 2 camere în Leordeni
23.500 €
Județul Argeș, Leordeni
2 camere
50 mp
Casă cu 1 camere în Bascov
23.000 €
Județul Argeș, Bascov
1 camere
30 mp

Abonează-te la newsletter să fii primul care primește cele mai noi recomandări de proprietăți și sfaturi de la experți.