Vila mediteraneana in Nojorid | 273mp | 5 dormitoare | Teren 652mp

160.000 €

Nojorid, Judeţul Bihor

Nr. camere:
4
Suprafață utilă:
200 mp

Descriere casă

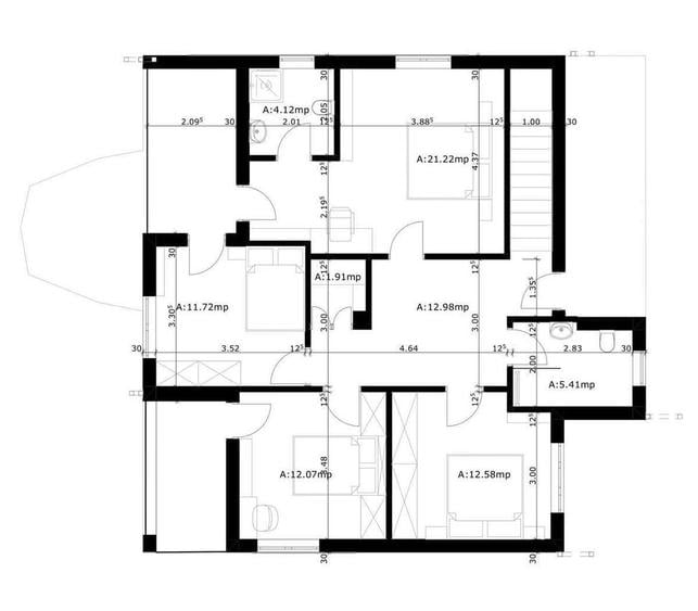
Aceasta constructie solida din caramida, cu o suprafata desfasurata de 273 mp, este ideala pentru o familie care cauta spatiu, lumina si un design cu influente italiene.Configuratie Parter: Un living generos de peste 50 mp, unde peretele vitrat panoramic transforma curtea intr-un tablou viu. Include zona de dining, bucatarie separata, birou/dormitor si camera tehnica. Parterul este conceput pentru a fi inima casei, oferind un echilibru perfect intre functionalitate si relaxare:Living generos: O suprafata impresionanta de 53,12 mp, completata de un tavan din lemn masiv care adauga caracter spatiului.Zona de dining panoramica: Un spatiu vitrat de 9,39 mp care se deschide spre curte, inundand livingul cu lumina naturala.Bucatarie separata: Suprafata de 13,23 mp, ideala pentru gatit fara ca aromele sa ajunga in zona de zi.1 dormitor/birou: Un spatiu versatil de 13,94 mp situat la parter.Utilitate: Hol larg (13,55 mp), baie de serviciu si spatii de depozitare integrate.Configuratie etaj: Sanctuarul familiei. Un dormitor matrimonial cu baie privata si balcon, plus inca 3 dormitoare deservite de balcoane si o baie principala. Balconul holului este locul perfect pentru a admira apusul deasupra zonei verzi. Etajul este dedicat odihnei, oferind 4 dormitoare bine compartimentate:1 dormitor matrimonial: Un ansamblu privat de 21,22 mp, dotat cu baie proprie de 4,12 mp si iesire pe balcon.3 dormitoare copii/oaspeti: Trei camere suplimentare cu suprafete intre 11,72 mp si 12,58 mp.Baie principala: Spatioasa, in suprafata de 5,41 mp.Detalii TehniceStructura: Caramida cu acoperis din tabla de calitate.Sistem termic: Incalzire in pardoseala cu control individual pe fiecare camera (termostate instalate).Stadiu predare: Interior la alb (sapa turnata, instalatii electrice complete), exterior finisat la cheie cu tencuiala decorativa.Teren: 652 mp, oferind o amprenta la sol a casei de 149 mp, restul ramanand curte libera pentru amenajari verzi sau piscina.Aceasta proprietate nu este doar o constructie, ci o oportunitate de a va personaliza locuinta intr-un stil mediteranean autentic. Curtea este pregatita pentru a deveni o gradina de vis, avand spatiu generos pentru piscina, foisor sau loc de joaca, pastrand in acelasi timp intimitatea fata de vecini. Cu toate utilitatile la poarta (gaz, apa, curent, canalizare), este pregatita sa devina noul dumneavoastra acasa.
Citește mai mult Citește mai puțin

Detalii casă

ID anunț: 280776 Actualizat în: 03 Aprilie 2026
Nr. camere: 4
Suprafață utilă: 200 mp
Suprafață utilă totală: 200 mp

Istoric preț

Puncte de interes

Recreere
restaurants
Route 79
Restaurante aprox. 1012 m

Proprietăți similare

Casă cu 4 camere cu Teren 460 Mp în Nojorid
165.000 €
Județul Bihor, Nojorid
4 camere
105 mp
460 mp teren
Casă cu 5 camere cu Teren 1000 Mp în Nojorid
155.000 €
Județul Bihor, Nojorid
5 camere
220 mp
1.000 mp teren
Casă cu 3 camere în Nojorid
173.000 €
Județul Bihor, Nojorid
3 camere
Casă cu 5 camere cu Teren 1000 Mp în Nojorid
150.000 €
Județul Bihor, Nojorid
5 camere
235 mp
1.000 mp teren
Casă cu 4 camere cu Teren 470 Mp în Nojorid
175.000 €
Județul Bihor, Nojorid
4 camere
160 mp
470 mp teren
Casă cu 5 camere cu Teren 1000 Mp în Nojorid
155.000 €
Județul Bihor, Nojorid
5 camere
85 mp
1.000 mp teren
Casă cu 4 camere cu Teren 360 Mp în Nojorid
160.000 €
Județul Bihor, Nojorid
4 camere
82 mp
360 mp teren
Casă cu 4 camere decomandat cu Teren 251 Mp în Nojorid
159.000 €
Județul Bihor, Nojorid
4 camere
101 mp
251 mp teren
Casă în Nojorid
153.000 €
Județul Bihor, Nojorid
101 mp

Abonează-te la newsletter să fii primul care primește cele mai noi recomandări de proprietăți și sfaturi de la experți.