Duplex P+1E, 86 mp utili+ 13mp terasa, 250 mp teren, Mosnita Veche

145.000 €

Moşniţa Veche, Judeţul Timiş

Suprafață utilă:
86 mp
Suprafață teren:
250 mp
Nr. niveluri:
1

Descriere casă

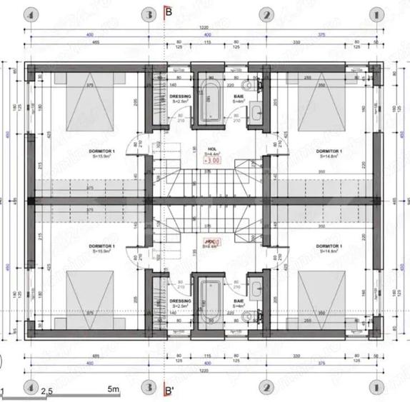
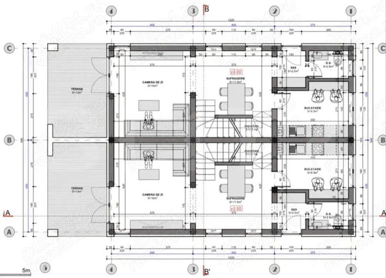
BLITZ va propune spre vanzare un duplex P+1E, ideal pentru cei care i?i doresc confort, intimitate ?i acces rapid catre ora?, intr-o zona lini?tita, aproape de asfalt, magazine si cu acces rapid catre centura. Locuin?a dispune de 86 mp utili ?i o terasa acoperita de 13 mp, amplasata pe un teren de 250 mp. Compartimentarea este gandita echilibrat: la parter regasim bucataria (cu posibilitate de inchidere), un living spa?ios cu ie?ire directa pe terasa ?i o baie cu du?, iar la etaj doua dormitoare luminoase, dressing ?i o baie cu cada. Construc?ia beneficiaza de geamuri tripan mari, incalzire in pardoseala, acoperi? in doua ape, pavaj ?i toate utilita?ile necesare apa de la re?ea, gaz, curent, canalizare, iluminat stradal func?ional ?i asfalt frezat. Toate acestea contribuie la un plus de eficien?a, confort termic ?i costuri optimizate pe termen lung. Termenul de predare este mai 2026. Pre?ul este de 145.00 EUR la cheie sau 135.000 EUR la alb la interior. O alegere potrivita pentru un camin modern, luminos, bine compartimentat ?i pregatit sa devina acasa. Cod oferta / ID BLITZ: P164516 ID anun? : 1771313719
Citește mai mult Citește mai puțin

Detalii casă

ID anunț: 3526497 Actualizat în: 17 Februarie 2026
Suprafață utilă: 86 mp
Suprafață utilă totală: 86 mp
Nr. băi: 2
Suprafață teren: 250 mp
Front stradal: 6 m
An construcție: 2025
Regim înălțime: P+1E

Istoric preț

Facilități

Utilități
Apă Gaze

Proprietăți similare

Casă cu 3 camere cu Teren 239 Mp în Moșnița Veche
138.000 €
Județul Timiș, Moșnița Veche
3 camere
72 mp
239 mp teren
Casă cu Canalizare în Moșnița Veche
146.980 €
Județul Timiș, Moșnița Veche
98 mp
340 mp teren
Casă cu 3 camere în Moșnița Veche
142.000 €
Județul Timiș, Moșnița Veche
3 camere
78 mp
Casă cu 4 camere cu Canalizare în Moșnița Veche
149.000 €
Județul Timiș, Moșnița Veche
4 camere
85 mp
372 mp teren
Casă cu 5 camere în Moșnița Veche
138.000 €
Județul Timiș, Moșnița Veche
5 camere
83 mp
Casă cu 3 camere cu Teren 110 Mp în Moșnița Veche
149.000 €
Județul Timiș, Moșnița Veche
3 camere
90 mp
Casă cu Teren 350 Mp în Moșnița Veche
149.000 €
Județul Timiș, Moșnița Veche
110 mp
350 mp teren
Casă cu 3 camere cu Teren 190 Mp în Moșnița Veche
154.500 €
Județul Timiș, Moșnița Veche
3 camere
83 mp
190 mp teren
Casă cu 3 camere cu Teren 310 Mp în Moșnița Veche
153.990 €
Județul Timiș, Moșnița Veche
3 camere
80 mp
310 mp teren

Abonează-te la newsletter să fii primul care primește cele mai noi recomandări de proprietăți și sfaturi de la experți.