OX715 Valery 3 - aproape de principala

130.000 €

Moşniţa Nouă, Judeţul Timiş

Nr. camere:
7
Suprafață utilă:
72 mp
Suprafață teren:
300 mp

Descriere casă

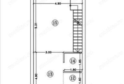
OXIA The Real Estate Agency prezinta spre vanzare 1/2 duplex situat in Mosnita Noua, zona Valery 3, intr-o zona rezidentiala in continua dezvoltare, cu acces facil catre Timisoara. Proprietatea dispune de un teren de aproximativ 300 mp, suprafata construita de 100 mp, suprafata utila de 72 mp si terasa acoperita de 15 mp, fiind compartimentata eficient astfel: -> hol de acces -> living cu bucatarie open-space (cu posibilitate de inchidere) -> 2 dormitoare -> 1 baie -> terasa acoperita -> pod utilizabil pentru depozitare (peste parter este turnata placa de beton) Locuinta se va preda finisata la cheie, iar finisajele pot fi alese de catre cumparator in limita unui buget prestabilit, oferind astfel posibilitatea personalizarii interiorului. Specificatii tehnice: incalzire in pardoseala (sistem TECE) centrala termica Ariston pe gaz ferestre PVC Rehau, 7 camere, cu sticla tripan zidarie din caramida Porotherm de 25 cm izolatie exterioara cu polistiren de 10 cm acoperis cu tigla placa de beton peste parter (pod utilizabil pentru depozitare) Proprietatea se preda cu gard realizat din placi de beton si sipci metalice, precum si alee amenajata. Utilitati disponibile: curent electric, gaz, apa si canalizare. Fotografiile prezentate sunt realizate la proiecte similare, avand rolul de a ilustra calitatea finisajelor. Termen estimat de finalizare: Iulie August 2026. PRET: 130.000 EURO + comision agentie Exista si varianta de compartimentare cu doua bai si camera tehnica, la pretul de 140.000 EURO + comision agentie. Echipa OXIA ofera consultanta juridica si financiara gratuita pe tot parcursul procesului de achizitie. COD ANUNT: OX715 Pentru mai multe detalii sau pentru programarea unei vizionari: ID anun? : 1773273687
Citește mai mult Citește mai puțin
2 Parcări

Detalii casă

ID anunț: 3807274 Actualizat în: 12 Martie 2026
Nr. camere: 7
Suprafață utilă: 72 mp
Suprafață utilă totală: 72 mp
Suprafață construită: 100 mp
Nr. băi: 1
Suprafață teren: 300 mp
An construcție:
Nr. locuri parcare: 2

Istoric preț

Facilități

Utilități
Apă Gaze

Proprietăți similare

Casă cu 3 camere cu Teren 315 Mp în Moșnița Nouă
132.000 €
Județul Timiș, Moșnița Nouă
3 camere
86 mp
315 mp teren
Casă cu 4 camere cu Teren 300 Mp în Moșnița Nouă
135.000 €
Județul Timiș, Moșnița Nouă
4 camere
100 mp
300 mp teren
Casă cu 3 camere cu Teren 300 Mp în Moșnița Nouă
117.990 €
Județul Timiș, Moșnița Nouă
3 camere
68 mp
300 mp teren
Casă cu 4 camere cu Teren 350 Mp în Moșnița Nouă
125.000 €
Județul Timiș, Moșnița Nouă
4 camere
95 mp
350 mp teren
Casă cu 4 camere în Moșnița Nouă
125.000 €
Județul Timiș, Moșnița Nouă
4 camere
95 mp
Casă cu 4 camere cu Teren 250 Mp în Moșnița Nouă
135.000 €
Județul Timiș, Moșnița Nouă
4 camere
70 mp
250 mp teren
Casă cu 3 camere cu Teren 280 Mp în Moșnița Nouă
134.500 €
Județul Timiș, Moșnița Nouă
3 camere
80 mp
280 mp teren
Casă cu 3 camere în Moșnița Nouă
125.000 €
Județul Timiș, Moșnița Nouă
3 camere
89 mp
Casă cu 4 camere cu Teren 250 Mp în Moșnița Nouă
135.000 €
Județul Timiș, Moșnița Nouă
4 camere
80 mp
250 mp teren

Abonează-te la newsletter să fii primul care primește cele mai noi recomandări de proprietăți și sfaturi de la experți.