Direct de la proprietar

249.700 €

Moşniţa Nouă, Judeţul Timiş

Nr. camere:
5
Suprafață utilă:
130 mp
Suprafață teren:
280 mp
An construcție:
2026
Nr. niveluri:
1

Descriere casă

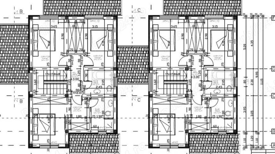
Direct de la proprietar ofer spre vanzare case moderne separate prin camera tehnica situate in Mosnita Noua, strada Ciacova, aproape de Drumul boilor, cu toate utilitatile: gaz, curent, apa si canal, fibra optica, iluminat stradal. Strada este pietruita ( 200 m pana la asfalt) in curand va fi asfaltata. Proprietatea 1 are suprafata utila de 130 mp si suprafata teren 280 mp, respectiv proprietatea 2 are suprafata utila 130 mp si suprafata teren 400mp si sunt compartimentate astfel: PARTER: - hol acces, birou, baie, living, dining, bucatarie inchisa. ETAJ: - hol, 1 dormitor matrimonial cu dressing si baie proprie, 2 dormitoare, 1 baie. Terasa acoperita 17 mp 2 locuri parcare Casa se preda la cheie, cu finisaje superioare, centrala proprie, incalzire in pardoseala, termostate ambientale in fiecare camera, 4 aparate de clima, sistem de supraveghere video, iar curtea va fi predata cu sistem automat de irigare, amenajata cu gazon, pomi si plante ornamentale. Termen finalizare septembrie 2026 Pret 249.700 ( TVA inclus), respectiv 258.700 ( tva inclus).
Citește mai mult Citește mai puțin
Nemobilat Aer condiționat Centrală proprie

Detalii casă

Actualizat în: 12 Mai 2026 ID anunț: 1210642
Nr. camere: 5
Suprafață utilă: 130 mp
Suprafață utilă totală: 130 mp
Nr. băi: 3
Suprafață teren: 280 mp
An construcție: 2026
Regim înălțime: P+1E

Istoric preț

Facilități

Utilități
Gaze Apă Internet Canalizare Supraveghere video
Sistem încălzire
Centrală proprie
Climatizare
Aer condiționat
Mobilat
Nemobilat
Servicii imobil
Supraveghere video

Puncte de interes

Recreere
restaurants
Valery 3 (en)
Restaurante aprox. 1370 m

Proprietăți similare

Casă cu 4 camere în Moșnița Nouă
228.000 €
Județul Timiș, Moșnița Nouă
4 camere
153 mp
Casă cu 5 camere cu Teren 350 Mp în Moșnița Nouă
238.700 €
Județul Timiș, Moșnița Nouă
5 camere
130 mp
350 mp teren
Casă cu Teren 610 Mp în Moșnița Nouă
259.990 €
Județul Timiș, Moșnița Nouă
210 mp
610 mp teren
Casă cu 5 camere cu Teren 305 Mp în Moșnița Nouă
225.000 €
Județul Timiș, Moșnița Nouă
5 camere
125 mp
305 mp teren
Casă cu 5 camere cu Teren 333 Mp în Moșnița Nouă
230.000 €
Județul Timiș, Moșnița Nouă
5 camere
127 mp
333 mp teren
Casă cu Teren 740 Mp în Moșnița Nouă
239.900 €
Județul Timiș, Moșnița Nouă
120 mp
740 mp teren
Casă cu 5 camere cu Teren 338 Mp în Moșnița Nouă
249.999 €
Județul Timiș, Moșnița Nouă
5 camere
103 mp
338 mp teren
Casă cu 4 camere cu Teren 319 Mp în Moșnița Nouă
234.990 €
Județul Timiș, Moșnița Nouă
4 camere
112,5 mp
319 mp teren
Casă cu 7 camere cu Canalizare în Moșnița Nouă
247.000 €
Județul Timiș, Moșnița Nouă
7 camere
177 mp
333 mp teren

Abonează-te la newsletter să fii primul care primește cele mai noi recomandări de proprietăți și sfaturi de la experți.