???? Casa cocheta cu terasa | 5 ari teren

117.000 €

Mocira, Judeţul Maramureş

Nr. camere:
3
Suprafață utilă:
89 mp
Suprafață teren:
500 mp

Descriere casă

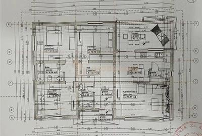
Blitz va propune spre vanzare o proprietate construita in 2017, amplasata pe un teren de 5 ari (500 mp), ideala pentru cei care isi doresc liniste si intimitate. Casa are o suprafata de 89 mp utili si 104 mp construiti, fiind eficient compartimentata si bine intretinuta. Beneficiaza de izolatie exterioara, acoperis din tabla si sistem de incalzire cu semineu si calorifere, oferind confort pe tot parcursul anului. Casa , fiind compartimentata eficient: doua dormitoare foarte generoase, living spatios tip open-space cu bucataria, un spatiu luminos, aerisit si primitor, completat de o baie mare Un punct forte al proprietatii este terasa generoasa de 26 mp, perfecta pentru relaxare, precum si anexa / camera tehnica, utila pentru depozitare sau spatiu auxiliar. Casa are un aer cochet si primitor si ofera posibilitatea de amenajare si personalizare dupa propriul gust, fiind ideala atat ca locuinta permanenta, cat si ca resedinta de weekend. Cod oferta / ID BLITZ: P163082 Id intern: P163082 Numar Bai: 1 Nr. locuri parcare: 3 Curent Apa Canalizare
Citește mai mult Citește mai puțin

Detalii casă

ID anunț: 3366406 Actualizat în: 09 Martie 2026
Nr. camere: 3
Suprafață utilă: 89 mp
Suprafață utilă totală: 89 mp
Suprafață construită: 500 mp
Suprafață teren: 500 mp
An construcție: 2017

Istoric preț

Proprietăți similare

Casă în Mocira
117.000 €
Județul Maramureș, Mocira
89 mp
Casă cu Teren 500 Mp în Mocira
114.000 €
Județul Maramureș, Mocira
100 mp
500 mp teren
Casă cu 4 camere cu Canalizare în Mocira
125.000 €
Județul Maramureș, Mocira
4 camere
85 mp
650 mp teren
Casă cu 3 camere cu Teren 500 Mp în Mocira
117.000 €
Județul Maramureș, Mocira
3 camere
89 mp
500 mp teren
Casă cu Teren 800 Mp în Mocira
120.000 €
Județul Maramureș, Mocira
155 mp
800 mp teren
Casă cu 4 camere cu Teren 2300 Mp în Valea Borcutului
127.000 €
Baia Mare, Valea Borcutului
4 camere
117 mp
2.300 mp teren
Casă cu 5 camere cu Teren 6328 Mp în Giulești
120.000 €
Județul Maramureș, Giulești
5 camere
78 mp
6.328 mp teren
Casă cu 6 camere cu Teren 300 Mp în Tăuții-Măgherăuș
115.000 €
Județul Maramureș, Tăuții-Măgherăuș
6 camere
250 mp
300 mp teren
Casă cu 4 camere cu Teren 631 Mp în Ferneziu
125.000 €
Baia Mare, Ferneziu
4 camere
206 mp
631 mp teren

Abonează-te la newsletter să fii primul care primește cele mai noi recomandări de proprietăți și sfaturi de la experți.