CASA PARTER+MANSARDA, 3 cam, 85mp, teren 450mp, Ciurbesti Miroslava

143.000 €

Miroslava, Judeţul Iaşi

Nr. camere:
3
Suprafață utilă:
85 mp
Suprafață teren:
450 mp

Descriere casă

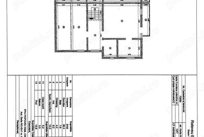
DE VANZARE: Casa individuala plan parter + mansarda (PLACA DE BETON), cu 3 camere, baie, cu suprafata de 85mp, teren de 450mp, situata in zona Ciurbesti-Miroslava, la 600m de statia de autobuz, cu acces integral asfaltat.Compartimentare:-terasa acces, hol intrare, living, bucatarie separata cu iesire in terasa acoperita, magazie/camera tehnica, doua dormitoare, baie mare, spatiu de depozitare in pod ce poate fi transformat in zona locuibila.DETALII: Constructie integral din caramida, placa de beton, scari interioare din beton, izolatie exterioara cu polistiren 10cm, centrala proprie pe gaz, incalzire in pardoseala, finisaje interioare personalizabile in functie de momentul contractarii (gresie, faianta, parchet, usi interioare si obiecte sanitare in baie). Mansarda se poate amenaja optional si se pot obtine 2 dormitoare si o baie.Utilitati: apa, gaz, curent, este in faza de constructie, cu termen de finalizare estimat in perioada aprilie-mai 2026.PRET: 143.000euro TVA inclus!Informatii suplimentare si programare vizionari la telefon.
Citește mai mult Citește mai puțin

Detalii casă

Actualizat în: 28 Aprilie 2026 ID anunț: 1359836
Nr. camere: 3
Suprafață utilă: 85 mp
Suprafață utilă totală: 85 mp
Suprafață teren: 450 mp
An construcție: 2025

Istoric preț

Puncte de interes

Școală
education
Scoala Dimitrie Anghel Ciurbesti
Învățământ aprox. 280 m
Recreere
parks
Parc
Recreere aprox. 256 m

Proprietăți similare

Casă cu 4 camere cu Teren 432 Mp în Miroslava
155.000 €
Județul Iași, Miroslava
4 camere
89 mp
432 mp teren
Casă cu 4 camere cu Teren 400 Mp în Miroslava
145.000 €
Județul Iași, Miroslava
4 camere
96 mp
400 mp teren
Casă cu 3 camere cu Teren 300 Mp în Miroslava
145.000 €
Județul Iași, Miroslava
3 camere
62 mp
300 mp teren
Casă cu 4 camere cu Teren 250 Mp în Miroslava
145.000 €
Județul Iași, Miroslava
4 camere
100 mp
250 mp teren
Casă cu 3 camere cu Teren 245 Mp în Miroslava
149.000 €
Județul Iași, Miroslava
3 camere
79 mp
245 mp teren
Casă cu 3 camere cu Teren 200 Mp în Miroslava
130.000 €
Județul Iași, Miroslava
3 camere
80 mp
200 mp teren
Casă cu 5 camere cu Teren 392 Mp în Miroslava
150.000 €
Județul Iași, Miroslava
5 camere
137,4 mp
392 mp teren
Casă cu 4 camere în Miroslava
155.000 €
Județul Iași, Miroslava
4 camere
108 mp
Casă cu 4 camere cu Teren 400 Mp în Miroslava
145.000 €
Județul Iași, Miroslava
4 camere
90 mp
400 mp teren

Abonează-te la newsletter să fii primul care primește cele mai noi recomandări de proprietăți și sfaturi de la experți.