Casa noua cu 4 camere- Medias

207.000 €

Mediaş, Judeţul Sibiu

Nr. camere:
4
Suprafață utilă:
100 mp
Suprafață teren:
501 mp

Descriere casă

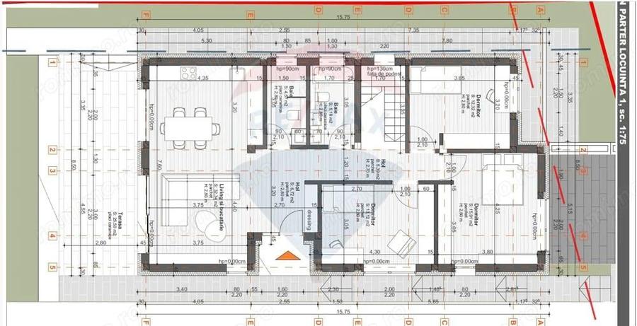
Detalii principale: Suprafata teren: 501 mp (spatiu generos pentru relaxare si gradinarit). Configuratie: demisol + parter. Tehnologie: incalzire in pardoseala (confort termic optim si eficienta energetica). Constructie: caramida de calitate superioara, izolata exterior pentru un consum minim de energie. Compartimentare Inteligenta: 1. Parter (100 mp utili) zona de zi si de odihna: Living cu bucatarie open-space: un spatiu luminos si aerisit, inima casei tale. 3 Dormitoare: spatioase, oferind intimitate fiecarui membru al familiei. 2 Bai utile Terasa (26 mp): un punct forte al proprietatii, cu acces direct din living si bucatarie, locul ideal pentru cafeaua de dimineata sau cina in familie. 2. Demisol (59 mp) utilitate si siguranta: Garaj: acces facil si siguranta pentru autoturismul dumneavoastra. Spatiu tehnic & depozitare: suficient loc pentru organizarea eficienta a casei. De ce sa alegi aceasta proprietate? Aceasta casa nu este doar o constructie, ci un stil de viata. Beneficiind de incalzire in pardoseala si o izolatie exterioara performanta, costurile de intretinere sunt reduse, iar confortul este garantat indiferent de sezon. Proiectul modern din 2025 asigura o structura solida si un design contemporan. Contacteaza-ma pentru a programa o vizionare si pentru a descoperi viitorul tau camin! Numar niveluri imobil: 1 Numar Bai: 2 Posibilitate parcare: Nu Curent Apa Canalizare Gaz Incalzire Demisol Publicat prin , vezi anuntul complet aici.
Citește mai mult Citește mai puțin

Detalii casă

ID anunț: 3363112 Actualizat în: 04 Februarie 2026
Nr. camere: 4
Suprafață utilă: 100 mp
Suprafață utilă totală: 100 mp
Suprafață teren: 501 mp
An construcție: 2025

Istoric preț

Puncte de interes

Recreere
parks
Handball
Recreere aprox. 1779 m
parks
Football
Recreere aprox. 1919 m
parks
Tennis
Recreere aprox. 1989 m

Proprietăți similare

Casă cu 7 camere cu Teren 435 Mp în Mediaș
195.000 €
Județul Sibiu, Mediaș
7 camere
220 mp
435 mp teren
Casă cu 5 camere cu Teren 250 Mp în Central
225.000 €
Sibiu, Central
5 camere
156 mp
250 mp teren
Casă cu 5 camere cu Teren 120 Mp în Terezian
199.000 €
Sibiu, Terezian
5 camere
124 mp
120 mp teren
Casă cu 4 camere cu Canalizare în Șelimbăr
190.000 €
Județul Sibiu, Șelimbăr
4 camere
93 mp
33 mp teren
Casă cu 5 camere cu Teren 250 Mp în Central
205.000 €
Sibiu, Central
5 camere
185 mp
250 mp teren
Casă cu 5 camere în Cristian
190.000 €
Județul Sibiu, Cristian
5 camere
900 mp
Casă cu 4 camere cu Teren 380 Mp în Central
207.000 €
Sibiu, Central
4 camere
96 mp
380 mp teren
Casă cu 6 camere cu Teren 404 Mp în Central
199.990 €
Județul Sibiu, Cisnădie
6 camere
154 mp
404 mp teren
Casă cu 6 camere cu Teren 669 Mp în Cornățel
200.000 €
Județul Sibiu, Cornățel
6 camere
200 mp
669 mp teren

Abonează-te la newsletter să fii primul care primește cele mai noi recomandări de proprietăți și sfaturi de la experți.