Locuinta tip insiruita, la 7 minute de Pacurari

155.000 €

Păcurari, Iaşi

Nr. camere:
4
Suprafață utilă:
107 mp
Suprafață teren:
200 mp
Nr. niveluri:
1

Descriere casă

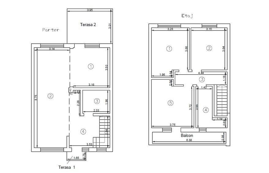
Agentia Imobiliara CASA ALBA va propune spre vanzare o locuinta insiruita cu regim de inaltime P+E, compusa din 4 camere, bucatarie, 2 terase, 2 bai, hol, situata in zona Rediu, o zona in plina dezvoltare cu acces facil spre Centru, Pacurari, Copou, mijloace de transport in comun - maxi taxi din ora in ora, spatii comerciale (Kaufland, Metro, Carrefour, Dedeman, Praktiker, Mobexpert, Decathlon), scoala din Valea Lupului, gradinite private, restaurante si alte facilitati. Locuinta este construita pe o suprafata de teren de 230mp, are o suprafata utila de 107mp si beneficiaza de finisaje premium, placari ceramice, tamplarie PVC tripan, centrala termica proprie cu incalzire prin pardoseala. Puteti achizitiona aceasta locuinta la pretul de 155.000 euro. Sunati acum pentru mai multe detalii si pentru a programa o vizionare! Pentru informatii suplimentare, va rugam contactati consultantul imobiliar Mihai Rusu, la numarul de telefon sau accesati , COD OFERTA 1439051
Citește mai mult Citește mai puțin

Detalii casă

ID anunț: 36801 Actualizat în: 25 Februarie 2026
Nr. camere: 4
Suprafață utilă: 107 mp
Suprafață utilă totală: 107 mp
Nr. băi: 2
Suprafață teren: 200 mp
Front stradal: 15 m
An construcție: 2023
Regim înălțime: P+1E

Istoric preț

Facilități

Utilități
Curent Apă Canalizare Gaze Cablu
Internet
Cablu
Amenajare străzi
Iluminat stradal Mijloace de transport în comun Asfaltate

Puncte de interes

Mijloace transport
transport
Statia "I.V.V Copou", linia 6b
Mijloace transport aprox. 1743 m
transport
Breazu
Mijloace transport aprox. 1823 m
Școală
education
Scoala
Învățământ aprox. 1943 m
Recreere
restaurants
Casablanca (for events only)
Restaurante aprox. 405 m
parks
Teren sportiv
Recreere aprox. 1080 m
restaurants
EOS CLUB (en)
Restaurante aprox. 1817 m
parks
Teren sportiv
Recreere aprox. 1984 m

Proprietăți similare

Casă cu 3 camere cu Teren 2090 Mp în Vișani
165.000 €
Iași, Vișani
3 camere
124 mp
2.090 mp teren
Casă cu 5 camere cu Teren 400 Mp în Valea Adâncă
168.000 €
Iași, Valea Adâncă
5 camere
115 mp
400 mp teren
Casă cu 5 camere cu Teren 411 Mp în Bucium
145.000 €
Iași, Bucium
5 camere
134 mp
411 mp teren
Casă cu Teren 500 Mp în Copou
165.000 €
Iași, Copou
250 mp
500 mp teren
Casă cu 3 camere în Central
157.000 €
Iași, Central
3 camere
96 mp
Casă cu 3 camere cu Teren 350 Mp în Lunca Cetățuii
145.000 €
Iași, Lunca Cetățuii
3 camere
76 mp
350 mp teren
Casă cu 2 camere cu Teren 450 Mp în Dorobanți
170.000 €
Iași, Dorobanți
2 camere
85 mp
450 mp teren
Casă cu 4 camere cu Teren 420 Mp în Valea Adâncă
165.000 €
Iași, Valea Adâncă
4 camere
100 mp
420 mp teren
Casă cu 4 camere cu Canalizare în Popas Păcurari
162.000 €
Iași, Popas Păcurari
4 camere
100 mp
230 mp teren

Abonează-te la newsletter să fii primul care primește cele mai noi recomandări de proprietăți și sfaturi de la experți.