Dezvoltator comision 0 duplex Giroc strada vanatorilor 21

195.000 €

Giroc, Judeţul Timiş

Nr. camere:
4
Suprafață utilă:
115 mp

Descriere casă

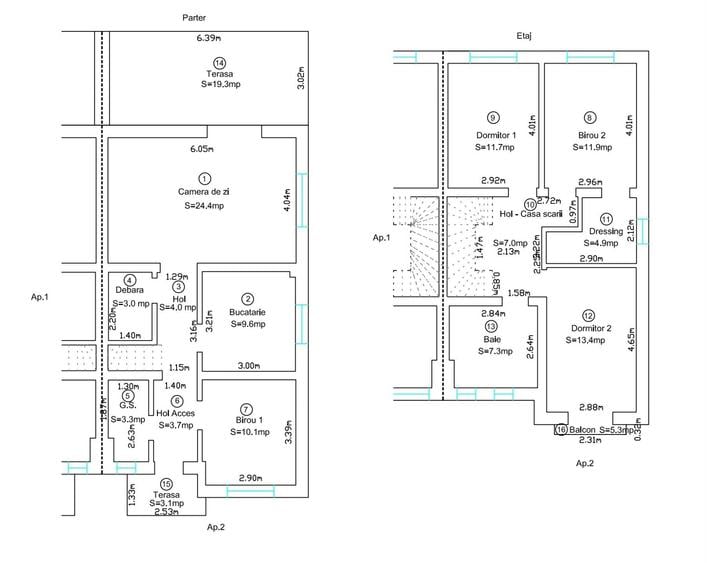
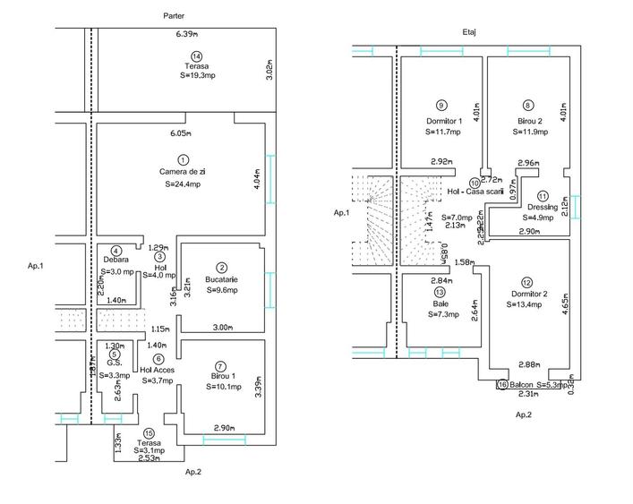
Zona excelenta, Giroc! Direct de la dezvoltator! Va prezentam un duplex superb situat la intrarea in Giroc, Strada Vanatorilor 21 langa benzina ESO Suprafata teren: 269 mp Suprafata utila: 115 mp Spatiu verde: 157 mp Regim de inaltime: Parter + Etaj +pod Parter: birou/dormitor Living spatios cu iesire catre terasa Bucatarie inchisa Baie Terasa acoperita Etaj: 3 dormitoare 1-2 baie Dressing Pod : pe placa de beton pt depozitare cu scara extensibila utilitati gaz apa curent internet tv ... Incalzire in pardoseala Ferestre Rehau Izolatie termica exterior polistiren 10cm Culoare alb cu gri antracit Tigla gri antracit Proprietatea beneficiaza de o curte generoasa, locuri de parcare cu pavaj in interior poarta pe sina plus poarta acces pietonal In apropiere gasiti magazine, clinici, farmacii si alte facilitati importante pentru confortul zilnic. Vezi video https:// /ZNRmAfVJN/ Pt detali vizionari sunati oricand Pret: 195.000 semi finalizat Pret la cheie 215.000 euro
Citește mai mult Citește mai puțin

Detalii casă

ID anunț: 3725513 Actualizat în: 26 Martie 2026
Nr. camere: 4
Suprafață utilă: 115 mp
Suprafață utilă totală: 115 mp

Istoric preț

Puncte de interes

Mijloace transport
transport
Giroceana
Mijloace transport aprox. 870 m
transport
Halta Giroc hc
Mijloace transport aprox. 1423 m
transport
Giroc
Mijloace transport aprox. 1431 m
transport
Giroceana
Mijloace transport aprox. 1525 m
Școală
education
Scoala Generala si Gradinita Giroc (en)
Învățământ aprox. 370 m
education
Scoala Gimnaziala Giroc
Învățământ aprox. 381 m
Recreere
shopping
Jelly Market
Supermarket/Mall aprox. 484 m
shopping
Profi City
Supermarket/Mall aprox. 504 m
parks
Teren Giroc
Recreere aprox. 701 m
restaurants
Complex Flonta
Restaurante aprox. 871 m

Proprietăți similare

Casă cu 4 camere cu Teren 290 Mp în Giroc
209.500 €
Județul Timiș, Giroc
4 camere
126 mp
290 mp teren
Casă cu 4 camere cu Teren 190 Mp în Giroc
210.000 €
Județul Timiș, Giroc
4 camere
101 mp
190 mp teren
Casă cu 4 camere cu Teren 328 Mp în Giroc
179.900 €
Județul Timiș, Giroc
4 camere
117 mp
328 mp teren
Casă cu 4 camere cu Canalizare în Giroc
207.000 €
Județul Timiș, Giroc
4 camere
110 mp
205 mp teren
Casă cu 4 camere cu Teren 330 Mp în Giroc
185.000 €
Județul Timiș, Giroc
4 camere
100 mp
330 mp teren
Casă cu 5 camere cu Teren 321 Mp în Giroc
199.500 €
Județul Timiș, Giroc
5 camere
105 mp
321 mp teren
Casă cu 4 camere cu Teren 330 Mp în Giroc
185.000 €
Județul Timiș, Giroc
4 camere
100 mp
330 mp teren
Casă cu 4 camere cu Canalizare în Giroc
189.000 €
Județul Timiș, Giroc
4 camere
110 mp
189 mp teren
Casă în Giroc
205.000 €
Județul Timiș, Giroc
120 mp

Abonează-te la newsletter să fii primul care primește cele mai noi recomandări de proprietăți și sfaturi de la experți.