Casa NZEB la intrare in Gilau

233.000 €

Gilău, Judeţul Cluj

Nr. camere:
4
Suprafață utilă:
120 mp

Descriere casă

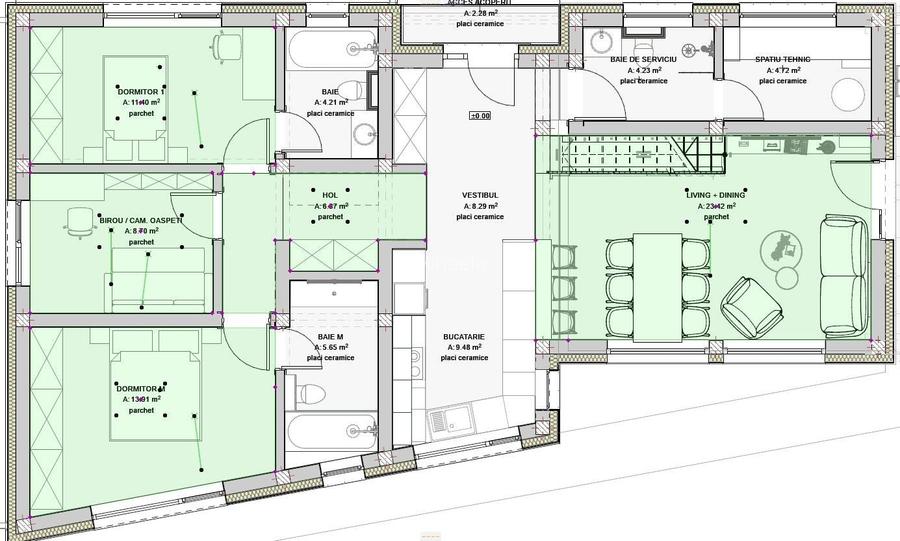
Persoana fizica vand casa eficienta energetic la intrare in Gilau. Caldura unui camin modern locul perfect pentru familia ta . Gilau, jud. Cluj Daca visezi la o casa in care sa cresti copiii intr-un mediu curat, sigur si plin de liniste casa asta e pentru voi. Un loc unde diminetile sunt pline de lumina, iar serile se petrec pe terasa, in miros de iarba si aer curat. O casa care produce propria energie Sistem fotovoltaic de 11 kW cu invertor Huawei 10 kW hibrid iti genereaza energia necesara pentru intreaga familie Pompa de caldura adio facturi uriase la gaz! Ventilatie cu recuperare de caldura aer proaspat in toata casa, mereu Izolatie exterioara de 15 cm + lana de lemn 25 cm in pod confort termic excelent tot anul Certificat NZEB casa cu consum aproape zero de energie Spatiu gandit pentru familie Living mare si luminos, perfect pentru serile petrecute impreuna Bucatarie separata, pentru gatit in liniste Doua dormitoare confortabile fiecare cu baie + birou (ideal pentru work from home sau camera de oaspeti) Trei bai moderne Spatiu tehnic Terasa acoperita de 18,5 mp locul perfect pentru cafeaua de dimineata Suprafata utila: 121,7 mp Teren: 830 mp destul pentru o gradina, un loc de joaca, poate chiar o piscina. De ce e casa ideala pentru familia ta: Copiii vor respira aer curat si vor avea spatiu sa se joace in siguranta Tu te vei bucura de costuri minime si confort maxim Casa e construita responsabil, cu materiale naturale si solutii sustenabile Locatie: Sat Gilau, la doar 15-20 minute de Cluj-Napoca Construita in 2024, tencuita interior-exterior Certificat energetic: NZEB clasa A+ Daca iti doresti o casa care iti ofera liniste, economie si grija pentru viitorul copiilor tai, suna acum si programeaza o vizionare s-ar putea sa fie exact acasa-ul pe care il cautai.
Citește mai mult Citește mai puțin
Zonă de deal / munte Zonă rurală

Detalii casă

ID anunț: 19652 Actualizat în: 28 Martie 2026
Nr. camere: 4
Suprafață utilă: 120 mp
Suprafață utilă totală: 120 mp

Istoric preț

Puncte de interes

Școală
education
Scoala Gilau
Învățământ aprox. 238 m
Recreere
shopping
Profi
Supermarket/Mall aprox. 361 m

Proprietăți similare

Casă cu 3 camere cu Teren 489 Mp în Gilău
235.000 €
Județul Cluj, Gilău
3 camere
134 mp
489 mp teren
Casă cu 4 camere în Gilău
240.000 €
Județul Cluj, Gilău
4 camere
Casă cu 4 camere în Gilău
249.000 €
Județul Cluj, Gilău
4 camere
200 mp
Casă cu 4 camere cu Teren 487 Mp în Gilău
245.000 €
Județul Cluj, Gilău
4 camere
134 mp
487 mp teren
Casă cu 4 camere cu Teren 586 Mp în Baciu
245.000 €
Județul Cluj, Baciu
4 camere
135 mp
586 mp teren
Casă cu 4 camere în Nicula
225.000 €
Județul Cluj, Nicula
4 camere
220 mp
Casă cu 4 camere decomandat în Baciu
210.000 €
Județul Cluj, Baciu
4 camere
120 mp
Casă cu 3 camere cu Teren 220 Mp în Apahida
220.000 €
Județul Cluj, Apahida
3 camere
110 mp
Casă cu Teren 3000 Mp în Central
225.000 €
Județul Cluj, Gherla
220 mp
3.000 mp teren

Abonează-te la newsletter să fii primul care primește cele mai noi recomandări de proprietăți și sfaturi de la experți.