Vand 2 case la rosu CU POSIB PLATA RATE, INTABULATE 442 mp cu teren proprietate 624 mp in Ghiroda

240.000 €

Ghiroda, Judeţul Timiş

Nr. camere:
6
Suprafață utilă:
360 mp
Suprafață teren:
628 mp

Descriere casă

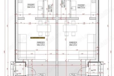
PF vand teren proprietate cu 2 imobile in Ghiroda str. Linistei nr.11. POSIBILITATE ACHIZITIONARE IN RATE DIRECT LA PROPRIETAR. MAI MULTE DETALII LA TELEFONUL PROPRIETARULUI . Terenul are suprafata de 624mp. Constructia 1 P+E in suprafata locuibila de 230 mp este compusa din parter: spatiu tehnic, baie, bucatarie, dining, living si casa scarii; etaj: hol, 3 dormitoare si baie. Fiecare dormitor are intrare separata si balcon. Casa are 2 intrari, una principala si alta secundara. Constructia este realizata din caramida phoroterm iar acoperisul este din tigla cimentata elpreco. Constructia 2 din 2008 D+P+E are suprafata locuibila de 210 mp. Demisolul este construit in sistem cuva din beton armat si este impermeabil. Compartimentarea este realizata din caramida phoroterm. P+E are fiecare 2 camere, baie, bucatarie si hol. La Etaj este si un balconas. Toate trei nivelele au intrare separata. Constructia este realizata din caramida phoroterm iar acoperisul este din tigla cimentata Bramac. Imobilele beneficiaza de bransament de curent trifazat, foraj de apa, iar restul utilitatilor sunt la poarta ( canal, apa, gaz). Suprafata de teren este delimitata de gard de beton intre vecini. Zona este locuita si strada este asfaltata, si e foarte aproape de firobuz, autobuz, primarie, scoala, gradinita. E zona centrala. Posibilitate dublu front stradal. Frontul stradal are 28 ml. Tinandu-se cont de faza de constructie ( in rosu), se poate vedea toata structura. S-au folosit materiale de calitate. ID anun? : 19345141
Citește mai mult Citește mai puțin

Detalii casă

ID anunț: 201308 Actualizat în: 18 Februarie 2026
Nr. camere: 6
Suprafață utilă: 360 mp
Suprafață utilă totală: 360 mp
Suprafață construită: 380 mp
Suprafață teren: 628 mp
An construcție: 2005

Istoric preț

Proprietăți similare

Casă cu 4 camere cu Teren 330 Mp în Ghiroda
219.900 €
Județul Timiș, Ghiroda
4 camere
117 mp
330 mp teren
Casă cu 5 camere cu Teren 320 Mp în Ghiroda
228.000 €
Județul Timiș, Ghiroda
5 camere
115 mp
320 mp teren
Casă cu 4 camere cu Teren 260 Mp în Ghiroda
223.500 €
Județul Timiș, Ghiroda
4 camere
117 mp
260 mp teren
Casă cu 5 camere cu Teren 470 Mp în Ghiroda
245.000 €
Județul Timiș, Ghiroda
5 camere
115 mp
470 mp teren
Casă cu 3 camere cu Teren 604 Mp în Ghiroda
248.000 €
Județul Timiș, Ghiroda
3 camere
100 mp
604 mp teren
Casă cu 4 camere cu Teren 270 Mp în Ghiroda
240.000 €
Județul Timiș, Ghiroda
4 camere
100 mp
270 mp teren
Casă cu 5 camere în Ghiroda
220.000 €
Județul Timiș, Ghiroda
5 camere
118 mp
Casă cu 5 camere cu Teren 886 Mp în Ghiroda
228.500 €
Județul Timiș, Ghiroda
5 camere
186 mp
886 mp teren
Casă cu 4 camere cu Teren 255 Mp în Ghiroda
249.000 €
Județul Timiș, Ghiroda
4 camere
120 mp
255 mp teren

Abonează-te la newsletter să fii primul care primește cele mai noi recomandări de proprietăți și sfaturi de la experți.