1

Casa P+1E, 7 camere, 1200 mp teren, Ghighiu, langa Ploiesti

€ 105.000

Ghighiu, Judeţul Prahova

Nr. camere:
7
Suprafață utilă:
238 mp
Suprafață teren:
1.200 mp

Descriere

Raportează anunț

Casa P+1E, 7 camere, 1200 mp teren, Ghighiu, langa Ploiesti

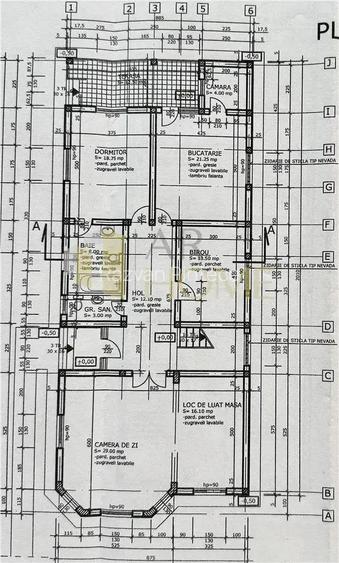
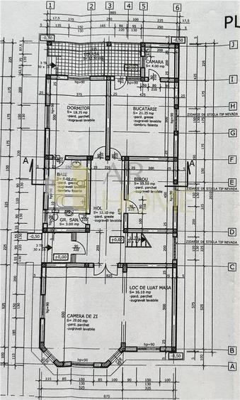
Vanzare casa P+1E, 7 camere, la rosu, in Ghighiu Prahova, la cateva minute fata de orasul Ploiesti. Esti in cautare de o casa intr-o zona usor accesibila atat pentru Ploiesti cat si pentru Bucuresti, dar sa fie si intr-o zona linistita? Aceasta poate fi casa pe care o cauti! Imobilul este receptionat in anul 2011 si a fost construit pe cadre de beton armat, peretii interiori si exteriori din caramida portanta, planseu de beton peste parter, acoperis tabla ondulata. Suprafata utila este de 238,90 mp, desfasurata 340,60 mp. Este compartimentata conform planurilor atasate. Terenul este in suprafata de 1200 mp, deschidere 12 ml, imprejmuit. Utilitati: fosa septica, gaze la strada, canalizare la strada, curent in curte. Se vinde la pretul de 105000 EURO. Toate documentele disponibile. ID anun?
Citește mai mult Citește mai puțin
ID anunț: 256235 Actualizat în: 17 Decembrie 2025
Nr. camere: 7
Suprafață utilă: 238 mp
Suprafață utilă totală: 238 mp
Suprafață construită: 340 mp
Suprafață teren: 1.200 mp
An construcție: 2011

Istoric preț

Proprietăți similare

Casă cu 3 camere în Ghighiu
€ 100.000
Județul Prahova, Ghighiu
3 camere
75 mp
Casă cu 5 camere cu Teren 1000 Mp în Măgurele
€ 107.000
Județul Prahova, Măgurele
5 camere
292,06 mp
1.000 mp teren
Casă cu 7 camere cu Teren 1670 Mp în Blejoi
€ 110.000
Județul Prahova, Blejoi
7 camere
382 mp
1.670 mp teren
Casă cu 3 camere cu Teren 734 Mp în Găgeni
€ 110.000
Județul Prahova, Găgeni
3 camere
85 mp
734 mp teren
Casă cu 4 camere cu Teren 89 Mp în Central
€ 95.000
Ploiești, Central
4 camere
150 mp
89 mp teren
Casă cu 3 camere cu Teren 1189 Mp în Cheia
€ 115.000
Județul Prahova, Cheia
3 camere
108 mp
1.189 mp teren
Casă cu 5 camere cu Teren 1000 Mp în Posești
€ 99.000
Județul Prahova, Posești
5 camere
110 mp
1.000 mp teren
Casă cu 3 camere cu Teren 221 Mp în Dorobanțul
€ 97.000
Ploiești, Dorobanțul
3 camere
149 mp
221 mp teren
Casă cu 7 camere cu Teren 1330 Mp în Central
€ 110.000
Ploiești, Central
7 camere
200 mp
1.330 mp teren

Abonează-te la newsletter să fii primul care primește cele mai noi recomandări de proprietăți și sfaturi de la experți.