Casa insiruita, 4 camere, 95.81 mp utili, semifinisata, Zona Eroilor

165.000 €

Floreşti, Judeţul Cluj

Nr. camere:
4
Suprafață utilă:
96 mp
Suprafață teren:
200 mp
Nr. niveluri:
1

Descriere casă

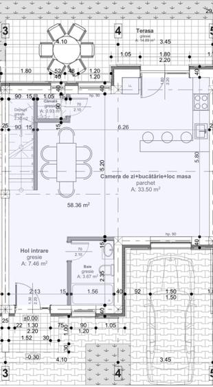
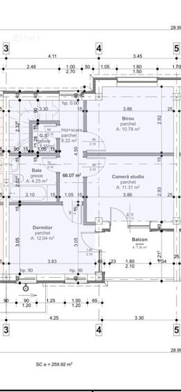
Va propunem spre vanzare aceasta casa insiruita situata intr-o zona accesibila a Florestiului, aproape de magazine, supermarketuri, farmacii, mijloace de transport in comun, etc. Casa dispune de o suprafata utila de 95.81mp utili plus o terasa de 14.91 mp plus un balcon de 7.29 mp, compartimentarea este semidecomandata si se prezinta astfel: Parter: hol, living plus bucatarie, camara, baie si terasa Etaj: hol, 3 dormitoare, baie si un balcon Casa se va preda la stadiul de semifinisat, peretii gletuiti, geamuri termopan PVC, usa la intrare si centrala proprie cu incalzire in pardoseala. Termen de finalizare Decembrie 2025 Termen de predare cu CF Februarie 2026 Pentru mai multe informatii sau stabilirea unei vizionari va rugam sa ne contactati! ID Extern: P10354
Citește mai mult Citește mai puțin
Centrală proprie

Detalii casă

ID anunț: 905325 Actualizat în: 27 Februarie 2026
Nr. camere: 4
Suprafață utilă: 96 mp
Suprafață utilă totală: 96 mp
Nr. băi: 2
Suprafață teren: 200 mp
An construcție: 2025
Regim înălțime: P+1E

Istoric preț

Facilități

Contorizare
Contor gaz
Alte spații utile
Spațiu depozitare
Utilități
Curent Apă Canalizare Gaze
Sistem încălzire
Centrală proprie
Amenajare străzi
Asfaltate Mijloace de transport în comun Iluminat stradal
Izolații termice
Exterior
Ferestre cu geam termopan
PVC

Puncte de interes

Mijloace transport
transport
Stejarului
Mijloace transport aprox. 73 m
transport
Eroilor E
Mijloace transport aprox. 145 m
transport
Teilor
Mijloace transport aprox. 146 m
transport
Eroilor V
Mijloace transport aprox. 223 m
Recreere
parks
Teren Fotbal Sintetic
Recreere aprox. 354 m
restaurants
Adveture of Henry
Restaurante aprox. 367 m
shopping
Profi
Supermarket/Mall aprox. 547 m
shopping
Profi Floresti
Supermarket/Mall aprox. 547 m

Proprietăți similare

Casă cu 4 camere cu Canalizare în Florești
170.000 €
Județul Cluj, Florești
4 camere
112 mp
200 mp teren
Casă cu 4 camere cu Teren 275 Mp în Florești
174.900 €
Județul Cluj, Florești
4 camere
133 mp
275 mp teren
Casă cu 5 camere cu Teren 380 Mp în Florești
165.000 €
Județul Cluj, Florești
5 camere
126 mp
380 mp teren
Casă cu 4 camere cu Canalizare în Florești
150.000 € + TVA
Județul Cluj, Florești
4 camere
116 mp
40 mp teren
Casă cu 4 camere cu Canalizare în Florești
161.000 €
Județul Cluj, Florești
4 camere
100 mp
120 mp teren
Casă cu 4 camere cu Canalizare în Florești
159.990 €
Județul Cluj, Florești
4 camere
100 mp
Casă cu 4 camere cu Teren 180 Mp în Florești
155.000 € + TVA
Județul Cluj, Florești
4 camere
119 mp
180 mp teren
Casă cu 4 camere cu Canalizare în Florești
169.000 €
Județul Cluj, Florești
4 camere
120 mp
160 mp teren
Casă cu 4 camere cu Canalizare în Florești
180.000 €
Județul Cluj, Florești
4 camere
120 mp
170 mp teren

Abonează-te la newsletter să fii primul care primește cele mai noi recomandări de proprietăți și sfaturi de la experți.