PF vand Casa/Duplex Floresti, strTauti, 172 mp utili,zona parc Poligon

259.000 €

Floreşti, Judeţul Cluj

Nr. camere:
4
Suprafață utilă:
171 mp

Descriere casă

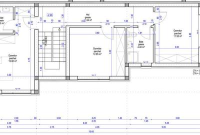
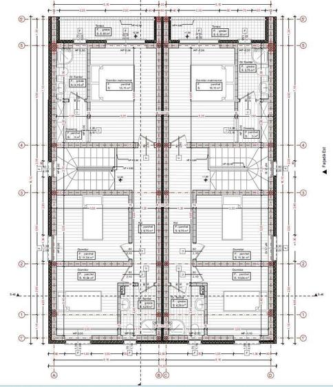
Casa cuplata - tip duplex, cu zid dublu de caramida + polistiren de 10 intre cele 2 unitati, situata intr-o zona rezidentiala, cu acces facil spre Cluj-Napoca, localizata in Floresti, pe strada Tauti, in vecinatatea Parcului Poligon. Strada este privata cu o latime de 8m care deserveste 5 proprietati. Cu o suprafata generoasa de 172 mp utili si o arhitectura moderna, ofera un plus de spatiu si confort. Regimul de inaltime este D+P+E+terase, cu o suprafata de 172 mp Utili iar compartimentarea este conceputa astfel: la demisol: - un spatiu tehnic , o camera spalatorie-uscatorie, o camera hobby care se poate utiliza in functie de preferintele viitorului proprietar; la parter: - o camera de zi + zona de servit masa, o bucatarie inchisa, o baie, doua holuri, casa scarii, plus o terasa la etaj: - trei dormitoare, doua bai, un hol, un balcon; Peste etaj are placa de beton armat+izolatie de polistiren + pod +acoperis Locuinta se preda la stadiul de semifinisat, oferind posibilitatea de a personaliza spatiul conform preferintelor tale, cu sapa autonivelanta, incalzire in pardoseala, ferestre termoizolante cu tamplarie PVC ( 3 sticle si 7 camere, 4 anotimpuri), instalatii sanitare si electrice trase la pozitie, izolatie termica cu polistiren. Vanzarea se face de pe persoana fizica, neimplicand costuri suplimentare de TVA pretul fiind de 1500 eur/mp. Pentru detalii privind finisajele, termenele de predare sau optiunile de personalizare, pentru orice alte informatii cu privire la proiect ( fotografii suplimentare, schite, randari ) sau pentru stabilirea unei vizionari, nu ezitati sa ne contactati!
Citește mai mult Citește mai puțin

Detalii casă

ID anunț: 84885 Actualizat în: 27 Martie 2026
Nr. camere: 4
Suprafață utilă: 171 mp
Suprafață utilă totală: 171 mp

Istoric preț

Puncte de interes

Mijloace transport
transport
Iuliu Hossu
Mijloace transport aprox. 297 m
transport
M-Complex Floresti
Mijloace transport aprox. 432 m
transport
Primaria Floresti N
Mijloace transport aprox. 527 m
transport
Primaria Floresti S
Mijloace transport aprox. 529 m
Recreere
shopping
Diana
Supermarket/Mall aprox. 150 m
restaurants
Silviu
Restaurante aprox. 280 m
shopping
Lidl
Supermarket/Mall aprox. 651 m
parks
Parc
Recreere aprox. 815 m

Proprietăți similare

Casă cu 4 camere cu Teren 500 Mp în Florești
250.000 €
Județul Cluj, Florești
4 camere
160 mp
500 mp teren
Casă cu 3 camere cu Teren 703 Mp în Florești
235.000 €
Județul Cluj, Florești
3 camere
120 mp
703 mp teren
Casă cu 5 camere cu Teren 150 Mp în Florești
265.000 €
Județul Cluj, Florești
5 camere
133 mp
150 mp teren
Casă cu 4 camere cu Teren 300.5 Mp în Florești
245.000 €
Județul Cluj, Florești
4 camere
118,97 mp
300,5 mp teren
Casă cu Teren 170 Mp în Florești
245.000 €
Județul Cluj, Florești
105 mp
170 mp teren
Casă cu 4 camere cu Teren 165 Mp în Florești
265.000 €
Județul Cluj, Florești
4 camere
120 mp
165 mp teren
Casă cu 4 camere în Florești
237.000 €
Județul Cluj, Florești
4 camere
120 mp
Casă cu 4 camere cu Teren 350 Mp în Florești
239.800 €
Județul Cluj, Florești
4 camere
125 mp
350 mp teren
Casă cu 4 camere în Florești
235.000 €
Județul Cluj, Florești
4 camere
135 mp

Abonează-te la newsletter să fii primul care primește cele mai noi recomandări de proprietăți și sfaturi de la experți.