1

Casa Cumpana intabulata ?i conectata la toate utilita?ile

€ 160.000

Cumpăna, Judeţul Constanţa

Nr. camere:
4
Suprafață utilă:
102 mp
Suprafață teren:
363 mp

Descriere

Raportează anunț

Casa Cumpana intabulata ?i conectata la toate utilita?ile

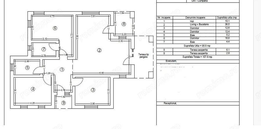
Agen?ia Acord Imobiliar va propune la vanzare o casa la sol situata in Cumpana. Proprietatea are o suprafa?a de teren de 363mp pe care este construita o casa cu suprafa?a desfa?urata de 137mp, din care suprafata totala utila este de 108mp ()9 sunt teresale). Casa este construita recent ?i are toate utilita?ile conectate la interior (gaz, curent, apa ?i canalizare). Zidaria exterioara ?i interioara este de 25cm din caramida Porotherm, excep?ie la pere?ii bailor unde sunt de 15cm. Casa este inal?ata la sol cu 50cm. Ferestre ProEvolution Premium MD cu feronarie MAKO. Acoperi? tabla BILKA. Casa este decomandata, living, bucatarie,3 dormitoare ?i 2 bai. Casa se vinde la stadiul de alb. Contracost se poate asigura manopera pentru finisajele interioare. Livingul ?i bucataria sunt open space dar pot fi despar?ite prin perete de zidarie sau sticla. Dimensiunile incaperilor se regasesc in fotografii. Pentru detalii va rugam sa ne contacta?i. Vizionarea proprieta?ii se face doar in urma incheierii Acordului de vizionare. ID anun? : 1748956331
Citește mai mult Citește mai puțin
ID anunț: 229603 Actualizat în: 21 Decembrie 2025
Nr. camere: 4
Suprafață utilă: 102 mp
Suprafață utilă totală: 102 mp
Suprafață construită: 126 mp
Nr. băi: 2
Suprafață teren: 363 mp
An construcție: 2025 (Finalizată)
Nr. locuri parcare: 1

Istoric preț

Utilități

Utilități
Apă Gaze

Proprietăți similare

Casă cu 4 camere cu Teren 250 Mp în Cumpăna
€ 149.000
Județul Constanța, Cumpăna
4 camere
110 mp
250 mp teren
Casă cu 4 camere cu Teren 400 Mp în Cumpăna
€ 175.000
Județul Constanța, Cumpăna
4 camere
120 mp
400 mp teren
Casă cu 4 camere în Cumpăna
€ 150.000
Județul Constanța, Cumpăna
4 camere
196 mp
Casă cu 6 camere cu Canalizare în Est
€ 165.000
Județul Constanța, Ovidiu
6 camere
162 mp
400 mp teren
Casă cu 3 camere cu Teren 280 Mp în Abator
€ 157.000
Constanța, Abator
3 camere
81 mp
280 mp teren
Casă cu 4 camere cu Teren 170 Mp în Central
€ 160.000
Județul Constanța, Năvodari
4 camere
130 mp
170 mp teren
Casă cu 5 camere cu Garaj în Exterior Nord
€ 171.000
Județul Constanța, Ovidiu
5 camere
280 mp
330 mp teren
Casă cu 4 camere cu Canalizare în Inel II
€ 167.000
Constanța, Inel II
4 camere
76 mp
375 mp teren
Casă cu 4 camere cu Teren 304 Mp în Valu lui Traian
€ 155.000
Județul Constanța, Valu lui Traian
4 camere
82 mp
304 mp teren

Abonează-te la newsletter să fii primul care primește cele mai noi recomandări de proprietăți și sfaturi de la experți.