Casa tip triplex de vanzare ,zona Cuza Voda,comision 0!!!

€ 175.000

Central, Cluj-Napoca

Nr. camere:
4
Suprafață utilă:
100 mp

Descriere

Raportează anunț

Casa tip triplex de vanzare ,zona Cuza Voda,comision 0!!!

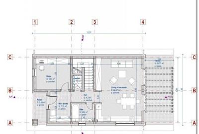
Nu rata?i ocazia de a achizi?iona aceasta oferta excep?ionala: o casa tip triplex de vanzare situata in localitatea Flore?ti, pe strada Cuza Voda, in apropierea Primariei ?i a magazinului Lidl. Imobilul are o suprafa?a utila de 100 mp ?i un teren de 100 mp, fiind ideal pentru o familie care cauta lini?te ?i confort intr-o zona bine pozi?ionata. Casa este dispusa pe doua niveluri ?i este compartimentata eficient: la parter se afla un living generos, o bucatarie inchisa cu u?i glisante din termopan ?i o baie cu geam, iar la etaj sunt trei dormitoare, un hol spa?ios ?i o a doua baie, de asemenea prevazuta cu geam pentru lumina naturala ?i ventila?ie. Construc?ia este solida, realizata din caramida, cu funda?ie de beton, acoperi? din ?igla clasica ?i izola?ie exterioara, ceea ce asigura un bun confort termic pe tot parcursul anului. Casa dispune si de un beci subteran sub terasa. Printre dotarile locuin?ei se numara centrala termica proprie, calorifere, ferestre din termopan, u?a din PVC, terasa, acces auto in curte, precum ?i o curte comuna. Casa se vinde complet mobilata ?i utilata, fiind dotata cu frigider, aragaz, ma?ina de spalat ?i televizor, ceea ce o face pregatita pentru mutare imediata. Pentru mai multe informa?ii sau pentru a programa o vizionare, nu ezita?i sa ne contacta?i telefonic sau sa ne vizita?i la sediul agen?iei EDIL din Flore?ti, situat pe Strada Eroilor, Nr. 25, Ap. 15, etaj 1. CACJ246368 ID anun? : 1748592766
Citește mai mult Citește mai puțin
ID anunț: 92460 Actualizat în: 20 Decembrie 2025
Nr. camere: 4
Suprafață utilă: 100 mp
Suprafață utilă totală: 100 mp

Istoric preț

Proprietăți similare

Casă cu 3 camere cu Teren 100 Mp în Central
€ 179.000
Cluj-Napoca, Central
3 camere
54 mp
100 mp teren
Casă cu 3 camere cu Teren 317 Mp în Central
€ 180.000
Cluj-Napoca, Central
3 camere
60 mp
317 mp teren
Casă cu 4 camere cu Teren 380 Mp în Central
€ 179.000
Cluj-Napoca, Central
4 camere
119 mp
380 mp teren
Casă cu 4 camere cu Teren 356 Mp în Central
€ 179.000
Cluj-Napoca, Central
4 camere
126 mp
356 mp teren
Casă cu 5 camere cu Teren 500 Mp în Central
€ 179.000
Cluj-Napoca, Central
5 camere
125 mp
500 mp teren
Casă cu 5 camere cu Teren 700 Mp în Central
€ 179.000
Cluj-Napoca, Central
5 camere
125 mp
700 mp teren
Casă cu 4 camere cu Teren 692 Mp în Central
€ 185.000
Cluj-Napoca, Central
4 camere
160 mp
692 mp teren
Casă cu 4 camere cu Teren 800 Mp în Central
€ 175.000
Cluj-Napoca, Central
4 camere
120 mp
800 mp teren
Casă cu 2 camere cu Canalizare în Central
€ 185.000
Cluj-Napoca, Central
2 camere
49 mp
57 mp teren

Abonează-te la newsletter să fii primul care primește cele mai noi recomandări de proprietăți și sfaturi de la experți.