Casa cu 4 camere intabulata in ansamblu cu iesire la lac - Crevedia

99.000 €

Buftea, Judeţul Ilfov

Nr. camere:
4
Suprafață utilă:
101 mp
Suprafață teren:
450 mp
Nr. niveluri:
1

Descriere casă

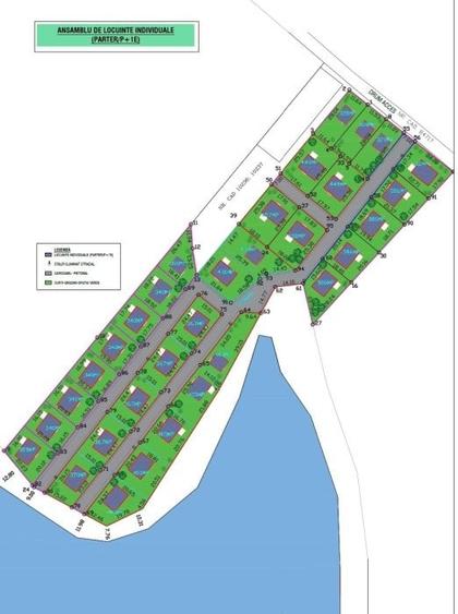
Pentru detalii complete si tur virtual 360 viziteaza: /ro/vanzare-vila-individuala-4-camere-central-buftea-20432 ======================================================= Zona superba, casa individuala cu o suprafata construita de 114mp, suprafata utila de 101mp ce include terasa acoperita de 14mp,  situata in apropierea Primariei Crevedia, in complexul Sole by Lake ce are iesire directa la lacul Crevedia. Pretul afisat nu include TVA. - living ,3 dormitoare , bucatarie, 2 bai, terasa acoperita, scara acces catre spatiul de depozitare din pod, teren stradal de 450mp cu deschidere 18.22ml. Casa face parte dintr-un complex rezidential nou, racordat la toate utilitatile publice. Structura este din beton armat, zidarie caramida porotherm, inclusiv peretii interiori. Gradina proprie de aproximativ 335mp, pusa in valoare de amplasamentul bun al casei pe teren astfel incat utilizarea gradinii este maxim optimizata. Casa ofera cele mai moderne conditii de locuire prin compartimentarea echilibrata, inteligenta si prin suprafetele vitrate mari. Zona de recreere in apropierea lacului, o oaza de liniste si confort intr -o comunitate ce urmeaza sa se formeze.  Comision 0 pentru cumparatori. Toate actele.
Citește mai mult Citește mai puțin
Renovat

Detalii casă

Actualizat în: 27 Aprilie 2026 ID anunț: 904312
Nr. camere: 4
Suprafață utilă: 101 mp
Suprafață utilă totală: 101 mp
Nr. băi: 2
Suprafață teren: 450 mp
An construcție: 2024
Etaj: Parter / 1
Regim înălțime: P+1E

Istoric preț

Facilități

Pereți
Faianță Vopsea lavabilă
Podele
Parchet Gresie
Uși interior
Lemn PVC
Izolații termice
Exterior
Ferestre cu geam termopan
Lemn PVC
Amenajare străzi
Asfaltate

Proprietăți similare

Casă cu 2 camere cu Teren 2000 Mp în Periș
99.000 €
Județul Ilfov, Periș
2 camere
80 mp
2.000 mp teren
Casă cu 3 camere cu Teren 150 Mp în Central
105.000 € + TVA
Județul Ilfov, Popești-Leordeni
3 camere
58 mp
150 mp teren
Casă cu 3 camere cu Teren 170 Mp în Mogoșoaia
99.800 €
Județul Ilfov, Mogoșoaia
3 camere
60 mp
170 mp teren
Casă cu 4 camere cu Teren 250 Mp în Berceni
100.000 € + TVA
Județul Ilfov, Berceni
4 camere
113 mp
250 mp teren
Casă cu 3 camere cu Teren 105 Mp în Central
95.000 €
Județul Ilfov, Bragadiru
3 camere
75 mp
105 mp teren
Casă cu 3 camere cu Teren 501 Mp în Pasărea
90.000 €
Județul Ilfov, Pasărea
3 camere
63 mp
501 mp teren
Casă cu 4 camere cu Canalizare în Periș
105.000 €
Județul Ilfov, Periș
4 camere
250 mp
1.000 mp teren
Casă cu 6 camere cu Garaj în 1 Decembrie
99.000 €
Județul Ilfov, 1 Decembrie
6 camere
200 mp
350 mp teren
Casă cu 3 camere cu Teren 260 Mp în Vidra
103.000 €
Județul Ilfov, Vidra
3 camere
70 mp
260 mp teren

Abonează-te la newsletter să fii primul care primește cele mai noi recomandări de proprietăți și sfaturi de la experți.