Vand CASA,VILA Noua P+1E 241,5Mp construit zona centrala BREAZA

299.500 €

Breaza, Judeţul Prahova

Nr. camere:
6
Suprafață utilă:
700 mp
Suprafață teren:
700 mp

Descriere casă

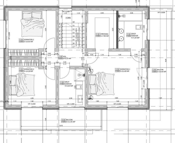
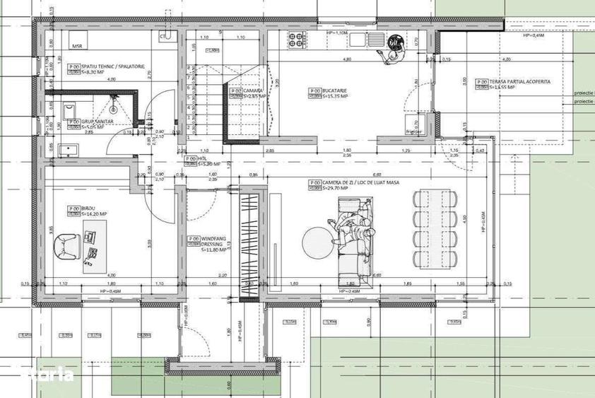
Va propun spre vanzare o casa deosebita,situata intr-o zona linistita ce ofera intimitate.Proprietatea este formata din parter si etaj cu o suprafata construita de 241,5MP pe un teren de 1400mp. Se poate vinde si 50% din teren cu drum de acces (mai multe detalii telefonic)La parter se regasesc: hol intrare cu dressing11,80MP,bucatarie 15.35MP,living 29,70MP,terasa partial acoperita 13,55MP,hol5,80MP,spatiu tehnic 8,30MP,grup sanitar5,05MP,birou\dormitor 14,20MPLa etaj se regasesc:dormitor1: 21,60MP cu grup sanitar propriu 7,20MP si dressing7,90MP hol5,15MP ,grup sanitar comun 6,65MP ,dormitor2 :14,20MP,dormitor3:14,45Mp, balcon1:14,95MP balcon2:11,05MPCasa este construita in anul 2024 si se estimeaza finalizare in luna martie la cheiePunem la dispozitie cumparatorului dosar cu toate etapele constructiei detaliat cu fotografii si carte tehnica.Structura este din beton cu 3 placi(placa cota0 ,placa peste parter si placa peste etaj).Pereti exteriori ziditi cu caramida Phorotherm 30cm si izolatie cu polistiren 10cm eps100. La interior este tencuita manual si tavanele placate cu rigips. La acoperis s-a folosit tabla BILKA cu garantie15ani.Incalzire in pardoseala .Ferestre si usi SALAMANDER de inalta calitate. Toate materialele folosite sunt de calitate inalta!Imobilul dispute de toate utilitatile necesare,incluzand gaz,apa,canalizare,internet tv,electricitate,asigurand confortul si functionalitatea de zi cu zi!Pretul afisat pentru aceasta proprietate include predarea la cheie,avand deja alocat un buget pentru finalizarea etapelor ramase.Astfel ,veti putea personaliza finisajele asa cum va doriti!Aceasta casa reprezinta nu doar o buna investtitie intr-o proprietate de calitate ci si intr-un stil de viata modern si confortabil,intr-o zona exceptionala!Va invitam cu drag la o vizionare!Nu accept colaborari cu agentii!
Citește mai mult Citește mai puțin

Detalii casă

ID anunț: 339897 Actualizat în: 10 Aprilie 2026
Nr. camere: 6
Suprafață utilă: 700 mp
Suprafață utilă totală: 700 mp
Suprafață teren: 700 mp
An construcție: 2024

Istoric preț

Puncte de interes

Recreere
parks
Tenis Pensiunea Floarea
Recreere aprox. 177 m
parks
Loc Joaca Copii
Recreere aprox. 1129 m
parks
Parcul Brancoveanu
Recreere aprox. 1142 m
parks
Teren handbal
Recreere aprox. 1420 m

Proprietăți similare

Casă cu 6 camere cu Teren 4042 Mp în Central
328.000 €
Județul Prahova, Breaza
6 camere
247 mp
4.042 mp teren
Casă cu 4 camere în Valea Călugărească
320.000 €
Județul Prahova, Valea Călugărească
4 camere
334 mp
Casă cu 8 camere cu Teren 462 Mp în Central
325.000 €
Județul Prahova, Urlați
8 camere
643 mp
462 mp teren
Casă cu 30 camere cu Teren 2639 Mp în Măneciu
320.000 €
Județul Prahova, Măneciu
30 camere
1.415 mp
2.639 mp teren
Casă cu 5 camere cu Canalizare în Ultracentral
320.000 €
Ploiești, Ultracentral
5 camere
136 mp
550 mp teren
Casă cu 5 camere cu Canalizare în Păuleștii Noi
310.000 €
Județul Prahova, Păuleștii Noi
5 camere
222 mp
570 mp teren
Casă cu 7 camere cu Canalizare în Păulești
295.000 €
Județul Prahova, Păulești
7 camere
205 mp
498 mp teren
Casă cu Teren 500 Mp în Cornu
285.000 €
Județul Prahova, Cornu
160 mp
500 mp teren
Casă cu 7 camere cu Teren 1269 Mp în Cantacuzino
325.000 €
Ploiești, Cantacuzino
7 camere
353 mp
1.269 mp teren

Abonează-te la newsletter să fii primul care primește cele mai noi recomandări de proprietăți și sfaturi de la experți.