1

Vila cu 2 apartamente, pod mansardabil, teren, Mircea cel Batran.

575.000 €

13 Decembrie, Braşov

Nr. camere:
6
Suprafață utilă:
608 mp
Suprafață teren:
670 mp

Descriere casă

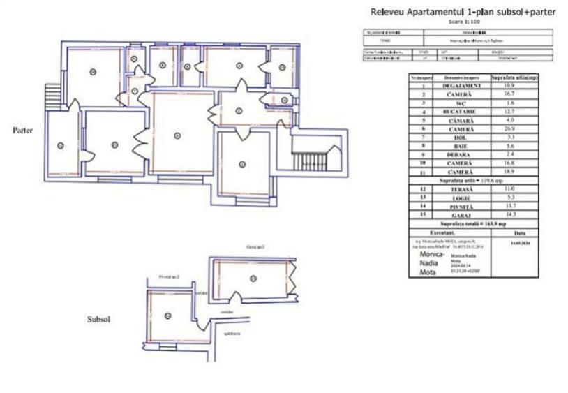
Compania Imobiliara Brasovul Vechi va propune spre achizitie, in exclusivitate, o vila confortabila, de dimensiuni generoase, situata intr-o zona linistita a orasului, cu acces rapid catre toate zonele de interes - Gara Brasov 0.8 km, AFI Mall 1.2 km, Centrul Administrativ si Bancar 0.8 km, Piata Agroalimentara Dacia 0.6 km, Piata Sfatului 3 km, Primaria Brasov 2.2 km. Constructia, cu amprenta de 188 mp, este amplasata pe un teren generos de 670 mp; o curte pavata cu acces auto facil si o gradina cu pomi fructieri si vita de vie. Imobilul cu suprafata construita de 608 mp, dispusa pe S+P+E+Pod, este compus din 2 apartamente contorizate separat (cu centrale termice proprii), casa scarii si spatiu tehnic la subsol. Apartamentul 1, suprafata utila locuibila 120 mp, suprafata utila totala 164 mp: - Subsol: garaj si pivnita; - Parter: 4 camere, bucatarie, baie, baie de serviciu, holuri, spatii de depozitare, terasa si logie; Apartamentul 2, suprafata utila locuibila 120 mp, suprafata utila totala 181 mp + 163 mp pod cu terasa si acces: - Subsol: garaj si pivnita; - Etaj: 4 camere, bucatarie, baie, baie de serviciu, holuri, spatii de depozitare, terasa si logie; - Pod: spatiu deschis, inalt, cu posiilitate de mansarsare si terasa; Imobilul construit in 1977, beneficiarul unei intretineri atente si constante (invelitoare noua, izolatie termica exterioara, ferestre pvc cu geam termopan), se bucura de un ambient placut generat de expunerea sudica si estica a teraselor si incaperilor principale. Locatia, compartimentarea si calitatea imobilului, permit adaptarea constructiei pentru nevoile moderne de locuit sau utilizarea ei in scopuri comerciale - medicale, educationale, birouri, etc. Pret negociabil 575.000 euro. Comision cumparator 2%.
Citește mai mult Citește mai puțin

Detalii casă

ID anunț: 920867 Actualizat în: 11 Februarie 2026
Nr. camere: 6
Suprafață utilă: 608 mp
Suprafață utilă totală: 608 mp
Suprafață teren: 670 mp

Istoric preț

Proprietăți similare

Casă cu 8 camere cu Canalizare în 13 Decembrie
530.000 €
Brașov, 13 Decembrie
8 camere
240 mp
670 mp teren
Casă cu 6 camere cu Teren 670 Mp în 13 Decembrie
575.000 €
Brașov, 13 Decembrie
6 camere
608 mp
670 mp teren
Casă cu 5 camere cu Teren 1000 Mp în Stupini
550.000 €
Brașov, Stupini
5 camere
240 mp
1.000 mp teren
Casă cu 5 camere cu Teren 720 Mp în Tractorul
520.000 €
Brașov, Tractorul
5 camere
270 mp
720 mp teren
Casă cu 7 camere cu Teren 733 Mp în Bartolomeu
545.000 €
Brașov, Bartolomeu
7 camere
270 mp
733 mp teren
Casă cu 6 camere în Central
598.000 €
Brașov, Central
6 camere
384 mp
Casă cu 7 camere cu Canalizare în Centrul Istoric
590.000 €
Brașov, Centrul Istoric
7 camere
270 mp
382 mp teren
Casă cu 8 camere cu Canalizare în Centrul Civic
599.800 €
Brașov, Centrul Civic
8 camere
293 mp
212 mp teren
Casă cu 10 camere cu Canalizare în Centrul Civic
625.000 €
Brașov, Centrul Civic
10 camere
520 mp
250 mp teren

Abonează-te la newsletter să fii primul care primește cele mai noi recomandări de proprietăți și sfaturi de la experți.