Casa Nest cu design modern

200.700 €

Bod, Judeţul Braşov

Nr. camere:
4
Suprafață utilă:
105 mp
Suprafață teren:
700 mp
Nr. niveluri:
1

Descriere casă

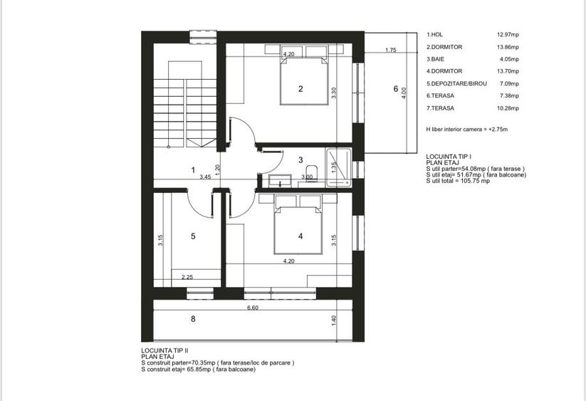
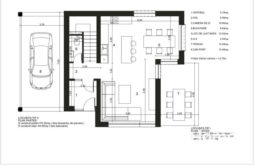
Comision cumparator zero %. Home 4 You Imobiliare Propune spre vanzare, cel mai nou ansamblu rezidential dezvoltat de Maurer Imobiliare, Proiect Maurer Vilage Bod, care imbina perfect elemente precum Design Modern, Loturi Generoase de Teren si Spatiu. Situata in Bod, intr-o zona linistita si cu acces facil spre Brasov. Nest este proprietate premium cu garaj acoperit are o suprafata utila de 105,75 mp si suprafata de teren de 700 mp. Casa este dispusa pe parter si etaj, iar compartimentarea este urmatoarea: – Parter – cu o suprafata utila de 54,08 mp, terasa de 14,40 mp si un garaj acoperit de 14,40 mp. Vestibul 4,10 mp , hol 8 mp , camera de zi 18,90 mp, bucatarie 8,64 mp , loc de luat masa 12,42, grup sanitar 2 mp. – Etaj – cu o suprafata utila de 51,67,79 si 2 terase de 7,38 si 10,28 mp. Hol 12,97 mp, dormitor 13,86, baie 4,05, dormitor 13,70, depozitare/birou 7,09. Termen de finalizare in 18 luni de la semnare! In cadrul Ansamblului Rezidential ai posibilitatea sa alegi lotul de teren dorit care are o suprafata incepand cu 700 mp, dar si tipul de casa dupa nevoia ta si a familiei tale. Ti-am trezit interesul si doresti mai multe informatii? Contacteaza-ne pentru o vizionare! Pretul include TVA de 21% , valabil pentru plata integrala in stadiu de proiect
Citește mai mult Citește mai puțin
Nemobilat Grădină Curte Centrală proprie Bine întreținut (Bună) Zonă rurală

Detalii casă

Actualizat în: 16 Februarie 2026 ID anunț: 788169
Nr. camere: 4
Suprafață utilă: 105 mp
Suprafață utilă totală: 105 mp
Nr. băi: 2
Suprafață teren: 700 mp
An construcție: 2024
Regim înălțime: P+1E

Istoric preț

Facilități

Pereți
Faianță Vopsea lavabilă
Podele
Parchet Gresie
Ușă intrare
Parchet Metal PVC Lemn
Uși interior
PVC Lemn
Stare interior
Stare bună
Izolații termice
Exterior
Ferestre cu geam termopan
PVC Lemn
Contorizare
Apometre Contor gaz
Mobilat
Nemobilat
Diverse
Scară interioară
Alte spații utile
Dressing
Facilități imobil
Acoperiș Curte Grădină amenajată
Utilități
Curent Apă Canalizare Gaze Cablu
Sistem încălzire
Centrală proprie
Internet
Cablu Fibră optică
Amenajare străzi
Asfaltate Pietruite Mijloace de transport în comun Iluminat stradal

Puncte de interes

Școală
education
Scoala
Învățământ aprox. 1011 m
education
Scoala Generala Bod
Învățământ aprox. 1032 m
education
Scoala Generala Bod
Învățământ aprox. 1139 m
Recreere
shopping
Agrostar
Supermarket/Mall aprox. 1027 m
restaurants
La Francezu
Restaurante aprox. 1187 m

Proprietăți similare

Casă cu 5 camere cu Canalizare în Bod
215.000 €
Județul Brașov, Bod
5 camere
310 mp
320 mp teren
Casă cu 3 camere cu Teren 583 Mp în Bod
195.000 €
Județul Brașov, Bod
3 camere
106 mp
583 mp teren
Casă cu 7 camere cu Canalizare în Bod
185.000 €
Județul Brașov, Bod
7 camere
365 mp
600 mp teren
Casă cu 5 camere cu Teren 1000 Mp în Bod
208.000 €
Județul Brașov, Bod
5 camere
185 mp
1.000 mp teren
Casă cu Teren 405 Mp în Bod
184.000 €
Județul Brașov, Bod
105 mp
405 mp teren
Casă cu 6 camere cu Canalizare în Bod
192.000 €
Județul Brașov, Bod
6 camere
178 mp
2.052 mp teren
Casă cu 4 camere cu Teren 620 Mp în Bod
199.500 €
Județul Brașov, Bod
4 camere
145 mp
620 mp teren
Casă cu 5 camere cu Teren 1000 Mp în Bod
199.000 €
Județul Brașov, Bod
5 camere
250 mp
1.000 mp teren
Casă cu 6 camere cu Teren 1000 Mp în Bod
208.000 €
Județul Brașov, Bod
6 camere
250 mp
1.000 mp teren

Abonează-te la newsletter să fii primul care primește cele mai noi recomandări de proprietăți și sfaturi de la experți.