Vila P+1 5 Camere,180Mp Util, 417Mp Teren. Comuna Berceni IF

€ 120.000

Berceni, Judeţul Ilfov

Nr. camere:
5
Suprafață utilă:
180 mp
Suprafață teren:
417 mp

Descriere

Raportează anunț

Vila P+1 5 Camere,180Mp Util, 417Mp Teren. Comuna Berceni IF

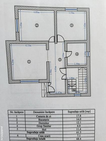
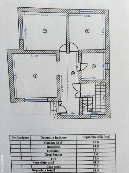
Vila P+1 + Pod Mansardabil Construc?ie Premium pentru Familie Suprafa?a utila: 180 mp Teren: 417 mp (deschidere 18 m) Pre?: 120.000 Compartimentare moderna: 5 camere spa?ioase 2 bai 1 dressing generos 2 balcoane cu vedere libera Utilita?i & facilita?i: Curent trifazic (racord subteran) Gaze la poarta Acces direct din strada asfaltata, iluminat public Pu? forat 20 m (a doua panza freatica apa de calitate) Fosa septica dubla Parcare pentru 2 ma?ini in curte Loc pentru piscina ?i zona de relaxare Construc?ie de calitate superioara: Caramida Porotherm 25 cm Placa etaj armata grosime 35 cm Funda?ie adanca cu talpa 80 cm Elemente structurale solide, concepute anti-seism Hidroizola?ie completa + izola?ie extrudat (funda?ie, ?apa ?i tavane) Stadiu construc?ie: Parter finisat, locuibil imediat Etaj la ro?u (posibilitate personalizare dupa gustul viitorului proprietar) Pod mansardabil (inca 80 100 mp utili) Loca?ie: Capatul strazii Calugareni zona lini?tita, ideala pentru familie La doar 1 km de ?coala, gradini?a ?i after-school La 1,5 km de centrul comunei ?i de Primarie Acces rapid catre ora?, dar cu lini?te, aer curat ?i comunitate buna Casa individuala, construita pentru uz propriu, cu sim? de raspundere ?i materiale de cea mai buna calitate. Ideala pentru o familie care i?i dore?te siguran?a, spa?iu, lini?te ?i confort. ID anun?
Citește mai mult Citește mai puțin
ID anunț: 1676075 Actualizat în: 07 Decembrie 2025
Nr. camere: 5
Suprafață utilă: 180 mp
Suprafață utilă totală: 180 mp
Nr. băi: 2
Suprafață teren: 417 mp
Nr. locuri parcare: 2

Istoric preț

Proprietăți similare

Casă cu 4 camere cu Teren 200 Mp în Berceni
€ 117.500
Județul Ilfov, Berceni
4 camere
130 mp
200 mp teren
Casă cu 4 camere cu Teren 256 Mp în Berceni
€ 131.000
Județul Ilfov, Berceni
4 camere
120 mp
256 mp teren
Casă cu 4 camere cu Teren 300 Mp în Berceni
€ 119.900
Județul Ilfov, Berceni
4 camere
80 mp
300 mp teren
Casă cu 4 camere cu Teren 220 Mp în Berceni
€ 114.990
Județul Ilfov, Berceni
4 camere
100 mp
220 mp teren
Casă cu 4 camere cu Teren 200 Mp în Berceni
€ 114.990
Județul Ilfov, Berceni
4 camere
100 mp
200 mp teren
Casă cu 3 camere cu Teren 200 Mp în Berceni
€ 114.900
Județul Ilfov, Berceni
3 camere
85 mp
200 mp teren
Casă cu 4 camere cu Teren 300 Mp în Berceni
€ 129.990
Județul Ilfov, Berceni
4 camere
110 mp
300 mp teren
Casă cu 3 camere cu Teren 378 Mp în Berceni
€ 125.000
Județul Ilfov, Berceni
3 camere
87 mp
378 mp teren
Casă cu 4 camere cu Teren 300 Mp în Berceni
€ 120.000
Județul Ilfov, Berceni
4 camere
78 mp
300 mp teren

Abonează-te la newsletter să fii primul care primește cele mai noi recomandări de proprietăți și sfaturi de la experți.