CASĂ MODERNĂ P+1 4 CAMERE | CURTE | 2022 | Finisaje Premium |

158.000 €

Bălăceanca, Judeţul Ilfov

Nr. camere:
4
Suprafață utilă:
120 mp
Suprafață teren:
250 mp
Nr. niveluri:
1

Descriere casă

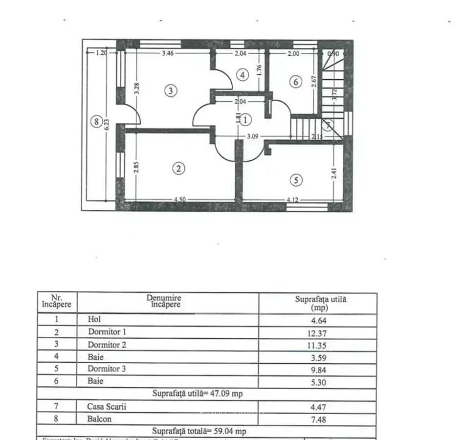
Casă modernă cu 4 camere și 3 băi, construită în 2022, situată într-o zonă liniștită cu vedere liberă spre câmp, ideală pentru cei care caută confort, intimitate și stil. Locuința are o suprafață utilă de 94,5 mp și un teren total de 250 mp, dintre care 180 mp reprezintă curtea ce poate fi amenajată cu gazon și zonă de relaxare. Casa este dispusă pe parter și etaj, având acoperiș plat tip bloc și izolație excelentă atât la interior, cât și la exterior. Parterul oferă un living spațios cu zonă de dining, bucătărie complet mobilată și utilată, o baie modernă și acces direct către terasa generoasă de 21 mp, ideală pentru momente de relaxare. La etaj se află trei dormitoare luminoase, două băi elegante și un balcon de 8 mp cu priveliște liberă. Imobilul dispune de centrală termică proprie, finisaje moderne și mobilier de calitate, iar vânzarea se face complet mobilată, fără electrocasnice. În curte se află o anexă amenajată cu grătar, perfectă pentru seri relaxante în familie sau între prieteni. Proprietatea beneficiază de un front stradal de 11 m, acces facil, liniște și un peisaj natural plăcut. Casa poate fi predată complet mobilată fără electrocasnice, iar prețul este ușor negociabil – o alegere excelentă pentru cei care își doresc o locuință contemporană, elegantă și primitoare care îmbină perfect confortul urban cu liniștea naturii. Pretul este usor negociabil . Pentru mai multe detalii si vizionari va stau la dispozitie . Pitrop Dumitru VAUNT ID: 110944
Citește mai mult Citește mai puțin
Mobilat Curte Aer condiționat Calorifere Centrală proprie Bine întreținut (Bună)

Detalii casă

ID anunț: 2477888 Actualizat în: 09 Martie 2026
Nr. camere: 4
Suprafață utilă: 120 mp
Suprafață utilă totală: 120 mp
Nr. băi: 3
Suprafață teren: 250 mp
Front stradal: 11 m
An construcție: 2022
Regim înălțime: P+1E

Istoric preț

Facilități

Pereți
Faianță Vopsea lavabilă
Podele
Parchet Gresie
Ușă intrare
PVC Metal Parchet
Uși interior
PVC Celulare
Stare interior
Stare bună
Izolații termice
Exterior Interior
Ferestre cu geam termopan
PVC
Contorizare
Contor gaz
Bucătărie
Mobilată Utilată
Mobilat
Mobilat
Electrocasnice
Frigider Hotă Mașină de spălat TV
Diverse
Scară interioară
Alte spații utile
Spațiu depozitare Anexe
Facilități imobil
Curte
Utilități
Curent Apă Canalizare Gaze Cablu Frigider Mașină de spălat rufe TV
Sistem încălzire
Centrală proprie Calorifere
Internet
Cablu Fibră optică Dial-up Wireless
Climatizare
Aer condiționat
Amenajare străzi
Mijloace de transport în comun Iluminat stradal Asfaltate

Proprietăți similare

Casă în Bălăceanca
145.000 €
Județul Ilfov, Bălăceanca
120 mp
Casă cu 5 camere în Bălăceanca
170.000 €
Județul Ilfov, Bălăceanca
5 camere
155 mp
Casă cu 4 camere cu Teren 370 Mp în Berceni
165.000 €
Județul Ilfov, Berceni
4 camere
140 mp
370 mp teren
Casă cu 4 camere cu Canalizare în Central
144.000 €
Județul Ilfov, Bragadiru
4 camere
125 mp
190 mp teren
Casă cu 4 camere cu Teren 420 Mp în Berceni
154.000 €
Județul Ilfov, Berceni
4 camere
125 mp
420 mp teren
Casă cu 4 camere cu Teren 104 Mp în Central
149.000 €
Județul Ilfov, Bragadiru
4 camere
120 mp
104 mp teren
Casă cu 4 camere cu Teren 405 Mp în Berceni
160.000 €
Județul Ilfov, Berceni
4 camere
120 mp
405 mp teren
Casă cu 4 camere cu Teren 500 Mp în Domnești
155.000 €
Județul Ilfov, Domnești
4 camere
120 mp
500 mp teren
Casă cu 4 camere cu Canalizare în Berceni
170.000 €
Județul Ilfov, Berceni
4 camere
110 mp
400 mp teren

Abonează-te la newsletter să fii primul care primește cele mai noi recomandări de proprietăți și sfaturi de la experți.