
4 luni în urmă
20
- Agenție
Alexandru Negrescu
700 €
/ lună
Preț vechi
1.000 €
Actualizat pe: 07 Oct 2025
GiroculuiRebreanu | Casa de inchiriat | 500 mp teren | Birou/After-school
700 €
/ lună
Preț vechi
1.000 €
Girocului, Timișoara
Descriere
Raportează anunț
Sesizează o problemă
GiroculuiRebreanu | Casa de inchiriat | 500 mp teren | Birou/After-school
GiroculuiRebreanu | Casa de inchiriat | 500 mp teren | Birou/After-school
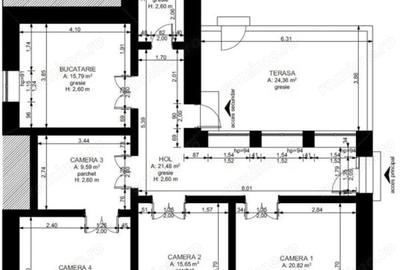
Imowest Imobiliare va propune spre inchiriere o casa versatila, ideala pentru birouri, gradini?a sau after-school, situata intr-o zona lini?tita ?i accesibila. Proprietatea este dezvoltata pe un singur nivel (parter) ?i are o suprafa?a utila de 95 mp, compartimentata eficient in: 3 camere spa?ioase 1 bucatarie 1 baie hol generos debara incapatoare, perfecta pentru depozitare Dotari ?i finisaje: centrala termica parchet laminat gresie ?i faian?a obiecte sanitare moderne Curtea generoasa de 500 mp este un mare atu, oferind un spa?iu excelent pentru activita?i in aer liber, recreere sau amenajarea unor zone de joaca/relaxare perfecta pentru un centru educa?ional. Aceasta proprietate reprezinta o alegere ideala pentru cei care cauta un spa?iu func?ional, cu multiple posibilita?i de utilizare. Pentru mai multe informa?ii ?i programari vizionari, va rugam sa ne contacta?i telefonic. ID anun?
Citește mai mult
Citește mai puțin
ID anunț: 1131677
Actualizat în: 07 Octombrie 2025
Nr. camere:
3
Suprafață utilă:
94 mp
Suprafață utilă totală:
94 mp
Suprafață construită:
114 mp
Nr. băi:
1
Suprafață teren:
500 mp
An construcție:
1990
Regim înălțime:
P+1E
Nr. locuri parcare:
1
Istoric preț
Utilități
Utilități
Apă
Gaze
Facilități
Curte
Proprietăți similare
Abonează-te la newsletter să fii primul care primește cele mai noi recomandări de proprietăți și sfaturi de la experți.
Căutări similare
- Case de închiriat în Girocului
- Case de închiriat în Timișoara
- Case de închiriat în Central
- Case de închiriat în Braytim
- Case de închiriat în Aradului
- Case de închiriat în Blașcovici
- Case de închiriat în Buziașului
- Case de închiriat în Calea Urseni
- Case de închiriat în Ciarda Roșie
- Case de închiriat în Circumvalațiunii
- Case de închiriat în Elisabetin
- Case de închiriat în Fratelia