Inchiriere Casa - Parcul Carol | Rezidential sau Birou | 153mp

1.400 € / lună

Parcul Carol, Bucureşti

Nr. camere:
4
Suprafață utilă:
152,74 mp
Suprafață teren:
128 mp
Nr. niveluri:
1

Descriere casă

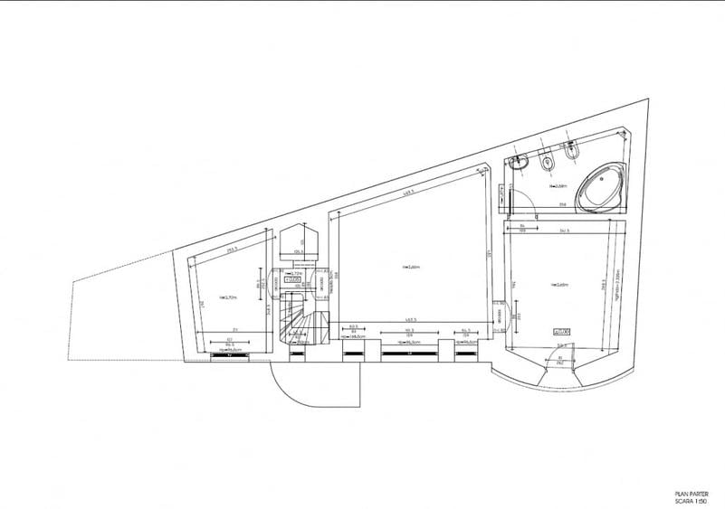
Va propunem spre inchiriere o casa cocheta situata in imediata vecinatate a Parcului Carol si a Bulevardului Marasesti. Aceasta proprietate reprezinta o oportunitate rara de a locui sau de a deschide un birou/sediu intr-o zona istorica matura, linistita, intr-un imobil care imbina arhitectura clasica cu dotarile tehnologice moderne. Apartamentul ofera flexibilitate totala viitorului chirias, fiind adaptabil pentru diverse nevoi: -Destinatie mixta: Ideala atat pentru rezidenta unei familii, cat si pentru activitati comerciale (birouri, cabinete medicale/avocatura, consultanta). -Intimitate si liniste: Situata in planul 2 fata de strada, proprietatea beneficiaza de un teren privat de 128mp (din care 63mp curte disponibila), oferind confortul unei case individuale ferite de zgomotul urban, desi situata in mijlocul orasului. Confort si Facilitati Rare -Dormitoare de dimensiuni generoase: Etajul gazduieste doua camere de aproximativ 20 mp fiecare, ideale pentru dormitoare spatioase sau birouri executive. -Subsol multifunctional (60 mp): Un spatiu imens cu lumina naturala si grup sanitar propriu, ce poate servi ca zona de depozitare, arhiva, spatiu tehnic sau camere de lucru suplimentare. -Tehnologie Smart: Acces securizat cu sistem smart la intrare si centrala termica pe gaz cu control de la distanta pentru eficientizarea costurilor. Imobilul, desi pastreaza farmecul anilor 1930-1940, a fost integral renovat in 2008, oferind standarde de siguranta si confort actuale: -Structura solida: Constructie din beton si caramida -Protectie solara si termica: Tamplarie PVC de calitate, rulouri exterioare la toate geamurile si centrala propie Date tehnice pe scurt: -Suprafata totala utila: 152.74 mp (Subsol 59.62 mp + Parter 48.69 mp + Etaj 44.43 mp). -Amprenta la sol: 65 mp pe un teren total de 128 mp. -Compartimentare: S+P+E, cu scara interioara eleganta din lemn. -Acces doar pietonal, cu front stradal de pana in 2m -Locatie: Strada Cornelia, acces rapid catre rondul Unirii, Parcul Carol si zona de sud. Pret: 1400 Euro / luna. Perioada contractuala: minim 1 an Aceasta proprietate este o solutie premium pentru cei care pun pret pe locatie, siguranta si un spatiu bine organizat in centrul Capitalei. Va invitam la o vizionare pentru a descoperi potentialul acestei vile deosebite de langa Parcul Carol!
Citește mai mult Citește mai puțin
Mobilat Curte Aer condiționat Centrală proprie Bine întreținut (Bună)

Detalii casă

ID anunț: 3892843 Actualizat în: 19 Martie 2026
Nr. camere: 4
Suprafață utilă: 152,74 mp
Suprafață utilă totală: 152,74 mp
Nr. băi: 3
Suprafață teren: 128 mp
An construcție: 1936
Regim înălțime: P+1E

Istoric preț

Facilități

Jaluzele
Verticale
Pereți
Vopsea lavabilă Var Faianță
Podele
Parchet Gresie
Ușă intrare
Parchet PVC Metal
Uși interior
PVC
Stare interior
Stare bună
Izolații termice
Interior
Ferestre cu geam termopan
PVC
Contorizare
Apometre Contor căldură Contor gaz
Bucătărie
Mobilată Utilată
Mobilat
Mobilat
Electrocasnice
Mașină de spălat Frigider Aragaz Cuptor microunde Hotă
Facilități imobil
Interfon Curte
Utilități
Curent Apă Canalizare Gaze Mașină de spălat rufe Frigider Aragaz / Plită Cuptor cu microunde
Sistem încălzire
Centrală proprie
Climatizare
Aer condiționat
Amenajare străzi
Asfaltate Betonate Iluminat stradal

Puncte de interes

Mijloace transport
transport
Parcul Carol I
Mijloace transport aprox. 73 m
transport
Statia Parcul Carol I linii : 232, 7, 23, 27, 47
Mijloace transport aprox. 74 m
transport
Parcul Carol I
Mijloace transport aprox. 76 m
transport
Statia Parcul Carol I, linia 232, 7, 23, 27, 47
Mijloace transport aprox. 161 m
Școală
education
Liceu de Coregrafie Floria Capsali
Învățământ aprox. 248 m
education
Gradinita nr. 224
Învățământ aprox. 277 m
education
Gradinita nr.224, "Vestitorii Primaverii"
Învățământ aprox. 286 m
education
Liceul de Arte "Dinu Lipatti"
Învățământ aprox. 305 m
Recreere
restaurants
Anytime
Restaurante aprox. 61 m
shopping
Succes
Supermarket/Mall aprox. 83 m
shopping
Shop & Go
Supermarket/Mall aprox. 86 m
parks
Aleea principala
Recreere aprox. 383 m

Proprietăți similare

Casă cu 6 camere în Giurgiului
1.490 € / lună
București, Giurgiului
6 camere
200 mp
Casă cu 5 camere cu Teren 315 Mp în Eroii Revoluției
1.500 € / lună
București, Eroii Revoluției
5 camere
300 mp
315 mp teren
Casă cu 5 camere în Apărătorii Patriei
1.400 € / lună
București, Apărătorii Patriei
5 camere
180 mp
Casă cu 5 camere cu Canalizare în Eroii Revoluției
1.500 € / lună
București, Eroii Revoluției
5 camere
150 mp
114 mp teren
Casă cu Teren 100 Mp în Berceni
1.390 € / lună
București, Berceni
100 mp
100 mp teren
Casă cu 5 camere cu Canalizare în Pipera
1.500 € / lună
București, Pipera
5 camere
300 mp
550 mp teren
Casă cu 5 camere cu Canalizare în Pipera
1.500 € / lună
București, Pipera
5 camere
250 mp
550 mp teren
Casă cu 5 camere în Pipera
1.400 € / lună
București, Pipera
5 camere
260 mp
Casă cu 5 camere cu Canalizare în Pipera
1.490 € / lună
București, Pipera
5 camere
118 mp
40 mp teren

Abonează-te la newsletter să fii primul care primește cele mai noi recomandări de proprietăți și sfaturi de la experți.