Casa de inchiriat in Sectorul ,Giurgiului - Eroii Revolutiei

€ 1.000 / lună

Giurgiului, Bucureşti

Nr. camere:
2
Suprafață utilă:
110 mp

Descriere

Raportează anunț

Casa de inchiriat in Sectorul ,Giurgiului - Eroii Revolutiei

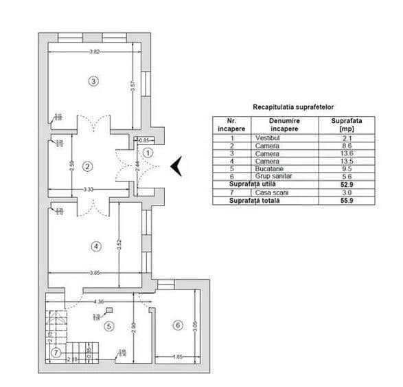
ATELIER DE CROITORIE BUSINESS LA CHEIE Disponibil pentru inchiriere. Oportunitate ideala pentru produc?ie textila ?i croitorie de lux. 1. Concept Va prezentam o oportunitate rara de a opera un atelier de croitorie complet func?ional, amplasat intr-o cladire postbelica cu personalitate, in Sectorul 4, Bucure?ti. Spa?iul este oferit exclusiv spre inchiriere ?i permite demararea imediata a activita?ii, fara investi?ii ini?iale semnificative in infrastructura. 2. Loca?ie ?i suprafa?a Atelierul are o suprafa?a totala de aproximativ 110 mp, dispusa pe parter ?i etaj, fiind organizat eficient pentru un flux de lucru coerent ?i profesionist. Parter 52 mp hol de acces 3 incaperi multifunc?ionale (croit, produc?ie, probe) baie bucatarie Etaj 56 mp hol 2 camere (birou, produc?ie, showroom sau depozitare) toaleta 3. Func?ionalitate ?i versatilitate Spa?iul a fost conceput pentru a sus?ine integral activitatea unui atelier modern: zona de croit cu masa dedicata, zona de proba, produc?ie, depozitare, expunere ?i birou. Este ideal atat pentru croitorie de lux, cat ?i pentru produc?ie de serie mica unicate si colectii 4. Echipamente profesionale Atelierul este dotat cu echipamente profesionale atent selec?ionate, recunoscute pentru fiabilitate ?i performan?a: Masa de calcat Battistella Ker5 Ma?ina de surfilat Pegasus M952-52H-2X4 D222 HV 2 ace, 4 fire Ma?ina Uberdeck 3 ace, 5 fire W3562P-016X356BS Z054 Ma?ina de cusut Juki DDL 8700 1 ac, stand cu role Ma?ina Triplock Juki MO 8816S 5 fire, stand cu role Echipamentele pot fi inchiriate impreuna cu spa?iul sau achizi?ionate in rate, oferind flexibilitate maxima in func?ie de strategia de business. 5. Resursa umana calificata Op?ional, se poate asigura preluarea personalului existent: doua croitorese cu peste 25 de ani de experien?a in croitorie de lux, un avantaj competitiv major pentru continuitate ?i calitate. 6. Structura colaborarii inchiriere spa?iu atelier inchiriere echipamente sau vanzare in rate preluare opera?ionala cu personal existent contracte flexibile, pe termen mediu sau lung 7. Concluzie Aceasta oferta reprezinta o solu?ie eleganta ?i eficienta pentru antreprenori, designeri sau companii care doresc sa i?i dezvolte rapid capacitatea de produc?ie intr-un cadru profesional, deja opera?ional. Detalii financiare, condi?ii contractuale ?i programarea unei vizionari se ofera la cerere ID anun? : 1768034298
Citește mai mult Citește mai puțin
ID anunț: 3157538 Actualizat în: 14 Ianuarie 2026
Nr. camere: 2
Suprafață utilă: 110 mp
Suprafață utilă totală: 110 mp
An construcție: 1980

Istoric preț

Proprietăți similare

Casă cu 4 camere în Giurgiului
€ 1.000 / lună
București, Giurgiului
4 camere
110 mp
Casă cu 4 camere cu Teren 100 Mp în Apărătorii Patriei
€ 900 / lună
București, Apărătorii Patriei
4 camere
100 mp
100 mp teren
Casă cu 5 camere cu Teren 1000 Mp în Berceni
€ 1.000 / lună
București, Berceni
5 camere
210 mp
1.000 mp teren
Casă cu 6 camere cu Teren 499 Mp în Bucureștii Noi
€ 1.000 / lună
București, Bucureștii Noi
6 camere
300 mp
499 mp teren
Casă cu 4 camere cu Teren 240 Mp în 1 Mai
€ 900 / lună
București, 1 Mai
4 camere
83 mp
240 mp teren
Casă cu 6 camere cu Teren 220 Mp în Ștefan cel Mare
€ 1.000 / lună
București, Ștefan cel Mare
6 camere
130 mp
220 mp teren
Casă cu 4 camere în Băneasa
€ 1.000 / lună
București, Băneasa
4 camere
Casă cu 5 camere cu Teren 150 Mp în Moșilor
€ 1.000 / lună
București, Moșilor
5 camere
100 mp
150 mp teren
Casă cu 5 camere cu Teren 300 Mp în Rahova
€ 1.000 / lună
București, Rahova
5 camere
200 mp

Abonează-te la newsletter să fii primul care primește cele mai noi recomandări de proprietăți și sfaturi de la experți.