Townhouse Avalon 4 camere | 2 Locuri Parcare |

2.999 € / lună

Aviaţiei, Bucureşti

Nr. camere:
4
Suprafață utilă:
132 mp
Suprafață teren:
102 mp
Nr. niveluri:
2

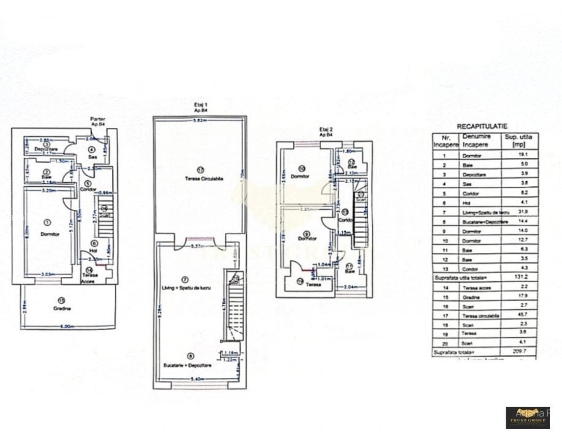
Descriere casă

Vila de inchiriat in Avalon Residence – Pipera Descopera confortul si linistea unui complex rezidential exclusivist, situat pe Bulevardul Pipera, in apropierea rondului OMV. Avalon Residence este un ansamblu modern, format din townhouse-uri si blocuri cu regim mic de inaltime, inconjurat de spatii verzi generoase si facilitati premium pentru intreaga familie: -gradina si promenada pe malul lacului -loc de joaca pentru copii -teren de baschet -piscina exterioara -sala de yoga Compartimentare vila: -Parter: un dormitor/birou, baie cu dus, camera tehnica cu masina de spalat si uscator, acces direct catre parcarea acoperita prin iesirea secundara din casa. -Etaj 1: living spatios in regim open space cu bucatarie moderna (dotata inclusiv cu bar ascuns), plus un WC de serviciu pentru oaspeti. -Etaj 2: doua dormitoare, fiecare cu baie proprie; unul dintre ele dispune de terasa/balcon deschis de 4 mp. In fata casei, chiar la intrarea principala, se afla o gradina intima de 18 mp, ideala pentru amenajari florale sau o zona verde de relaxare. In spate, in continuarea livingului de la etajul 1, se deschide o terasa generoasa de 48 mp, perfecta pentru seri in aer liber, cina cu prietenii sau spatiu de joaca pentru cei mici. Parcarea este acoperita si pozitionata chiar langa iesirea din casa, pentru un plus de comoditate. Aceasta vila imbina perfect functionalitatea, designul modern si facilitatile de lifestyle din cadrul complexului, fiind alegerea ideala pentru o familie care cauta confort si siguranta. *la pretul afisat se adauga TVA
Citește mai mult Citește mai puțin
Mobilat Grădină Piscină Curte comună Aer condiționat Centrală proprie

Detalii casă

ID anunț: 2042890 Actualizat în: 12 Martie 2026
Nr. camere: 4
Suprafață utilă: 132 mp
Suprafață utilă totală: 132 mp
Nr. băi: 4
Suprafață teren: 102 mp
An construcție: 2023
Regim înălțime: P+2E

Istoric preț

Facilități

Pereți
Vopsea lavabilă Faianță
Podele
Parchet Gresie
Ușă intrare
Parchet Metal Lemn
Uși interior
Lemn
Izolații termice
Exterior
Utilități
Curent Apă Canalizare Gaze
Sistem încălzire
Centrală proprie
Climatizare
Aer condiționat
Bucătărie
Mobilată Utilată
Mobilat
Mobilat
Alte spații utile
Spațiu depozitare WC Serviciu
Facilități imobil
Videointerfon Curte comună Grădină Piscină exterioară
Amenajare străzi
Asfaltate Iluminat stradal Mijloace de transport în comun

Puncte de interes

Mijloace transport
transport
Capat C.F.R Constanta linii : 112,135,445
Mijloace transport aprox. 799 m
transport
Rocin
Mijloace transport aprox. 1113 m
transport
Rocin
Mijloace transport aprox. 1113 m
transport
Statia Rocin, linia 16, 36
Mijloace transport aprox. 1138 m
Școală
education
Gradinita Zece
Învățământ aprox. 1049 m
education
Scoala Nr.3 Voluntari
Învățământ aprox. 1311 m
education
Echilibria 1
Învățământ aprox. 1643 m
education
Gradinita Happy Univers
Învățământ aprox. 1655 m
Recreere
restaurants
Q's Inn
Restaurante aprox. 270 m
parks
spatiu verde
Recreere aprox. 304 m
shopping
Pipera Plaza
Supermarket/Mall aprox. 583 m
shopping
Kaufland
Supermarket/Mall aprox. 600 m

Proprietăți similare

Casă cu 5 camere cu Canalizare în Aviației
2.700 € / lună
București, Aviației
5 camere
182 mp
Casă cu 4 camere cu Teren 250 Mp în Aviației
2.900 € / lună
București, Aviației
4 camere
180 mp
250 mp teren
Casă cu 5 camere cu Canalizare în Pipera
3.000 € / lună
București, Pipera
5 camere
220 mp
350 mp teren
Casă cu 6 camere cu Teren 150 Mp în Domenii
3.200 € / lună
București, Domenii
6 camere
240 mp
150 mp teren
Casă cu 4 camere cu Teren 350 Mp în 1 Mai
3.000 € / lună
București, 1 Mai
4 camere
150 mp
350 mp teren
Casă cu 5 camere cu Canalizare în Dorobanți
2.900 € / lună
București, Dorobanți
5 camere
260 mp
300 mp teren
Casă cu 6 camere cu Teren 535 Mp în Pipera
2.700 € / lună
București, Pipera
6 camere
305 mp
535 mp teren
Casă cu 4 camere cu Teren 1000 Mp în Băneasa
3.150 € / lună
București, Băneasa
4 camere
600 mp
1.000 mp teren
Casă cu 5 camere cu Canalizare în Iancu Nicolae
2.800 € + TVA / lună
București, Iancu Nicolae
5 camere
155 mp
158 mp teren

Abonează-te la newsletter să fii primul care primește cele mai noi recomandări de proprietăți și sfaturi de la experți.