Vila tip duplex, zona Democratiei

€ 1.200 / lună

Democraţiei, Ploieşti

Descriere

Raportează anunț

Vila tip duplex, zona Democratiei

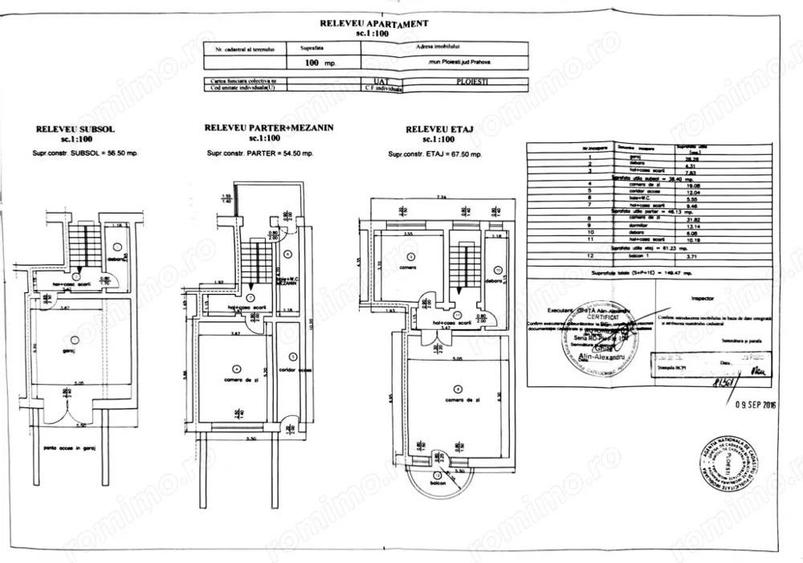
Vila tip duplex, cu o structura deosebita, amplasata intr-o zona lini?tita, ofera un spa?iu generos ?i confortabil. Construita in 1940 din caramida dubla ?i plan?eu de beton, cu o structura deosebita, imobilul se remarca prin finisaje de calitate superioara ?i un design atent gandit fiind complet renovata in 2018, imobilul beneficiaza de toate conforturile moderne, pastrand in acela?i timp un design clasic ?i o atmosfera calda ?i primitoare. Detalii tehnice: Anul construc?iei: 1940 Suprafa?a utila: 145,76 mp Suprafa?a utila totala: 149,47 mp Suprafa?a construita: 178,5 mp Teren: 100 mp Izola?ie exterior: Vata bazaltica de 10 cm, grosimea pere?ilor fiind de 1 m Acoperi?: Tabla tip Lindab Incalzire: Centrala termica cu incalzire in pardoseala la demisol Scara interioara: Beton imbracat in lemn U?i interior: Lemn masiv Pardoseala este din marmura, gresie ?i lemn Compartimentare: Demisol (Suprafata utila= 38,40 mp, Suprafata construita=56,60 mp): Bucatarie cu living open space acesta avand incalzire in pardoseala Grup sanitar Hol Casa scarii Parter (Suprafata utila=46,13 mp, Suprafata construita=54,50 mp): Hol Dressing Baie Living Coridor de acces Casa scarii Etaj (Suprafata utila=61,23 mp, plus balcon de 3,71 mp, Suprafata utila totala=64,94 mp, Suprafata construita=67,50 mp): Hol 2 Dormitoare (unul cu balcon) Baie Casa scarii Vila beneficiaza de finisaje de calitate, iar compartimentarea eficienta face ca fiecare spa?iu sa fie utilizat la maximum. Este ideala pentru o familie care apreciaza confortul, dar ?i un design clasic cu accente moderne. Proprietatea se inchiriaza cu 1200 EU/luna plus o luna garantia imobilului. Pentru mai multe informa?ii sau programarea unei vizionari, nu ezita?i sa ne contacta?i! ID anun?
Citește mai mult Citește mai puțin
ID anunț: 546781 Actualizat în: 23 Octombrie 2025
An construcție: 1940

Istoric preț

Proprietăți similare

Casă cu 4 camere cu Teren 300 Mp în Democrației
€ 1.200 / lună
Ploiești, Democrației
4 camere
1.111 mp
300 mp teren
Casă cu 6 camere cu Canalizare în Mărășești
€ 1.250 / lună
Ploiești, Mărășești
6 camere
185 mp
250 mp teren
Casă cu 7 camere cu Teren 300 Mp în Central
€ 1.300 / lună
Ploiești, Central
7 camere
175 mp
300 mp teren
Casă cu 6 camere cu Canalizare în Central
€ 1.200 / lună
Ploiești, Central
6 camere
230 mp
500 mp teren
Casă cu 5 camere cu Teren 285 Mp în Central
€ 1.200 / lună
Ploiești, Central
5 camere
150 mp
285 mp teren
Casă cu 4 camere cu Teren 605 Mp în Central
€ 1.200 / lună
Ploiești, Central
4 camere
231 mp
605 mp teren
Casă în Central
€ 1.100 / lună
Județul Prahova, Câmpina
150 mp

Abonează-te la newsletter să fii primul care primește cele mai noi recomandări de proprietăți și sfaturi de la experți.