Casa individuala - Corbeanca - 4 camere - 3 bai - 160mp - 600mp teren

1.050 € / lună

Baloteşti, Judeţul Ilfov

Nr. camere:
4
Suprafață utilă:
160 mp
Suprafață teren:
600 mp

Descriere casă

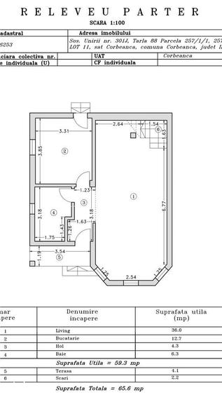
Vila individuala, spatioasa, noua, partial mobilata, situata intr-un complex modern in Corbeanca intr-o zona linistita, in apropiere de padure, dar aproape de multe puncte de interes- este alcatuita din parter si etaj- la parter gasim living, bucatarie, baie, terasa- la etaj gasim 3 dormitoare, 2 bai, 2 balcoane- partial mobilata (doar bucataria si baile mobilate-utilate)- eficienta energetica ridicata, zona locuibila catre sud, AC invertor, CT cu wi-fi, apa sursa proprie- 2 locuri de parcareVila este amplasata intr-un semi-ansamblu rezidential cu iesire la drum privat, care se intersecteaza cu Sos. Unirii Corbeanca. (vis-a-vis de Lidl Corbeanca)Puncte de interes: Lidl Corbeanca, Mega Image, gradinite, Complex comercial Moara Corbeanca, restaurante, pizzerii, benzinarii, cofetarii, centre fitness, astfel beneficiati de un acces rapid si comod la cumparaturi si facilitati esentiale. De asemenea, cu acces direct la soseaua principala, veti avea legaturi excelente cu reteaua de transport, facilitand calatoriile catre diverse destinatii.Pentru alte informatii, contactati-ma! Va invit la o vizionare!BENEFICII PENTRU CLIENTII ACESTEI OFERTE:1. Beneficii oferite de zona:- 170m 2 minute de mers pe jos pana la LIDL- 270m 3 minute de mers pe jos pana la Piata Produse Agricole- 700m 8 minute de mers pe jos pana la Scoala Gimnaziala Numarul 1 Corbeanca2. Beneficii tehnice ale ofertei:- P + 1E- 170mp total, 160mp utili, 600mp teren- 4 camere, 3 bai3. Situatia juridica:- liber MAI 20264. Unde se poate petrece timpul liber:- 1.4km 2 minute de mers cu masina pana la Parc CorbeancaID ACTIV IMOB:231497 CASA te bucuri!!!
Citește mai mult Citește mai puțin

Detalii casă

ID anunț: 3989583 Actualizat în: 27 Martie 2026
Nr. camere: 4
Suprafață utilă: 160 mp
Suprafață utilă totală: 160 mp
Suprafață teren: 600 mp
An construcție: 2024

Istoric preț

Puncte de interes

Școală
education
Scoala generala
Învățământ aprox. 627 m
education
Scoala Nr 1
Învățământ aprox. 633 m
education
Scoala Nr. 1 Corbeanca
Învățământ aprox. 636 m
Recreere
parks
Pădurea Tămaşi
Recreere aprox. 820 m
parks
Pădurea Corbeanca
Recreere aprox. 1160 m
parks
Teren sportiv
Recreere aprox. 1561 m

Proprietăți similare

Casă cu 4 camere cu Teren 400 Mp în Balotești
1.000 € / lună
Județul Ilfov, Balotești
4 camere
120 mp
400 mp teren
Casă cu 3 camere cu Canalizare în Balotești
950 € / lună
Județul Ilfov, Balotești
3 camere
120 mp
600 mp teren
Casă cu 3 camere cu Canalizare în Sud
1.000 € / lună
Județul Ilfov, Popești-Leordeni
3 camere
80 mp
500 mp teren
Casă cu 4 camere cu Teren 50 Mp în Central
950 € / lună
Județul Ilfov, Otopeni
4 camere
110 mp
50 mp teren
Casă cu 4 camere în Săftica
1.000 € / lună
Județul Ilfov, Săftica
4 camere
120 mp
Casă cu 4 camere cu Canalizare în Central
1.150 € / lună
Județul Ilfov, Otopeni
4 camere
130 mp
100 mp teren
Casă cu 3 camere cu Teren 200 Mp în Corbeanca
1.000 € / lună
Județul Ilfov, Corbeanca
3 camere
120 mp
200 mp teren
Casă cu 4 camere în Ordoreanu
1.000 € / lună
Județul Ilfov, Ordoreanu
4 camere
285 mp
Casă cu 3 camere cu Canalizare în Ștefăneștii de Jos
970 € / lună
Județul Ilfov, Ștefăneștii de Jos
3 camere
70 mp
40 mp teren

Abonează-te la newsletter să fii primul care primește cele mai noi recomandări de proprietăți și sfaturi de la experți.