Cladire de birouri, 358mp utili, teren de 426mp, Iuliu Maniu

850.000 €
2,374.30 € / mp

Central, Cluj-Napoca

Suprafață utilă totală:
358 mp
Nr. niveluri:
1

Descriere spațiu comercial

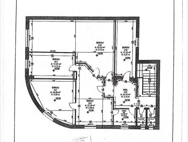
Va propunem spre vanzare o cladire de birouri,cu suprafata de 358mp utili si cu un cu regim de inaltime p+1. Imobilul este amplasat pe un teren de 426mp si compartimentarea este urmatoarea: - Parterul: 5 birouri, hol, 2 camere de depozitare si grupuri sanitare, - Etaj: 5 birouri, grupuri sanitare si un spatiu de depozitare. Este situat in zona ultracentrala, si este perfect pentru casa, un aparthotel, cabinet notarial sau de avocatura, plus multe alte intrebuintari. Se poate vinde exact cum ii acum la pretul de 850k sau finisata cu fatada si curtea renovata complet la pretul de 950k. Va asteptam la vizionare! P13465 Nr grupuri sanitare: 3 Nr incaperi: 9 Utilitati - Sistem incalzire (Centrala proprie); Utilitati generale (Curent,Apa,Canalizare,Gaz) Finisaje - Izolatii termice (Exterior); Podele (Parchet) Dotari - Contorizare (Apometre,Contor gaz) pret vanzare: 850000 moneda vanzare: EUR Disponibilitate proprietate: imediat
Citește mai mult Citește mai puțin
Parțial mobilat Centrală proprie

Detalii spațiu comercial

ID anunț: 3666010 Actualizat în: 10 Martie 2026
Suprafață utilă: 358 mp
Suprafață utilă totală: 358 mp
Regim înălțime: P+1E

Istoric preț

Facilități

Contorizare
Apometre Contor gaz
Mobilat
Parțial mobilat
Utilități
Curent Apă Canalizare Gaze
Sistem încălzire
Centrală proprie
Podele
Parchet
Izolații termice
Exterior

Puncte de interes

Mijloace transport
transport
Statia Hasdeu, Linia 22
Mijloace transport aprox. 222 m
transport
Hasdeu
Mijloace transport aprox. 229 m
transport
Statia V. Babes, Linia 22
Mijloace transport aprox. 240 m
transport
V. Babes
Mijloace transport aprox. 240 m
Școală
education
Laboratoarele de Biochimie-Biofizica-Biologie Moleculara
Învățământ aprox. 164 m
education
Universitatea de Medicina si Farmacie- rectorat
Învățământ aprox. 165 m
education
Universitatea de Medicină şi Farmacie "Iuliu Haţieganu" -Rectorat-
Învățământ aprox. 173 m
education
Institutul de Speologie "Emil Racovita"
Învățământ aprox. 186 m
Recreere
restaurants
Ali Baba
Restaurante aprox. 111 m
parks
Gradina Miko
Recreere aprox. 133 m
shopping
Magazin Alimentar
Supermarket/Mall aprox. 402 m
shopping
Magazin Mixt
Supermarket/Mall aprox. 547 m

Proprietăți similare

Spațiu comercial, de 357.51000976563 mp, în Central
849.900 €
Cluj-Napoca, Central
357,51 mp utili
Birou, de 394 mp, în Central
825.000 €
Cluj-Napoca, Central
394 mp utili
2E
2000
Birou, de 342.70001220703 mp, în Mănăștur
771.500 €
Cluj-Napoca, Mănăștur
342,7 mp utili
5E
2023
Spațiu industrial, de 600 mp, în Gheorgheni
850.000 €
Cluj-Napoca, Gheorgheni
600 mp utili
687 mp teren
1991
Birou, de 597 mp, în Plopilor
835.800 €
Cluj-Napoca, Plopilor
597 mp utili
4E
2020
Spațiu industrial, de 687 mp, în Gheorgheni
850.000 €
Cluj-Napoca, Gheorgheni
687 mp utili
1E
2000
Spațiu comercial, de 373 mp, în Gheorgheni
820.600 €
Cluj-Napoca, Gheorgheni
373 mp utili
10E
2008
Spațiu comercial, de 600 mp, în Borhanci
819.000 €
Cluj-Napoca, Borhanci
600 mp utili
2E
2012
Spațiu comercial, de 674 mp, în Horea
850.000 €
Cluj-Napoca, Horea
674 mp utili
4E
2008

Abonează-te la newsletter să fii primul care primește cele mai noi recomandări de proprietăți și sfaturi de la experți.