REC3001321 Spatiu de birouri - 578 MP I Posibilitate Recompartimentare I Univers

6.069 € / lună
10.50 € / mp / lună

Universitate, Bucureşti

Suprafață utilă totală:
578 mp
Nr. niveluri:
6
An construcție:
2005

Descriere spațiu comercial

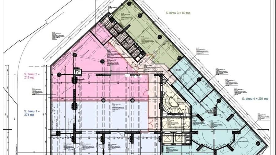
SVN Romania va propune spre inchiriere un spatiu de birouri in zona Universitate. Statia de metrou Universitate se afla la doar 5 minute distanta pietonala. Spatiul este situat la etajul 1/6, intr-o cladire de birouri construita in anul 2005 si dispune de o suprafata totala de 579 mp. Acesta se poate inchiria integral, respectiv 579 mp sau se poate recompartimenta si inchiriat una din urmatoarele variante: - birou 1 -> 274 mp - birou 2 -> 215 mp - birou 3 -> 89 mp (vezi schita) Spatiul este amenajat si compartimentat, dispune de chicineta, 4 grupuri sanitare amenajate, climatizare zonala iar accesul in spatiu se face pe baza de cartela. Utilitatile se refactureaza in regim pro-rata, iar electricitatea se calculeaza consum propriu + pro-rata din spatiile comune si echipamente. Pretul spatiului este de 10.5 euro mp + TVA. Taxa de administrare este de 4 euro mp + TVA. Se pot inchiria separat locuri de parcare la pretul de 120 euro + TVA/luna/loc. Cladirea dispune de lobby cu paza si 2 lift-uri. Pentru mai multe informatii sau pentru programarea vizionarilor, contactul meu va sta la dispozitie! ***Vizionarea acestui imobil se face doar în baza semnarii unui acord de vizionare conform codului civil, art 2.096-2.102.
Citește mai mult Citește mai puțin

Detalii spațiu comercial

ID anunț: 544532 Actualizat în: 27 Martie 2026
Suprafață utilă: 578 mp
Suprafață utilă totală: 578 mp
Etaj: Etaj 1 / 6
Regim înălțime: P+6E
An construcție: 2005

Istoric preț

Puncte de interes

Mijloace transport
transport
Piata Lahovari
Mijloace transport aprox. 287 m
transport
Statia Metrou Piata Romana(M2)Metrorex
Mijloace transport aprox. 314 m
transport
Metrorex. Staţia Piaţa Romană (M2)(1988)
Mijloace transport aprox. 355 m
transport
Piata Romana (M2)
Mijloace transport aprox. 355 m
Școală
education
ASLS (en)
Învățământ aprox. 111 m
education
Centrul de Limbi Straine Ariel
Învățământ aprox. 122 m
education
University of Bucharest - Faculty of Foreign Languages and Literatures (en)
Învățământ aprox. 122 m
education
Rectoratul UMF "Carol Davila"
Învățământ aprox. 124 m
Recreere
restaurants
Gradina OAR
Restaurante aprox. 17 m
parks
Small park (en)
Recreere aprox. 128 m
shopping
ilanplant
Supermarket/Mall aprox. 140 m
shopping
Bacania Coco
Supermarket/Mall aprox. 173 m

Proprietăți similare

Birou, de 406 mp, în Universitate
6.090 € / lună
București, Universitate
406 mp utili
12E
2009
Birou, de 556 mp, în Universitate
5.838 € / lună
București, Universitate
556 mp utili
6E
2000
Birou, de 526 mp, în Universitate
5.523 € / lună
București, Universitate
526 mp utili
6E
2005
Birou, de 380 mp, în Universitate
5.700 € / lună
București, Universitate
380 mp utili
6E
2005
Birou, de 392 mp, în Universitate
5.880 € / lună
București, Universitate
392 mp utili
9E
2008
Birou, de 325 mp, în Universitate
6.175 € / lună
București, Universitate
325 mp utili
7E
2012
Birou, de 420 mp, în Universitate
5.880 € / lună
București, Universitate
420 mp utili
5E
Birou, de 380 mp, în Universitate
5.700 € / lună
București, Universitate
380 mp utili
2006
Birou, de 1,394 mp, în Universitate
5.880 € / lună
București, Universitate
1.394 mp utili
9E

Abonează-te la newsletter să fii primul care primește cele mai noi recomandări de proprietăți și sfaturi de la experți.