Atlantis Business Center - Birouri Clasa Superioara - 168 mp

2.184 € / lună
13 € / mp / lună

Romană, Bucureşti

Suprafață utilă totală:
168 mp
An construcție:
2004

Descriere spațiu comercial

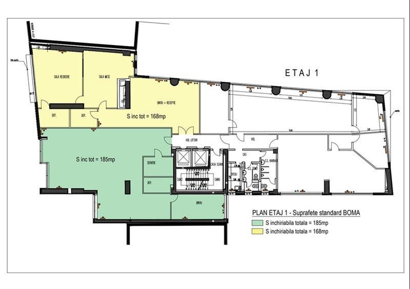
Va propunem spre inchiriere un spatiu de birouri elegant situat in Atlantis Business Center, o cladire de clasa superioara amplasata intr-una dintre cele mai exclusiviste zone ale Bucurestiului: axa Lascar Catargiu – Calea Victoriei. Locatia ofera prestanta si o vizibilitate excelenta, fiind ideala pentru companii care doresc un sediu central cu arhitectura moderna. Conditii Comerciale: Pret inchiriere: 13 EUR mp + TVA. Service charge: 4 EUR mp + TVA. Disponibilitate: Imediata. Specificatii Spatii: Suprafata: 168 mp si 185 mp situati la etajul 1. Compartimentare: Spatiu compartimentat eficient, gata de utilizare. Standarde Tehnice si Finisaje: Interior: Mix de finisaje premium cu mocheta si parchet, tavan casetat si inaltime libera de 2.7 m. Dotari Tehnice: Fatada de sticla ce asigura luminozitate naturala, camera server dedicata, cablare voce-date completa si usa de intrare din sticla. Conectivitate: Infrastructura pregatita pentru internet si telefonie. Siguranta: Receptie, paza permanenta, monitorizare video (CCTV) si acces securizat cu cartela magnetica. Parcare: Cladirea beneficiaza de parcare sistematizata. Locatie si Avantaje: Amplasarea in zona Piata Romana - Lascar Catargiu garanteaza un acces facil catre toate punctele cheie ale orasului. Statia de metrou Romana se afla la doar cateva minute de mers pe jos, asigurand o conexiune rapida pentru angajati. Zona este renumita pentru sediile de ambasade, institutii financiare si cladiri de patrimoniu, oferind in acelasi timp o gama variata de restaurante premium, cafenele si hoteluri de lux in imediata apropiere. ID oferta: 24R0035
Citește mai mult Citește mai puțin

Detalii spațiu comercial

ID anunț: 612412 Actualizat în: 17 Martie 2026
Suprafață utilă: 168 mp
Suprafață utilă totală: 168 mp
An construcție: 2004

Istoric preț

Facilități

Utilități
Apă Curent Gaze Canalizare

Puncte de interes

Mijloace transport
transport
Orlando
Mijloace transport aprox. 256 m
transport
Statia Piata Romana linii : 79,86
Mijloace transport aprox. 371 m
transport
Statia Metrou Piata Romana(M2)Metrorex
Mijloace transport aprox. 441 m
transport
Sfintii Voievozi
Mijloace transport aprox. 449 m
Școală
education
Gradinita de copii nr.50
Învățământ aprox. 102 m
education
Colegiul German Goethe
Învățământ aprox. 216 m
education
French School of Bucharest (en)
Învățământ aprox. 222 m
education
Academia Romana
Învățământ aprox. 292 m
Recreere
restaurants
Miko
Restaurante aprox. 33 m
parks
Parcul Nicolae Iorga
Recreere aprox. 152 m
shopping
Mega Image Amzei Non-Stop
Supermarket/Mall aprox. 481 m
shopping
Bila Supermarket
Supermarket/Mall aprox. 487 m

Proprietăți similare

Birou, de 165 mp, în Romană
2.200 € / lună
București, Romană
165 mp utili
2E
1964
Birou, de 168 mp, în Romană
2.184 € / lună
București, Romană
168 mp utili
6E
2003
Birou, de 160 mp, în Universitate
1.984 € / lună
București, Universitate
160 mp utili
3E
Birou, de 150 mp, în Calea Victoriei
2.400 € / lună
București, Calea Victoriei
150 mp utili
8E
Birou, de 150 mp, în Central
2.250 € / lună
București, Central
150 mp utili
Birou, de 878 mp, în Universitate
2.219 € / lună
București, Universitate
878 mp utili
2E
1890
Birou, de 1,233 mp, în Universitate
2.100 € / lună
București, Universitate
1.233 mp utili
7E
2004
Birou, de 780 mp, în Universitate
2.100 € / lună
București, Universitate
780 mp utili
9E
2008
Birou, de 157 mp, în Cișmigiu
2.355 € / lună
București, Cișmigiu
157 mp utili
6E

Abonează-te la newsletter să fii primul care primește cele mai noi recomandări de proprietăți și sfaturi de la experți.