Spatiu birou- Romana/Polona

1.345 € / lună
11.70 € / mp / lună

Romană, Bucureşti

Suprafață utilă totală:
115 mp
Nr. niveluri:
3

Descriere spațiu comercial

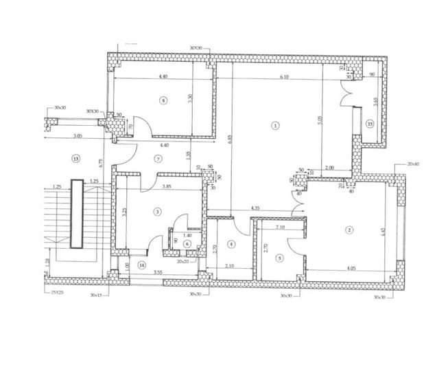
Inchiriere spatiu pentru birou amplasat la etajul 2 al unui imobil de birouri cu structura S+P+3. Cladirea se afla in zona Piata Romana - Polona si este un imobil inchiriat integral pentru activitatea de birou. Spatiul propus are suprafata de 115 mp si este compartimentat in 3 birouri, bucatarie si baie. Disponibil imediat
Citește mai mult Citește mai puțin

Detalii spațiu comercial

ID anunț: 3525812 Actualizat în: 17 Februarie 2026
Suprafață utilă: 115 mp
Suprafață utilă totală: 115 mp
Regim înălțime: P+3E

Istoric preț

Puncte de interes

Mijloace transport
transport
Statia Calea Dorobantilor; Liniile:79, 86,
Mijloace transport aprox. 106 m
transport
Statia Piata Romana linii : 79,86
Mijloace transport aprox. 296 m
transport
Piata Lahovari
Mijloace transport aprox. 307 m
transport
Statia Metrou Piata Romana(M2)Metrorex
Mijloace transport aprox. 337 m
Școală
education
Gradinita nr. 85
Învățământ aprox. 106 m
education
ASE - Cibernetica
Învățământ aprox. 120 m
education
Scoala Americana
Învățământ aprox. 129 m
education
Cladirea Virgil Madgearu
Învățământ aprox. 136 m
Recreere
restaurants
Tucano Coffee
Restaurante aprox. 79 m
shopping
BILLA - Dorobanti
Supermarket/Mall aprox. 145 m
shopping
Bila Supermarket
Supermarket/Mall aprox. 176 m
parks
Parcul Piata Romana
Recreere aprox. 294 m

Proprietăți similare

Birou, de 60 mp, în Romană
1.306 € / lună
București, Romană
60 mp utili
Birou, de 30 mp, în Romană
1.290 € / lună
București, Romană
30 mp utili
8E
Birou, de 115 mp, în Romană
1.348 € / lună
București, Romană
115 mp utili
3E
Birou, de 103 mp, în Kogălniceanu
1.236 € / lună
București, Kogălniceanu
103 mp utili
1940
Birou, de 107 mp, în P-ța Victoriei
1.338 € / lună
București, P-ța Victoriei
107 mp utili
2010
Birou, de 60 mp, în Central
1.403 € / lună
București, Central
60 mp utili
Birou, de 101 mp, în Central
1.313 € / lună
București, Central
101 mp utili
1994
Birou, de 106.76000213623 mp, în P-ța Victoriei
1.290 € / lună
București, P-ța Victoriei
106,76 mp utili
2E
2010
Birou, de 97 mp, în P-ța Victoriei
1.290 € / lună
București, P-ța Victoriei
97 mp utili
1E
2010

Abonează-te la newsletter să fii primul care primește cele mai noi recomandări de proprietăți și sfaturi de la experți.