REC3001735 Spatiu de birouri - 89 MP I Posibilitate Recompartimentare I Universi

1.071 € / lună
10.50 € / mp / lună

P-ţa Universităţii, Bucureşti

Suprafață utilă totală:
102 mp
Nr. niveluri:
6
An construcție:
2005

Descriere spațiu comercial

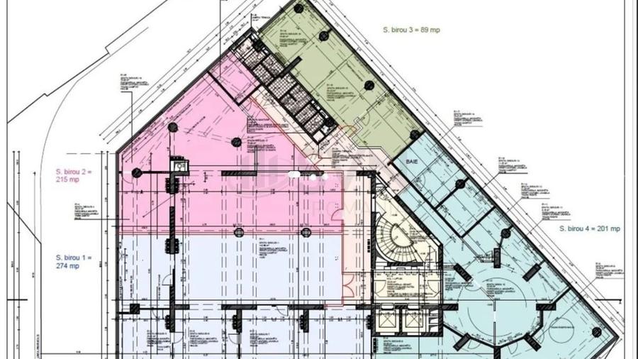
SVN Romania va propune spre inchiriere un spatiu de birouri in zona Universitate. Statia de metrou Universitate se afla la doar 5 minute distanta pietonala. Spatiul este situat la etajul 1/6, intr-o cladire de birouri construita in anul 2005 si dispune de o suprafata utila de 89 mp. Acesta se poate inchiria integral, respectiv 578 mp sau se poate recompartimenta si inchiriat una din urmatoarele variante: - birou 1 -> 274 mp - birou 2 -> 215 mp - birou 3 -> 89 mp (vezi schita) Spatiul este amenajat si compartimentat, dispune de chicineta, 4 grupuri sanitare amenajate, climatizare zonala iar accesul in spatiu se face pe baza de cartela. Utilitatile se refactureaza in regim pro-rata, iar electricitatea se calculeaza consum propriu + pro-rata din spatiile comune si echipamente. Pretul spatiului este de 10.5 euro mp + TVA. Taxa de administrare este de 4 euro mp + TVA. Se pot inchiria separat locuri de parcare la pretul de 120 euro + TVA/luna/loc. Cladirea dispune de lobby cu paza si 2 lift-uri. Pentru mai multe informatii sau pentru programarea vizionarilor, contactul meu va sta la dispozitie! ***Vizionarea acestui imobil se face doar în baza semnarii unui acord de vizionare conform codului civil, art 2.096-2.102.
Citește mai mult Citește mai puțin

Detalii spațiu comercial

ID anunț: 3831075 Actualizat în: 27 Martie 2026
Suprafață utilă: 102 mp
Suprafață utilă totală: 102 mp
Etaj: Etaj 1 / 6
Regim înălțime: P+6E
An construcție: 2005

Istoric preț

Facilități

Utilități
Curent

Puncte de interes

Mijloace transport
transport
Statia Nicolae Balcescu; Liniile:168, 300, 368, 226, 126
Mijloace transport aprox. 40 m
transport
Metrorex. Staţia Universitate (M2)(1987)
Mijloace transport aprox. 294 m
transport
Statia Piata Universitatii linii : 122,137,138,268,381,783.
Mijloace transport aprox. 316 m
transport
Sala Palatului
Mijloace transport aprox. 389 m
Școală
education
Palatul Fundaţiei Universitare "Carol I"
Învățământ aprox. 190 m
education
Facultatea de Farmacie/Pharmacy Faculty
Învățământ aprox. 222 m
education
Facultatea de Farmacie
Învățământ aprox. 230 m
education
UAUIM -Universitatea de Arhitectura si Urbanism Ion Mincu
Învățământ aprox. 296 m
Recreere
restaurants
Jerry's Pizza (en)
Restaurante aprox. 61 m
parks
Parc
Recreere aprox. 105 m
shopping
Pravalia Maestrului
Supermarket/Mall aprox. 167 m
shopping
Mega Image Rosetti Non-Stop
Supermarket/Mall aprox. 232 m

Proprietăți similare

Birou, de 97 mp, în Ultracentral
1.085 € / lună
București, Ultracentral
97 mp utili
8E
1996
Birou, de 130 mp, în Plevnei
1.030 € / lună
București, Plevnei
130 mp utili
4E
2000
Birou, de 62 mp, în Cișmigiu
996 € / lună
București, Cișmigiu
62 mp utili
1940
Birou, de 90 mp, în Plevnei
1.080 € / lună
București, Plevnei
90 mp utili
4E
2001
Birou, de 60 mp, în Romană
1.000 € / lună
București, Romană
60 mp utili
6E
Birou, de 90 mp, în Calea Victoriei
990 € / lună
București, Calea Victoriei
90 mp utili
10E
2001
Birou, de 30 mp, în Plevnei
1.090 € / lună
București, Plevnei
30 mp utili
Birou, de 190 mp, în Romană
1.000 € / lună
București, Romană
190 mp utili
Birou, de 200 mp, în Calea Victoriei
1.000 € / lună
București, Calea Victoriei
200 mp utili
3E
1940

Abonează-te la newsletter să fii primul care primește cele mai noi recomandări de proprietăți și sfaturi de la experți.