Parter birouri | Showroom | Inchiriere | Stirbei Voda, Parc Cismigiu

996 € / lună
16.06 € / mp / lună

Cişmigiu, Bucureşti

Suprafață utilă totală:
62 mp
An construcție:
1940

Descriere spațiu comercial

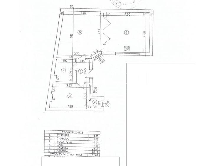
Spatiu versatil pentru birou, activitati comerciale, showroom – de inchiriat in zona Stirbei Voda Parcul Cismigiu Va propunem spre inchiriere un spatiu situat la parter, cu curte, ideal pentru birouri, activitati de tip showroom sau cursuri, amplasat excelent, in apropierea Parcului Cismigiu si a sediului DNA. Proprietatea beneficiaza de accese separat, a fost recent renovata atat la exterior (inclusiv fatada si hidroizolatia), cat si la interior, si dispune de o curte amenajata cu travertin. Compartimentare functionala: -hol acces; -camera tehnica birou receptie de 10 mp; - grup sanitar; - doua incaperi de 22 mp si 20 mp, ce pot fi zona de birouri, showroom etc. Suprafata utila este de aproximativ 62 mp, completata de o curte de 50 mp. Datorita amplasarii excelente, in apropiere de institutii importante si de Parcul Cismigiu, spatiul reprezinta o alegere potrivita pentru activitati de birou. Pentru detalii suplimentare sau stabilirea unei vizionari, echipa Leader Estate va sta la dispozitie.
Citește mai mult Citește mai puțin

Detalii spațiu comercial

ID anunț: 3832371 Actualizat în: 17 Martie 2026
Suprafață utilă: 62 mp
Suprafață utilă totală: 62 mp
An construcție: 1940

Istoric preț

Facilități

Utilități
Curent Gaze

Puncte de interes

Mijloace transport
transport
Statie RATB 226, 136
Mijloace transport aprox. 287 m
transport
Berzei
Mijloace transport aprox. 398 m
transport
Mircea Vulcanescu
Mijloace transport aprox. 401 m
transport
Vasile Parvan
Mijloace transport aprox. 409 m
Școală
education
Liceul "Nicolae Tonitza"
Învățământ aprox. 119 m
education
Gradinita MAPN
Învățământ aprox. 141 m
education
Gradinita Smiley
Învățământ aprox. 228 m
education
Scoala de Muzica Nr.3
Învățământ aprox. 318 m
Recreere
restaurants
Bouche Bee
Restaurante aprox. 197 m
parks
Piata Emil Cioran (Vergilius) (en)
Recreere aprox. 221 m
shopping
Mega Image Brezoianu
Supermarket/Mall aprox. 719 m
shopping
Mega Image Elisabeta Non-Stop
Supermarket/Mall aprox. 765 m

Proprietăți similare

Birou, de 85.699996948242 mp, în Cișmigiu
1.001 € / lună
București, Cișmigiu
85,7 mp utili
1E
Birou, de 35 mp, în Universitate
950 € / lună
București, Universitate
35 mp utili
6E
1923
Birou, de 200 mp, în Calea Victoriei
1.000 € / lună
București, Calea Victoriei
200 mp utili
3E
1940
Birou, de 60 mp, în P-ța Victoriei
1.000 € / lună
București, P-ța Victoriei
60 mp utili
12E
1995
Birou, de 87 mp, în P-ța Romană
1.000 € / lună
București, P-ța Romană
87 mp utili
5E
1942
Birou, de 100 mp, în Universitate
900 € / lună
București, Universitate
100 mp utili
7E
1960
Birou, de 130 mp, în Central
1.018 € / lună
București, Central
130 mp utili
2008
Birou, de 92 mp, în P-ța Sfântul Ștefan
980 € / lună
București, P-ța Sfântul Ștefan
92 mp utili
2E
1934
Birou, de 64 mp, în Matei Voievod
1.000 € / lună
București, Matei Voievod
64 mp utili

Abonează-te la newsletter să fii primul care primește cele mai noi recomandări de proprietăți și sfaturi de la experți.